Capannone in Affitto

€ 15.000/mese
2
3.670 m²

Nota

Zenso

Prestiti online e veloci

Confronta le offerte in 1 minuto

Annuncio aggiornato il 13/10/2025
Descrizione

riferimento: ie_olgiateo_abmb13

Capannone in affitto fronte Sempione di 3670 mq

In locazione – Compendio immobiliare industriale

In collaborazione con l’Agenzia Immobiliare “Casa Più Immobiliare” di Varese proponiamo in locazione un ampio e versatile compendio immobiliare, libero su quattro lati, situato in posizione angolare tra la SS33 del Sempione e Via Silvio Pellico, a Olgiate Olona (VA).
L’immobile, recentemente ristrutturato , si presta perfettamente a diverse destinazioni, tra cui attività industriali, direzionali che necessitano anche di una forte visibilità.

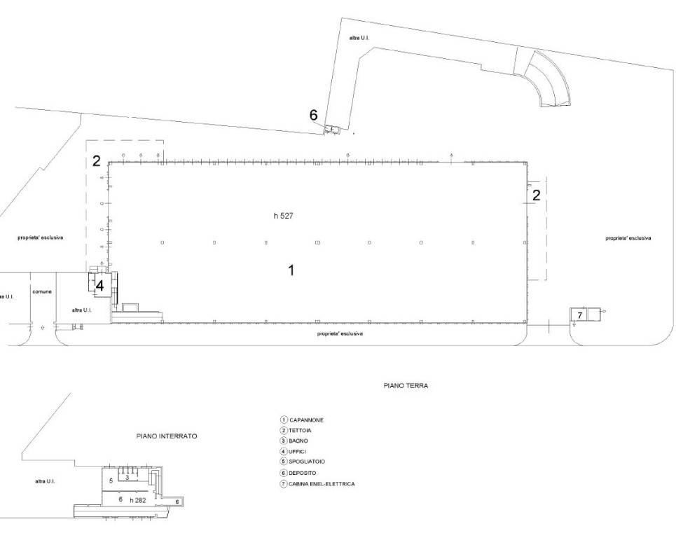
Il capannone offre un’area operativa di circa 3.600 mq, con altezza sotto trave di 5,30 metri e al colmo di 6,60 metri. Dispone di tre accessi carrai e due pedonali, un ufficio operativo, servizi igienici e spogliatoi, ed è completato da una superficie esterna di 4.200 mq di proprietà esclusiva.
i bagni e ulteriori locali di servizio.
A completare la proprietà troviamo un’abitazione di circa 120 mq, composta da soggiorno, cucina abitabile, due bagni e tre camere, anch’essa oggetto di recente ristrutturazione.
L’immobile rappresenta una soluzione completa, funzionale e immediatamente disponibile. La posizione è strategica e garantisce un’eccellente visibilità grazie all’affaccio sulla SS33 del Sempione e alla vicinanza alle principali arterie viarie: l’uscita di Busto Arsizio dell’autostrada A8 (Autostrada dei Laghi) dista circa 2,7 km, mentre l’uscita di Solbiate Olona della A36 (Pedemontana Lombarda) si trova a soli 3,1 km.

Referente commerciale Alessandro Barbatp
Se vuoi saperne di più, puoi parlare con Alessandro Barbato.
Caratteristiche
Contratto
Affitto
Tipologia
Capannone
Superficie
3.670 m²
Locali
2 locali
Piano
2 piani: Piano terra, Piano rialzato, con accesso disabili
Piani edificio
2
Disponibilità
Libero
Altezza capannone
6,5 m
Altezza sottotrave
5,5 m
Banchine di carico
1
Altre caratteristiche
  • Passo carrabile
  • Reception
  • Recintato
  • Spogliatoio
Dettaglio superficie

Capannone

Piano
Piano terra
Superficie
3.550,0 m²
Coefficiente
100%
Tipo superficie
Principale
Sup. commerciale
3.550,0 m²

Ufficio o Studio

Piano
Piano rialzato
Superficie
120,0 m²
Coefficiente
100%
Tipo superficie
Principale
Sup. commerciale
120,0 m²
Informazioni sul prezzo
Prezzo
€ 15.000/mese
Prezzo al m²
4 €/m²
New
Dettaglio dei costi
Spese condominio
Nessuna spesa condominiale
Cauzione
Non indicata
Planimetria
Planimetria capannone_siti
Scopri ogni angolo dell'immobile
+26
Inserzionista
scheda agenzia
Opzioni aggiuntive

Contatta l'inserzionista

Oppure