Quadrilocale via John Fitzgerald Kennedy 13, Valenzano

€ 170.000
4
120 m²
2
1 - 2
No
Balcone
Terrazzo
Cantina

Nota

Annuncio aggiornato il 14/10/2025
Descrizione

riferimento: KENNEDY 13A

4 VANI SEMI INDIPENDENTE CON TERRAZZO A LIVELLO.

Siete alla ricerca di una casa semi indipendente?
Ecco la casa giusta per voi!
L’agenzia immobiliare Iconacasa di Valenzano, propone in vendita in zona tranquilla ma ben servita, precisamente in via Kennedy 13, confortevole quadrilocale di circa 120 metri quadri.
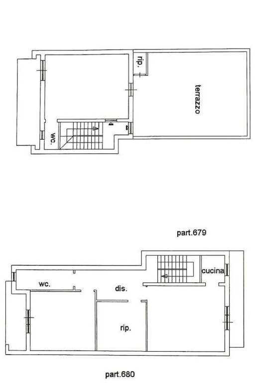
Gli ambienti si distribuiscono nel seguente modo: ingresso nel disimpegno, ampio soggiorno con angolo cottura, camera matrimoniale, due spaziose camerette, due bagni e terrazzo a livello, dove trascorrere piacevoli momenti di relax.
La casa è posta al 1° piano, è su due livelli ed è particolarmente luminosa, in quanto gode di doppia esposizione.
Non vi maturano spese condominiali.
Gli spazi interni e la forma quadrata rendono la casa ideale per chi è alla ricerca di soluzioni da personalizzare in base ai propri gusti e/o esigenze, dato che quasi tutte le pareti non sono portanti.

INTERNO: la proprietà si trova in buono stato di manutenzione.

ESTERNO: lo stabile si presenta in buone condizioni.

POSIZIONE: l’immobile è situato in un contesto residenziale molto tranquillo ma ricco di servizi, rendendo possibile lo shopping a piedi e senza l'utilizzo dell'auto; nelle immediate vicinanze troviamo negozi di vario genere, una scuola, le fermate dei mezzi pubblici ed inoltre la casa è in zona strategica per poter raggiungere la città in pochi minuti.

QUATTRO BUONI MOTIVI PER SCEGLIERE QUESTO IMMOBILE:

1. La posizione servita.
2. La semi indipendenza.
3. Il terrazzo a livello.
4. La comoda metratura.

Per ottenere ulteriori informazioni sull’immobile in vendita a Valenzano in via Kennedy 13, potete contattarci senza impegno al seguente numero: 080.798.35.58
Se vuoi saperne di più, puoi parlare con Gianluca Elicio.
Caratteristiche
Tipologia
Appartamento | Intera proprietà | Classe immobile media
Contratto
Vendita
Piano
Da 1 a 2
Piani edificio
2
Ascensore
No
Superficie
120 m²
Locali
4
Camere da letto
3
Cucina
Cucina abitabile
Bagni
2
Arredato
No
Balcone
Terrazzo
Riscaldamento
Autonomo, a radiatori, alimentato a metano
Altre caratteristiche
  • Armadio a muro
  • Caminetto
  • Esposizione doppia
  • Fibra ottica
  • Infissi esterni in doppio vetro / metallo
  • Impianto tv singolo
Dettaglio superficie

Abitazione

Piano
1
Superficie
100,0 m²
Coefficiente
100%
Tipo superficie
Principale
Sup. commerciale
100,0 m²

Abitazione

Piano
2
Superficie
20,0 m²
Coefficiente
100%
Tipo superficie
Principale
Sup. commerciale
20,0 m²
Informazioni sul prezzo
Prezzo
€ 170.000
Prezzo al m²
1.417 €/m²
New
Dettaglio dei costi
Spese condominio
Nessuna spesa condominiale
Efficienza energetica

Consumo di energia

≥ 175 kWh/m² annoG

Planimetria
PLANIMETRIA
Scopri ogni angolo dell'immobile
+18
Mutuo
%
Durata del mutuo

Rata da € 505 al mese

€ 51.000 (30%)

€ 119.000 (70%)

Vuoi sapere che mutuo puoi richiedere?

Opzioni aggiuntive

Contatta l'inserzionista

Oppure