Villa bifamiliare Borgata Tagliaferro 11/2, Tagliaferro - Tetti Piatti, Moncalieri

€ 359.000
5+
235 m²
3
No
Balcone
Cantina

Nota

Annuncio aggiornato il 10/12/2025
Descrizione

riferimento: EK-123852533

Villa bifamiliare su quattro livelli, Moncalieri

Moncalieri, Borgata Tagliaferro, in contesto residenziale contraddistinto dalla presenza di sole soluzioni indipendenti proponiamo funzionale villa bifamiliare semi-indipendente realizzata nel 1974. L'unità abitativa si caratterizza per l'ampia metratura dei singoli livelli e per i piacevoli spazi verdi esterni di proprietà.
L'immobile si compone come segue:
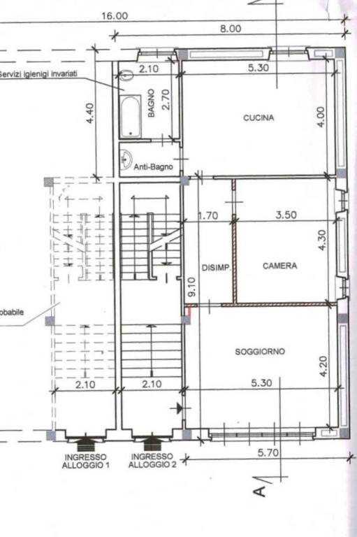
Piano terreno: luminosa zona giorno di oltre 20 mq., disimpegno, una camera, servizi e ampia cucina abitabile con accesso su retro giardino.
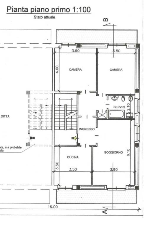
Piano primo: ingresso su disimpegno, salone con parete cottura di 35 mq. ca con accesso su balcone fronte strada, due camere, entrambe con accesso su balcone interno, servizi e ripostiglio.
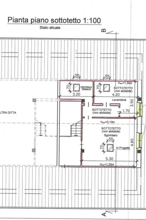
Piano secondo (mansardato): sottotetto non abitabile di 50 mq. ca con ottime caratteristiche, centrale termica e servizi ad uso lavanderia.
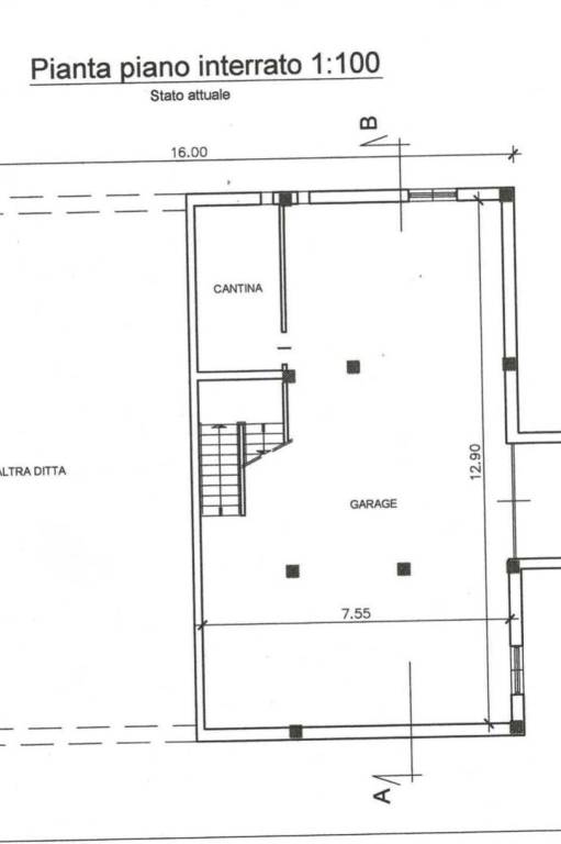
Piano seminterrato: cantina e autorimessa di 80 mq. adattabile in tavernetta.
Alcuni dettagli: facciata in paramano e duplice ingresso fronte/retro al piano terreno. Il piano primo, data la totale ristrutturazione, tra cui infissi esterni nuovi e frontalini, non necessita di importanti interventi.
Soluzione congeniale per due nuclei familiari distinti. L'abitazione può essere redistribuita secondo le proprie esigenze sfruttando l'ampia metratura dei singoli livelli.
A.P.E.: E
Maggiori info presso Studio.
Se vuoi saperne di più, puoi parlare con Guido Cravero.
Caratteristiche
Tipologia
Villa bifamiliare | Intera proprietà | Classe immobile signorile
Contratto
Vendita
Piano
Interrato (-1), piano terra, da 1 a 2
Piani edificio
4
Ascensore
No
Superficie
235 m²
Locali
5+
Camere da letto
3
Cucina
Cucina abitabile
Bagni
3
Arredato
No
Balcone
Terrazzo
No
Box, posti auto
2 in box privato/box in garage
Riscaldamento
Autonomo, a radiatori, alimentato a gas
Altre caratteristiche
  • Esposizione doppia
  • Infissi esterni in doppio vetro / legno
  • Mansarda
  • Porta blindata
  • Impianto tv singolo
Dettaglio superficie

Abitazione

Piano
Piano terra
Superficie
60,0 m²
Coefficiente
100%
Tipo superficie
Principale
Sup. commerciale
60,0 m²

Abitazione

Piano
1
Superficie
90,0 m²
Coefficiente
100%
Tipo superficie
Principale
Sup. commerciale
90,0 m²

Mansarda

Piano
2
Superficie
50,0 m²
Coefficiente
50%
Tipo superficie
Principale
Sup. commerciale
25,0 m²

Box o garage

Piano
Interrato (-1)
Superficie
80,0 m²
Coefficiente
50%
Tipo superficie
Principale
Sup. commerciale
40,0 m²

Giardino

Piano
Piano terra
Superficie
200,0 m²
Coefficiente
10%
Tipo superficie
Principale
Sup. commerciale
20,0 m²
Informazioni sul prezzo
Prezzo
€ 359.000
Prezzo al m²
1.528 €/m²
New
Dettaglio dei costi
Spese condominio
Nessuna spesa condominiale
Efficienza energetica

Consumo di energia

≥ 3,51 kWh/m² annoE

Planimetria
Scopri ogni angolo dell'immobile
+46
Mutuo
%
Durata del mutuo

Rata da € 1.066 al mese

€ 107.700 (30%)

€ 251.300 (70%)

Vuoi sapere che mutuo puoi richiedere?

Opzioni aggiuntive

Contatta l'inserzionista

Oppure