Villa unifamiliare via Milano 10, Magreglio

€ 550.000
5+
500 m²
3+
Balcone
Cantina

Nota

Annuncio aggiornato il 15/10/2025
Descrizione

riferimento: EK-123877971

Villa stile inglese con parco

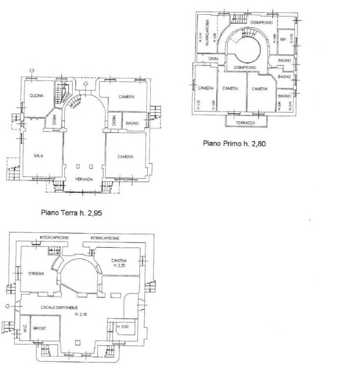
A 10 minuti in auto da Bellagio, in zona collinare soleggiata e nel cuore del paese di Magreglio proponiamo splendida villa stile inglese del 1920 ristrutturata negli anni 70 e conservata in ottimo stato. La villa è immersa in 2600 mq di giardino ed è posta su tre livelli. Il piano seminterrato è occupato da un ampio locale hobby, una stireria, bagno, cameretta e caratteristica cantina vini, il piano terra invece da ingresso, zona living composta da salotto con zona tv e veranda chiusa da serramenti vetrati, zona pranzo con antico camino con panche bi-laterali poggiato su mattonelle di cotto lombardo e arricchito da un passavivande di collegamento con la cucina abitabile retrostante, disimpegno, due camere, un bagno e terrazza circostante tra cui un bellissimo pergolato di uva americana con tavolo in cemento. Il piano primo mansardato si raggiunge da un ampio scalone circolare di accesso oltre ad una seconda scala di servizio ed è composta da tre camere doppie, due camere singole, disimpegno, tre bagni e un balcone. Alla proprietà, che gode di ottima privacy, eccellente esposizione solare e di un giardino molto curato e ben piantumato, si accede da un cancello in ferro battuto e un bel viale di ingresso.
Un garage doppio e comoda area parcheggio scoperta completano la proprietà.
Se vuoi saperne di più, puoi parlare con La Reale Domus Immobiliare.
Caratteristiche
Tipologia
Villa unifamiliare | Intera proprietà | Classe immobile media
Contratto
Vendita
Piano
Piano terra
Piani edificio
3
Superficie
500 m²
Locali
5+
Camere da letto
8
Cucina
Cucina abitabile
Bagni
3+
Balcone
Terrazzo
No
Box, posti auto
2 in box privato/box in garage
Riscaldamento
Autonomo, a radiatori, alimentato a gasolio
Altre caratteristiche
  • Caminetto
  • Esposizione esterna
  • Infissi esterni in vetro / legno
  • Taverna
  • Cancello elettrico
  • Impianto tv singolo
Dettaglio superficie

Abitazione

Piano
Piano terra
Superficie
500,0 m²
Coefficiente
100%
Tipo superficie
Principale
Sup. commerciale
500,0 m²
Informazioni sul prezzo
Prezzo
€ 550.000
Prezzo al m²
1.100 €/m²
New
Efficienza energetica

Consumo di energia

358.33 kWh/m² annoG

Planimetria
planimetria villa
box
area circostante verde
Scopri ogni angolo dell'immobile
+32
Inserzionista
scheda agenzia
Mutuo
%
Durata del mutuo

Rata da € 1.634 al mese

€ 165.000 (30%)

€ 385.000 (70%)

Vuoi sapere che mutuo puoi richiedere?

Opzioni aggiuntive

Contatta l'inserzionista

Oppure