Capannone in Vendita

€ 800.000
4.110 m²

Nota

Annuncio aggiornato il 06/11/2025
Descrizione

riferimento: MI3

Capannone in vendita a Dueville, Passo di Riva

Capannone commerciale/produttivo

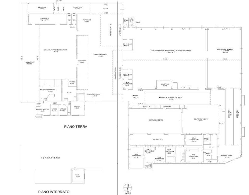
L'opificio in vendita a Dueville, situato nella zona di Passo di Riva, si estende su una superficie totale di 4.110 metri quadrati (area esterna di pertinenza esclusiva 1.450 m²) - superficie calpestabile di 3.833 metri quadrati garantisce ampi spazi per la produzione, lo stoccaggio e la logistica.

L'altezza dei locali è é variabile da 5 ml a di 7,60 metri, perfetta per ospitare macchinari e attrezzature industriali di medie dimensioni, con un'ampia libertà di movimento e facilità di manovra.Il capannone si sviluppa su un unico piano ed è dotato di 12 ingressi, garantendo una scorrevolezza nel flusso di persone e mezzi.

Questa caratteristica lo rende ideale per attività che richiedono un elevato numero di operai o per situazioni in cui è necessario dividere lo spazio in più aree di lavoro.Inoltre, la posizione strategica dell'opificio in zona Passo di Riva, a pochi passi dai principali snodi stradali e autostradali, lo rende facilmente raggiungibile e ben collegato con le principali città e zone industriali.

L'asset si compone di un capannone con zona produzione oggetto di tre ampliamenti dal 1966 al 1993, uffici, servizi, portici e tettoie, alloggio del custode, e porzione storica un tempo adibita a zona esposizione e uffici oltre ad un terreno agricolo di circa 5.630 m² da adibire potenzialmente a parcheggi.
Il compendio insiste su di un lotto di circa 5.630 m² e sviluppa in pianta una superficie coperta di 4.100 m²; risulta visibile dalla strada provinciale Schiavonesca/Marosticana.
La porzione produttiva, consente destinazioni d'uso produttiva, commerciale e di deposito.

Lo stato di conservazione è discreto, con la possibilità di apportare eventuali miglioramenti e personalizzazioni in base alle esigenze del futuro acquirente. E' stata inoltre ipotizzato un intervento di trasformazione che prevede la suddivisione in più unità artigianali.
Caratteristiche
Contratto
Vendita
Tipologia
Capannone
Superficie
4.110 m²
Disponibilità
Libero
Altezza capannone
7 m
Altre caratteristiche
  • Passo carrabile
Informazioni sul prezzo
Prezzo
€ 800.000
Prezzo al m²
195 €/m²
New
Dettaglio dei costi
Spese condominio
Nessuna spesa condominiale
Efficienza energetica

Consumo di energia

213.17 kWh/m² annoE

Planimetria
Foto 38
Foto 39
Scopri ogni angolo dell'immobile
+35
Opzioni aggiuntive

Contatta l'inserzionista

Oppure