Appartamento Strada Chiantigiana 48, Le Tolfe - Monteliscai, Siena

€ 130.000
5+
200 m²
2
T
No
Cantina

Nota

Annuncio aggiornato il 16/10/2025
Descrizione

riferimento: 246.25

Casale da ristrutturare Bolgione - Siena

Nella splendida cornice verdeggiante della campagna toscana, immerso nella quiete e nella bellezza di un paesaggio senza tempo, proponiamo in vendita una porzione di casale dal grande fascino, completamente da ristrutturare secondo il proprio gusto e visione.
La proprietà si sviluppa su due livelli ed è dotata di due ingressi indipendenti, offrendo così la possibilità di realizzare due appartamenti distinti oppure un’unica abitazione, collegando i piani tramite una scala interna. Un’opportunità ideale per chi desidera una soluzione abitativa flessibile o un progetto di investimento nel cuore della Toscana. Completano la proprietà tre piccoli magazzini esterni, perfetti come spazi accessori o da trasformare in ambienti funzionali secondo le proprie esigenze. Un immobile ricco di potenziale, in una posizione privilegiata, dove poter dar vita a un progetto personale tra autenticità e bellezza rurale.Contattaci per maggiori informazioni o per organizzare una visita! info@re-italy.it-0644292831
Se vuoi saperne di più, puoi parlare con Reitaly Real estate Advisory.
Caratteristiche
Tipologia
Appartamento | Intera proprietà | Classe immobile media
Contratto
Vendita
Piano
Piano terra
Piani edificio
2
Ascensore
No
Superficie
200 m²
Locali
5+
Camere da letto
4
Cucina
Cucina abitabile
Bagni
2
Arredato
No
Balcone
No
Terrazzo
No
Altre caratteristiche
  • Esposizione doppia
  • Infissi esterni in vetro / legno
Dettaglio superficie

Abitazione

Piano
Piano terra
Superficie
200,0 m²
Coefficiente
100%
Tipo superficie
Principale
Sup. commerciale
200,0 m²
Informazioni sul prezzo
Prezzo
€ 130.000
Prezzo al m²
650 €/m²
New
Dettaglio dei costi
Spese condominio
Nessuna spesa condominiale
Efficienza energetica

Consumo di energia

≥ 175 kWh/m² annoG

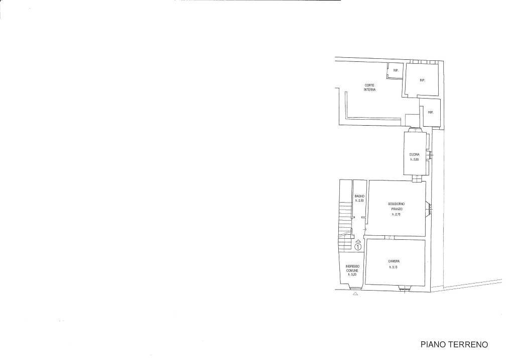
Planimetria
Secondo appartamento primo piano 1
Due appartamenti lato destro rispetto la chiesa -
Virtual tour
Scopri ogni angolo dell'immobile
+15
Inserzionista
scheda agenzia
Mutuo
%
Durata del mutuo

Rata da € 386 al mese

€ 39.000 (30%)

€ 91.000 (70%)

Vuoi sapere che mutuo puoi richiedere?

Opzioni aggiuntive

Contatta l'inserzionista

Oppure