Villa a schiera via Staffoli 7, Piazza, Gussago

€ 450.000
4
220 m²
2
No
Balcone
Terrazzo
Cantina

Nota

Annuncio aggiornato il 05/11/2025
Descrizione

riferimento: 61127966

Posizionata in località Sale di Gussago, proponiamo in vendita questa villetta a schiera di buone metrature facente parte di un contesto edificato nella seconda metà degli anni ’80.
Internamente la soluzione si trova ristrutturata a cavallo tra la fine degli anni ’90 e l’inizio degli anni 2000 a livello di impiantistica e finiture interne. Negli anni è poi stato inserito un impianto fotovoltaico da 3 kw. Non è presente batteria di accumulo.
L'immobile, che nella sua ubicazione trova uno dei principali punti di forza, si sviluppa su più livelli ed è impreziosito da un giardino privato di circa 180 mq disposto fronte e retro che concede altresi un doppio ingresso alla proprietà.
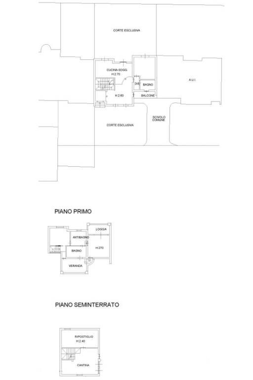
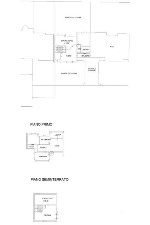
L'abitazione, si apre al piano terra sulla zona giorno di buone metrature con una pianta aperta, ma facilmente divisibile, avvalorata dalla presenza di un termo camino che riscalda tutto il living, oltre a portare calore anche al piano primo tramite delle bocchette di ventilazione canalizzata in tutti i locali del piano superiore.
La cucina a vista, che fa da padrona al piano, è stata realizzata in muratura e potrebbe essere facilmente separabile dal resto della zona giorno.
Il doppio affaccio sui giardini tramite porte finestre, da luminosità e valorizza la zona giorno oltre a dare la libertà di scelta per il punto di accesso alla proprietà.
Il giardino è inoltre valorizzato da un patio adatto per un soggiorno da esterni per le serate estive.
Il piano terra è inoltre occupato anche da una prima camera matrimoniale ed un servizio igienico con doccia e vano lavanderia.
Salendo ai piani superiori, troviamo la zona notte, dove sono presenti due camere da letto matrimoniali, di cui una con balcone, ed una veranda all'inglese ad oggi utilizzata come camera da letto singola. Parte degli spazi a questo livello ha come caratteristica delle travi a vista in quando ricavato da un ampliamento della proprietà per recupero di cubatura.
Completa il piano un servizio igienico di generose metrature allestito da vasca idromassaggio con sistema di generazione di vapore, mobile lavabo doppio ed una zona dedicata ad armadiature.
Al piano interrato, il cui accesso avviene sempre attraverso una scala interna direttamente collegata al piano terra, la proprietà è completata da una taverna ad oggi usata come deposito ed un ulteriore vano cantina. Sempre al piano interrato è presente un'autorimessa singola ampia con basculante elettrica e impianto di ricarica per auto elettrica.
Il riscaldamento è autonomo a radiatori suddiviso per zone, è inoltre presente impianto di climatizzazione su ogni livello della proprietà.
La soluzione è inoltre protetta da inferiate a tutte le finestre e porte finestre.
Punto di forza del complesso abitativo è la presenza di ulteriori posteggi pubblici, la vicinanza alla scuole che la rende appetibile per le famiglie e la strepitosa vicinanza al centro di Gussago.
Esternamente la villetta si presenta in buone condizioni, con imposte in legno e infissi in legno doppio v...
Se vuoi saperne di più, puoi parlare con Maurizio Pulvirenti ..

Di solito risponde entro 1 giorno

Caratteristiche
Tipologia
Villa a schiera | Intera proprietà | Classe immobile media
Contratto
Vendita
Piani edificio
2
Ascensore
No
Superficie
220 m²
Locali
4
Camere da letto
3
Cucina
Cucina abitabile
Bagni
2
Arredato
No
Balcone
Terrazzo
Box, posti auto
1 in box privato/box in garage
Riscaldamento
Autonomo, a radiatori, alimentato a metano
Climatizzazione
Autonomo
Informazioni sul prezzo
Prezzo
€ 450.000
Prezzo al m²
2.045 €/m²
New
Dettaglio dei costi
Spese condominio
€ 83/mese
Efficienza energetica

Consumo di energia

159.04 kWh/m² annoD

Planimetria
Planimetria dinamica
Planimetria statica
Planimetria 3D
Scopri ogni angolo dell'immobile
+30
Opzioni aggiuntive

Contatta l'inserzionista

Oppure