Terreno edificabile in Vendita

Prezzo su richiesta
8.000 m²

Nota

Annuncio aggiornato il 21/10/2025
Descrizione

riferimento: COD59

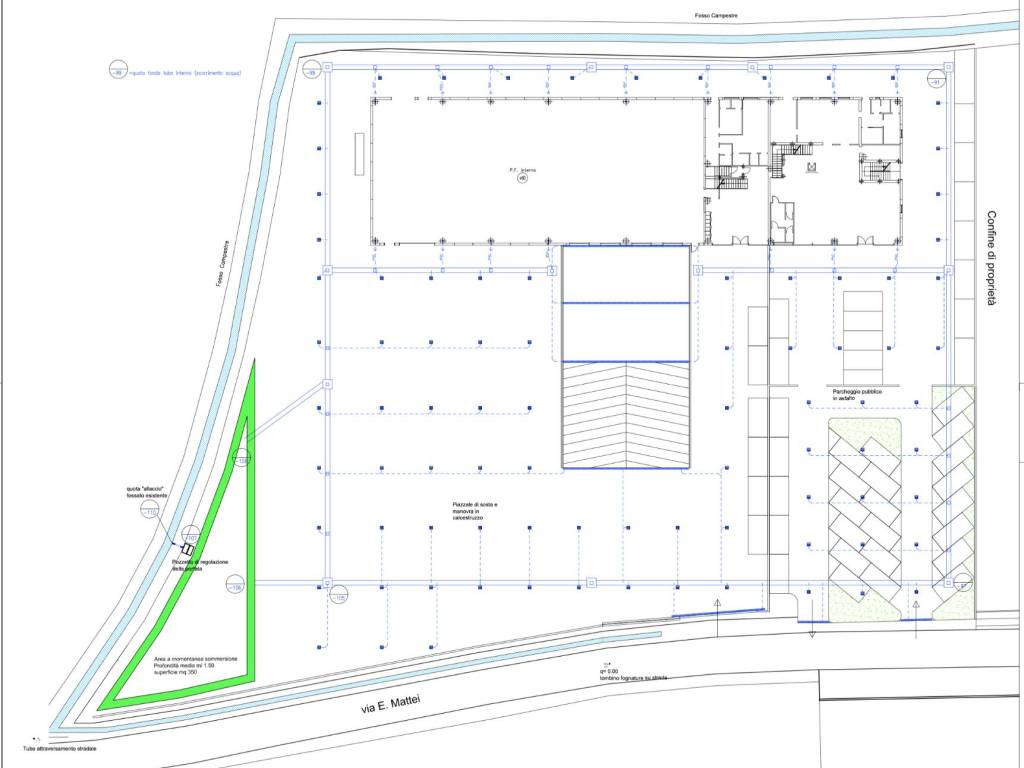
VENDESI TERRENO EDIFICABILE ZONA ARTIGIANALE CODEVIGO

Proponiamo in vendita terreno edificabile artigianale di mq 8000 (di forma regolare) con progetto approvato di un capannone di mq 1300.
E' possibile sviluppare un capannone anche di superfici maggiori in base alle necessità dei potenziali acquirenti.

PS : il terreno in oggetto ed il relativo capannone artigianale con progetto approvato di mq 1300 sono sicuramente l'ideale per aziende nel settore dei trasporti poiché gli spazi da adibire al parcheggio - sosta degli automezzi sono ampi e ben utilizzabili e non sempre disponibili nel mercato.
L'indirizzo ed il puntatore di mappa indicati nell’annuncio, per motivi di privacy, sono a scopo indicativo.

Per ulteriori informazioni contatta:

-Dal Santo Renato 335 / 60 47 403

☎ Agenzia Immobiliare PiazzAffari: 049/970 10 69
info@agenziapiazzaffari.net o visita il nostro sito www.agenziapiazzaffari.net

2 Punti Vendita a Piove di Sacco (PD)
- Via F.lli Sanguinazzi, 1 - Centro Commerciale Piazzagrande
- Via Roma, 29 - Centro Storico

Seguici anche su Facebook https://www.facebook.com/piazzaffarididalsantorenato/

> > > Se per acquistare la Tua Nuova Casa hai la necessità di vendere prima la Tua, non preoccuparti! Saremo a Tua disposizione per coordinare entrambe le compravendite fino ai rogiti notarili, avendo un unico interlocutore. < <
Caratteristiche
Contratto
Vendita
Tipologia
Terreno edificabile
Superficie
8.000 m²
Disponibilità
Libero
Qualificazione urbanistica
Industriale
Informazioni sul prezzo
Prezzo
Prezzo su richiesta
Opzioni aggiuntive

Contatta l'inserzionista