Bilocale vicolo Pozzo, 1, Centro, Besana in Brianza

€ 83.000
€ 99.000(-16,2%)
2
65 m²
1
T
No
Cantina

Nota

Annuncio aggiornato il 25/11/2025
Descrizione

riferimento: Cod. rif 3261882

Appartamento

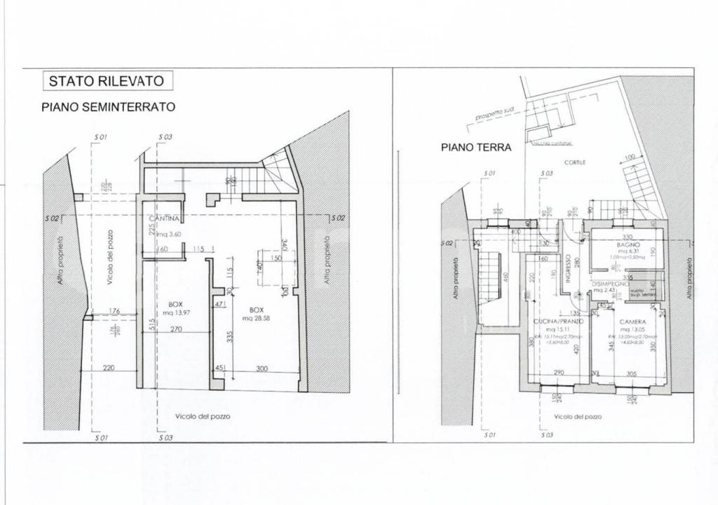
Besana Brianza centro: Bilocale al piano terra con area di comune esterna e box singolo.
L'immobile si trova in una palazzina indipendente, composta da due appartamenti, il bilocale e ubicato al piano terra, composta da angolo cucina e soggiorno, camera da letto ripostiglio e bagno, compresa nel prezzo Box singolo.

La palazzina gode di una ristrutturazione esterna delle facciate con cappotto, serramenti nuovi, la parte dei box ed ed esterna attualmente abbisogna di un completamente dei lavori che sono al rustico.

La posizione strategica dell'appartamento permette di raggiungere facilmente la stazione dei treni e delle fermate degli autobus, rendendo gli spostamenti comodi e veloci. Inoltre, la presenza di bar, caffè, ristoranti, negozi di vicinato, benzinaio, farmacia, banche nelle vicinanze garantisce una vita quotidiana piacevole e ricca di opportunità.

Non perdere l'occasione di acquistare questo immobile che è ottimo per investimento e messa a reddito, una posizione centrale in uno dei comuni più ambiti della Brianza. Contattami per organizzare una visita e scoprire tutte le potenzialità di questa proprietà.
Caratteristiche
Tipologia
Appartamento | Classe immobile media
Contratto
Vendita
Piano
Piano terra
Piani edificio
2
Ascensore
No
Superficie
65 m² | commerciale 75,8 m²
Locali
2
Bagni
1
Arredato
No
Box, posti auto
1 in box privato/box in garage
Dettaglio superficie

Abitazione

Piano
Piano terra
Superficie
65,0 m²
Coefficiente
100%
Tipo superficie
Principale
Sup. commerciale
65,0 m²

Cantina

Piano
Piano terra
Superficie
3,0 m²
Coefficiente
25%
Tipo superficie
Accessoria
Sup. commerciale
0,8 m²

Giardino

Piano
Piano terra
Superficie
20,0 m²
Coefficiente
10%
Tipo superficie
Accessoria
Sup. commerciale
2,0 m²

Box o garage

Piano
Piano terra
Superficie
16,0 m²
Coefficiente
50%
Tipo superficie
Accessoria
Sup. commerciale
8,0 m²
Informazioni sul prezzo
Prezzo
€ 83.000
Prezzo al m²
1.095 €/m²
New
Dettaglio dei costi
Spese condominio
Nessuna spesa condominiale
Efficienza energetica
  • Anno di costruzione

    2024
  • Certificazione energetica

    In attesa di certificazione
Planimetria
Scan2025-09-22_154713_000.jpg
Scopri ogni angolo dell'immobile
+9
Mutuo
%
Durata del mutuo

Rata da € 247 al mese

€ 24.900 (30%)

€ 58.100 (70%)

Vuoi sapere che mutuo puoi richiedere?

Opzioni aggiuntive

Contatta l'inserzionista

Oppure