Capannone all'asta frazione Samboseto, Busseto

da € 124.490,00
5+
995 m²
T

Nota

Annuncio aggiornato il 24/10/2025
Descrizione

riferimento: M PARMA-02/12/2025 -44/2024-Diana-4470178

capannone all'asta in frazione Sanboseto, 43011

RIFERIMENTO:4470178

frazione Sanboseto, 43011 Busseto Parma

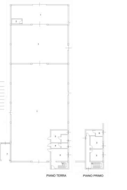
Lotto 1La piena proprieta' di un complesso immobiliare composto da capannone elevato di un piano fuori terra oltre il piano terreno, con annessa area pertinenziale, da piccolo deposito, box cani.Sul piccolo appezzamento di terreno identificato catastalmente al foglio 83 mappale 86 e' costruita una cabina elettrica e sussiste il diritto di superficie perpetuo costituito a favore dell'ENEL Spa.Estremi catastaliIl bene sopra descritto risulta cosi' individuato:al Catasto Fabbricati del Comune di Busseto, - Foglio 25, mappale 83, subalterno 1, Frazione Samboseto n. 118, piano T-1, categoria D/1, rendita E. 5.698,00 - CAPANNONE -;- Foglio 25, mappale 83, subalterno 4, Frazione Samboseto n. 118, piano T, categoria C/2, classe 3, consistenza 33 mq, superficie catastale mq 35,00, rendita E. 86,92 - DEPOSITO -;- Foglio 25, mappale 83, subalterno 5, Frazione Samboseto n. 118, piano T, categoria C/7, classe U, consistenza 22 mq, superficie catastale mq 24,00, rendita E. 11,36 - BOX RICOVERO CANI;Catasto terreni del Comune di Busseto- Foglio 25, mappale 86, ente urbano - piccolo appezzamento di terreno sul quale e' stata edificata CABINA ENEL di 16 mq..

Data di vendita 02/12/2025

Offerta minima 124.490,00 €

valore di perizia 225.750,00 €

Studio di Fattibilità Pre-Asta

Offriamo consulenza legale completa per l'acquisto tramite asta giudiziaria. I nostri servizi includono:

Ricerca dell'immobile secondo le esigenze del cliente
Studio di fattibilità pre-asta in fase di richiesta di visita
Studio di fattibilità del mutuo tramite banche convenzionate
Esame della perizia e documentazione correlata
Verifica legale
Preparazione e deposito delle offerte di partecipazione
Gestione della gara
Consulenza e documentazione post-aggiudicazione fino all'emissione del decreto di trasferimento o del rogito

Vi invitiamo a fissare una prima consulenza gratuita presso una delle nostre 80 sedi sparse su tutto il territorio per ricevere maggiori informazioni sul processo di partecipazione ad un'asta giudiziaria, tempistiche, costi e modalità di acquisto.

Ulteriore documentazione disponibile verrà messa a disposizione durante la consulenza.

+39 06 4006 1824

Visitate il nostro sito www.asteflorio.com dove potrete trovare più di 25.000 Aste disponibili e la nuova sezione dedicata agli NPL.
NB: Le immagini potrebbero essere solo esempi e non rappresentare gli immobili reali. Le coordinate geografiche, fornite automaticamente da Google, possono contenere inesattezze. Segnalate eventuali errori e rimuoveremo gli annunci non conformi.
L'ESATTEZZA DI TUTTI I DATI PUBBLICATI INOLTRE SARA' CONFERMATA IN SEDE DI CONSULENZA.
Se vuoi saperne di più, puoi parlare con Aste Florio.

Di solito risponde entro 2 giorni

Caratteristiche
Contratto
Vendita
Tipologia
Capannone | Intera proprietà | Classe immobile media
Superficie
995 m²
Locali
5+ locali, 1 bagno, cucina angolo cottura
Piano
Piano terra
Piani edificio
2
Disponibilità
Libero
Dati catastali
Foglio 25 - Particella 83 - Subalterno 1
Altri dati catastali
SubParticella 1 - Subalterno 1
Altre caratteristiche
  • Parzialmente Arredato
Dettaglio superficie

Capannone

Piano
Piano terra
Superficie
995,0 m²
Coefficiente
100%
Tipo superficie
Principale
Sup. commerciale
995,0 m²
Efficienza energetica

Consumo di energia

≥ 175 kWh/m² annoG

Dettaglio vendite
Tipo vendita
Competitiva
Data vendita
02/12/2025, 15:30
Stato
Non partecipabile
Per partecipare
Offerta minima
€ 124.490,00
Spesa prenota debito
No
Contributo non dovuto
No
Referente
PARMA-02/12/2025 -44/2024-Diana-4470178
Dettagli lotto
Lotto numero
1
Numero immobili
1
Categoria
IMMOBILE INDUSTRIALE
Dati procedura
Aggiornato il
20/11/2025
Numero procedura
2021
Planimetria
Screenshot_1
Scopri ogni angolo dell'immobile
+9
Opzioni aggiuntive

Contatta l'inserzionista