Appartamento via Pierandrea Mattioli 43, Leopoldo - Vittorio Emanuele - Statuto, Firenze

€ 518.000
5
108 m²
2
T
No

Nota

Annuncio aggiornato il 27/11/2025
Descrizione

riferimento: DV-10154-3

Appartamento Via Pierandrea Mattioli, 43, 50139, Firenze

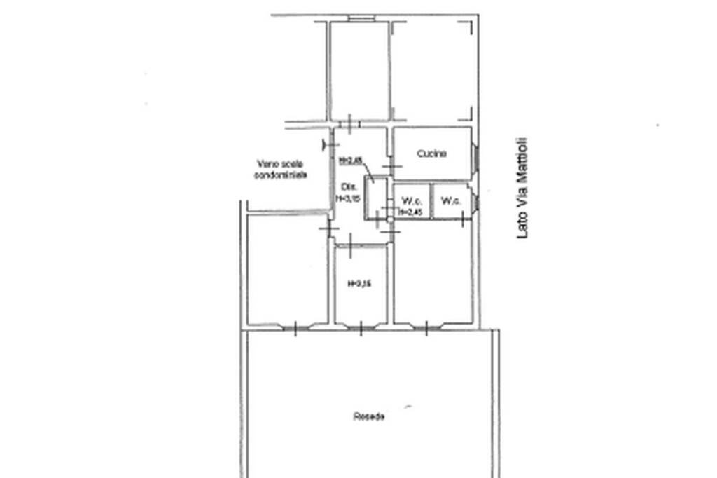
[Rif. DV-10154] In Via Pierandrea Mattioli 43, proponiamo in vendita un appartamento di 108 mq commerciali ristrutturato, situato al piano terra di un contesto residenziale tranquillo.
L'ingresso si apre su un corridoio che collega tutti gli ambienti della casa. Entrando, di fronte, troviamo la cucina abitabile; mentre a sinistra una prima camera utilizzabile anche come studio. Proseguendo, si accede al luminoso soggiorno con camino, dotato di uscita diretta nel giardino di 100 mq ca. con annaffiamento automatico, luogo perfetto per pranzi e momenti di relax all'aperto.
Segue la zona notte, che ospita una camera matrimoniale con accesso al giardino e bagno en suite, una terza camera, attualmente utilizzata come stanza di servizio, oltre al bagno principale, con vasca idromassaggio e ottime rifiniture.
L'abitazione gode di riscaldamento autonomo a radiatori, tripla esposizione, doppia entrata, anche da via Vittorio Emanuele II, predisposizione per l'aria condizionata, armadio a muro e soppalco per riporre comodamente vestiti ed oggetti vari, allarme ed inferriate a porte e finestre. Infine vi è la possibilità di prendere in affitto un posto auto scoperto nella stessa via, adiacente al palazzo, singolo o doppio.

L'immobile si trova in una zona residenziale di Firenze ben servita e collegata, grazie anche alla presenza delle fermate della tramvia "Poggetto", ad 1 minuto a piedi, "Pisacane" e "Leopoldo", a 4-5 minuti a piedi, e a pochi minuti dal centro storico. La posizione garantisce la vicinanza a scuole, negozi, aree verdi e servizi pubblici, mantenendo al contempo un'atmosfera tranquilla e riservata. Ideale per famiglie e per chi desidera ampi spazi abitativi con sfoghi esterni vivibili.
Caratteristiche
Tipologia
Appartamento | Intera proprietà | Classe immobile signorile
Contratto
Vendita
Piano
Piano terra
Piani edificio
4
Ascensore
No
Superficie
108 m²
Locali
5
Camere da letto
3
Cucina
Cucina abitabile
Bagni
2
Balcone
No
Terrazzo
No
Riscaldamento
Autonomo, a radiatori, alimentato a gas
Climatizzazione
Predisposizione impianto, freddo/caldo
Altre caratteristiche
  • Armadio a muro
  • Caminetto
  • Esposizione esterna
  • Giardino privato e comune
  • Idromassaggio
  • Impianto di allarme
  • Impianto tv singolo
Dettaglio superficie

Abitazione

Piano
Piano terra
Superficie
108,0 m²
Coefficiente
100%
Tipo superficie
Principale
Sup. commerciale
108,0 m²
Informazioni sul prezzo
Prezzo
€ 518.000
Prezzo al m²
4.796 €/m²
New
Dettaglio dei costi
Spese condominio
€ 125/mese
Efficienza energetica

Consumo di energia

171 kWh/m² annoF

Planimetria
Virtual tour
Scopri ogni angolo dell'immobile
+38
Mutuo
%
Durata del mutuo

Rata da € 1.539 al mese

€ 155.400 (30%)

€ 362.600 (70%)

Vuoi sapere che mutuo puoi richiedere?

Opzioni aggiuntive

Contatta l'inserzionista

Oppure