Magazzino - Deposito in Affitto

€ 1.000/mese
280 m²
2

Nota

Zenso

Prestiti online e veloci

Confronta le offerte in 1 minuto

Annuncio aggiornato il 30/10/2025
Descrizione

riferimento: 61134687

SAN CLEMENTE,
Su comoda e visibile strada di collegamento tra Coriano, San Clemente e Misano Adriatico,
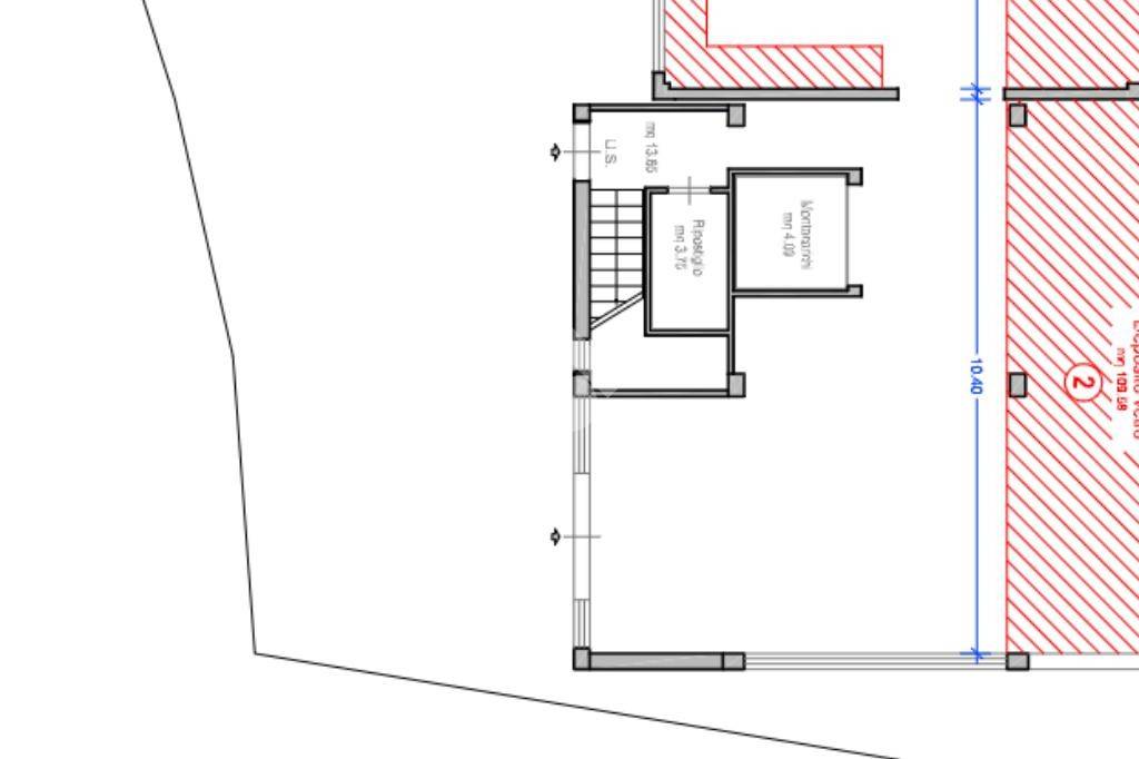
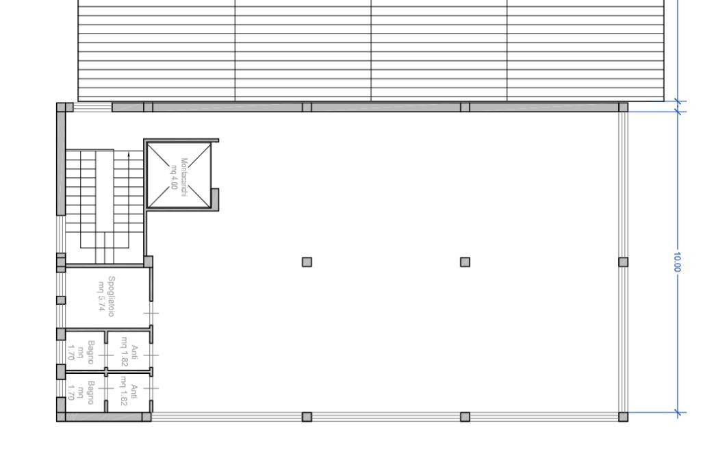
Magazzino in locazione ai piani terra e 1° in contesto industriale servito e recentemente ristrutturato.
Il magazzino si sviluppa su 2 livelli, ben collegati tramite vano scala e montacarichi, attualmente NON funzionante.
Al piano terra pratici ingressi pedonali e per piccoli mezzi per smistamento merce ed ufficio/ reception.
Al 1° piano ampio locale da adibire a deposito/magazzino o ulteriori uffici con doppi servizi e locale impianti.
Il punto di forza di questo immobile, oltre agli spazi interni, ben disegnati per varie attività, è l'ampio spazio esterno, da adibire a parcheggio clienti/operatori o a manovra automezzi.
FISSA SUBITO UN APPUNTAMENTO PER VISIONARE QUESTO IMMOBILE: 0541-601154.
Ogni agenzia ha un proprio titolare ed è autonoma.
Se vuoi saperne di più, puoi parlare con Massimo De Luca ..
Caratteristiche
Contratto
Affitto
Tipologia
Magazzino - Deposito
Superficie
280 m²
Locali
2 bagni
Box, posti auto
10 in box privato/box in garage, 10 in parcheggio/garage comune
Disponibilità
Libero
Informazioni sul prezzo
Prezzo
€ 1.000/mese
Prezzo al m²
4 €/m²
New
Dettaglio dei costi
Spese condominio
Nessuna spesa condominiale
Cauzione
Non indicata
Planimetria
PLN PARCHEGGIO
PLN PIANO TERRA
PLN P1
PLN P1 DETTAGLIO
Scopri ogni angolo dell'immobile
+14
Opzioni aggiuntive

Contatta l'inserzionista

Oppure