Villa unifamiliare, buono stato, 318 m², Centro, Piobesi Torinese

€ 299.000
5
318 m²
2
No
Balcone
Terrazzo
Cantina

Nota

Annuncio aggiornato il 18/11/2025
Descrizione

riferimento: EK-124361387

PIOBESI T.SE

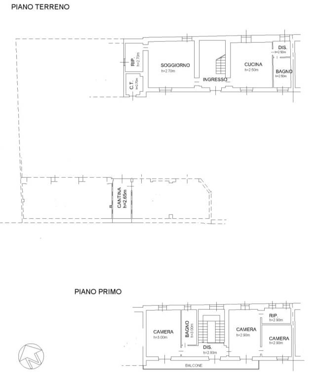
In centro paese, proponiamo casa indipendente su due livelli collegati da splendida scala interna in legno, così composta:
- al piano terreno ingresso, soggiorno, cucina abitabile, servizio e ripostiglio;
- al piano primo due camere da letto, di cui una con cabina armadio, studio, servizio e balcone.

L'immobile dispone di un cortile privato di 500 mq, una tettoia eventualmente recuperabile ai fini abitativi, un'ampia autorimessa e un grazioso portico piastrellato.
Se vuoi saperne di più, puoi parlare con Cambio Casa.

Di solito risponde entro 1 giorno

Caratteristiche
Tipologia
Villa unifamiliare | Intera proprietà | Classe immobile signorile
Contratto
Vendita
Piano
Piano terra
Piani edificio
2
Ascensore
No
Superficie
318 m²
Locali
5
Camere da letto
3
Cucina
Cucina abitabile
Bagni
2
Arredato
No
Balcone
Terrazzo
Box, posti auto
2 in box privato/box in garage, 5 in parcheggio/garage comune
Riscaldamento
Autonomo, a radiatori, alimentato a metano
Altre caratteristiche
  • Armadio a muro
  • Caminetto
  • Esposizione esterna
  • Fibra ottica
  • Impianto di allarme
  • Infissi esterni in doppio vetro / legno
  • Mansarda
  • Porta blindata
Dettaglio superficie

Abitazione

Piano
Piano terra
Superficie
240,0 m²
Coefficiente
100%
Tipo superficie
Principale
Sup. commerciale
240,0 m²

Giardino

Piano
Piano terra
Superficie
500,0 m²
Coefficiente
10%
Tipo superficie
Principale
Sup. commerciale
50,0 m²

Box o garage

Piano
Piano terra
Superficie
55,0 m²
Coefficiente
50%
Tipo superficie
Principale
Sup. commerciale
27,5 m²
Informazioni sul prezzo
Prezzo
€ 299.000
Prezzo al m²
940 €/m²
New
Dettaglio dei costi
Spese condominio
Nessuna spesa condominiale
Spese riscaldamento
€ 1.000/anno
Efficienza energetica

Consumo di energia

≥ 3,51 kWh/m² annoE

Planimetria
PLANIMETRIA
PLANIMETRIA
Scopri ogni angolo dell'immobile
+30
Mutuo
%
Durata del mutuo

Rata da € 888 al mese

€ 89.700 (30%)

€ 209.300 (70%)

Vuoi sapere che mutuo puoi richiedere?

Opzioni aggiuntive

Contatta l'inserzionista

Oppure