Capannone in Vendita

€ 1.850.000
2
3.280 m²
3+

Nota

Annuncio aggiornato il 04/11/2025
Descrizione

riferimento: EK-124377803

CAPANNONE IN VENDITA/AFFITTO POVOLARO DUEVILLE

Capannone in vendita o affitto a Dueville (VI)
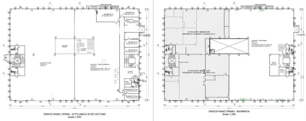
In zona produttiva comoda alle principali vie di comunicazione, proponiamo capannone di ampie dimensioni completamente recintato e dotato di aree esterne private. La superficie complessiva è di 3.280 mq, suddivisa in 2.100 mq al piano terra e 1.180 mq al piano primo, offrendo ampi spazi ideali per attività industriali, artigianali, logistiche o commerciali.
La struttura è organizzata per garantire massima funzionalità e comfort operativo. Al piano terra si sviluppano aree produttive e di servizio, tra cui mensa, tre spogliatoi, quattro bagni, ampio ripostiglio e quattro uffici, ben distribuiti e pronti all’uso.
Gli spazi al primo piano aggiungono ulteriori superfici sfruttabili, ideali per magazzino, laboratorio, uffici o area operativa.
L’immobile dispone di giardino privato e posti auto interni alla proprietà, con area esterna completamente recintata, garantendo sicurezza, privacy e facilità di manovra per mezzi e carico/scarico merci.
Soluzione ideale per realtà produttive e aziendali alla ricerca di ampi spazi, efficienza e posizione strategica.

Canone di locazione: € 12.000/mese
Contattaci per maggiori informazioni o per fissare un sopralluogo.
Se vuoi saperne di più, puoi parlare con Daniele Bortolan.
Caratteristiche
Contratto
Vendita
Tipologia
Capannone
Superficie
3.280 m²
Locali
2 locali, 3+ bagni
Piano
2 piani: Piano terra, 1°
Piani edificio
2
Disponibilità
Libero
Altezza capannone
5,5 m
Altre caratteristiche
  • Impianto di allarme
  • Mensa
  • Passo carrabile
  • Recintato
  • Spogliatoio
Dettaglio superficie

Capannone

Piano
Piano terra
Superficie
2.100,0 m²
Coefficiente
100%
Tipo superficie
Principale
Sup. commerciale
2.100,0 m²

Capannone

Piano
1
Superficie
1.180,0 m²
Coefficiente
100%
Tipo superficie
Principale
Sup. commerciale
1.180,0 m²
Informazioni sul prezzo
Prezzo
€ 1.850.000
Prezzo al m²
564 €/m²
New
Dettaglio dei costi
Spese condominio
Nessuna spesa condominiale
Efficienza energetica
  • Stato

    Buono / Abitabile
  • Riscaldamento

    Autonomo, ad aria, alimentazione elettrica
  • Climatizzatore

    Autonomo, freddo/caldo
Planimetria
PLN.1C
Scopri ogni angolo dell'immobile
+15
Opzioni aggiuntive

Contatta l'inserzionista

Oppure