Bilocale via Aldo Moro 28, Centro, Zanica

€ 148.000
2
96 m²
1
1
Cantina

Nota

Annuncio aggiornato il 14/11/2025
Descrizione

riferimento: DV-11063

Appartamento Via Aldo Moro, 28, 24050, Zanica

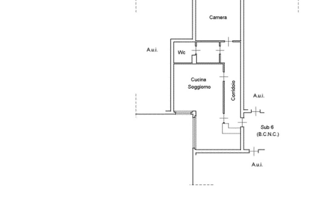
[Rif. DV-11063] Proponiamo in vendita un appartamento di 96 mq commerciali in Via Aldo Moro 28 a Zanica, situato al primo piano di un edificio ben tenuto e servito da ascensore.
L'ingresso apre su un corridoio che immette in una spaziosa zona giorno, composta da un accogliente soggiorno e da una cucina abitabile, due ambienti luminosi e funzionali, ideali per vivere in relax o ricevere ospiti. La zona notte ospita una grande camera matrimoniale e un bagno con doccia preceduto da un antibagno.
L'immobile, in buono stato, è dotato di porta blindata, videocitofono, armadi a muro, infissi di qualità e climatizzazione autonoma caldo/freddo.
A completamento, una cantina di pertinenza e un ampio box auto privato all'interno dell'area condominiale.
Possibilità di trasformazione dell'appartamento con poche modifiche in trilocale con due camere da letto.
L'appartamento si trova in una zona residenziale ben servita di Zanica, caratterizzata da tranquillità e ottima vivibilità. Nelle immediate vicinanze sono presenti negozi, supermercati, scuole, fermate dei mezzi pubblici e aree verdi attrezzate. La posizione è strategica anche per i collegamenti: Bergamo dista meno di 10 minuti d'auto, così come l'aeroporto di Orio al Serio, mentre l'accesso alle principali arterie stradali consente di raggiungere comodamente Milano e la Brianza. Una soluzione ideale per chi desidera abitare in un contesto curato, ben collegato e dotato di ogni comfort.
Caratteristiche
Tipologia
Appartamento | Intera proprietà | Classe immobile media
Contratto
Vendita
Piano
1
Piani edificio
3
Ascensore
Superficie
96 m²
Locali
2
Camere da letto
1
Cucina
Cucina abitabile
Bagni
1
Arredato
No
Balcone
No
Terrazzo
No
Box, posti auto
1 in box privato/box in garage
Riscaldamento
Autonomo, a radiatori, alimentato a gas
Climatizzazione
Autonomo, freddo/caldo
Altre caratteristiche
  • Armadio a muro
  • Esposizione doppia
  • Porta blindata
  • Cancello elettrico
  • Impianto tv singolo
  • VideoCitofono
Dettaglio superficie

Abitazione

Piano
1
Superficie
96,0 m²
Coefficiente
100%
Tipo superficie
Principale
Sup. commerciale
96,0 m²
Informazioni sul prezzo
Prezzo
€ 148.000
Prezzo al m²
1.542 €/m²
New
Dettaglio dei costi
Spese condominio
€ 42/mese
Efficienza energetica

Consumo di energia

180 kWh/m² annoG

Planimetria
Virtual tour
Scopri ogni angolo dell'immobile
+59
Mutuo
%
Durata del mutuo

Rata da € 440 al mese

€ 44.400 (30%)

€ 103.600 (70%)

Vuoi sapere che mutuo puoi richiedere?

Opzioni aggiuntive

Contatta l'inserzionista

Oppure