Quadrilocale via Romana 160, Mazzano Romano

€ 129.000
4
120 m²
2
1
No
Balcone
Cantina

Nota

Annuncio aggiornato il 24/11/2025
Descrizione

riferimento: apppianoprimomazzano

MAZZANO ROMANO - APPARTAMENTO DI 120 MQ

Mazzano Romano - Via Romana, 160
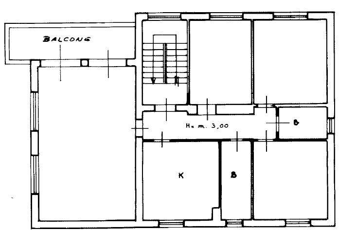
Interessante appartamento di 120 mq posto al piano primo, con affaccio sul verde.
L'immobile è composto da: Ingresso, salone con camino, tre camere, cucina con camino, doppi servizi.
Due posti auto privati scoperti e cantina.
La casa si presenta da ristrutturare.
La proprietà è attualmente suddivisa in due appartamenti indipendenti tra loro (come da planimetria allegata), rendendolo ideale per famiglie composte da due nuclei familiari o per chi desidera abitarne una parte ed affittarne l'altra. Questa configurazione offre la flessibilità di vivere in un ambiente spazioso e al contempo beneficiare di un reddito aggiuntivo, sfruttando al meglio le potenzialità della proprietà. Un'opportunità perfetta per chi cerca una soluzione abitativa versatile e funzionale.
Se vuoi saperne di più, puoi parlare con Professionecasa Formello.

Di solito risponde entro 12 ore

Caratteristiche
Tipologia
Appartamento | Intera proprietà | Classe immobile media
Contratto
Vendita
Piano
1
Piani edificio
2
Ascensore
No
Superficie
120 m² | commerciale 122,4 m²
Locali
4
Camere da letto
3
Cucina
Cucina a vista
Bagni
2
Arredato
No
Balcone
Terrazzo
No
Box, posti auto
2 in parcheggio/garage comune
Riscaldamento
Autonomo, a radiatori, alimentato a gpl
Climatizzazione
Autonomo, freddo/caldo
Altre caratteristiche
  • Caminetto
  • Esposizione esterna
  • Infissi esterni in vetro / legno
  • Impianto tv con parabola satellitare
Dettaglio superficie

Abitazione

Piano
1
Superficie
120,0 m²
Coefficiente
100%
Tipo superficie
Principale
Sup. commerciale
120,0 m²

Balcone

Piano
1
Superficie
8,0 m²
Coefficiente
30%
Tipo superficie
Accessoria
Sup. commerciale
2,4 m²
Informazioni sul prezzo
Prezzo
€ 129.000
Prezzo al m²
1.054 €/m²
New
Dettaglio dei costi
Spese condominio
Nessuna spesa condominiale
Efficienza energetica

Consumo di energia

≥ 175 kWh/m² annoG

Planimetria
Planimetria
planimetria
Virtual tour
Scopri ogni angolo dell'immobile
+19
Mutuo
%
Durata del mutuo

Rata da € 383 al mese

€ 38.700 (30%)

€ 90.300 (70%)

Vuoi sapere che mutuo puoi richiedere?

Opzioni aggiuntive

Contatta l'inserzionista

Oppure