map icon

Villa unifamiliare, nuova, 181 m², Albizzate

Albizzate
€ 465.000
3
181 m²
2
Lusso
No
Terrazzo

Nota

Annuncio aggiornato il 31/01/2025
Descrizione

riferimento: EK-66040613

ALBIZZATE ELEGANTI VILLE UNIFAMILIARI

ALBIZZATE - ELEGANTE COMPLESSO RESIDENZIALE COSTITUITO SOLO DA 4 UNITÀ INDIPENDENTI A PARTIRE DA EURO 465.000,00.
Ubicato nella parte alta del paese, comoda con tutti i servizi, stiamo progettando per il 2025 un'elegante intervento di 4 ville singole collegate solo dalle autorimesse, di ampia metratura e dalle finiture di pregio.
Le ville saranno distribuite su 2 livelli fuori terra con giardini privati; al piano terra ampia zona giorno costituita da cucina soggiorno e pranzo, 2 camere da letto e un bagno. Al piano primo tre luminosi locali ed un ulteriore bagno. Completano la proprietà un’autorimessa per il ricovero di 2 auto affiancate e un locale da adibire a centrale tecnica. All’esterno bellissimo porticato protetto da pergola bioclimatica a lamelle orientabili, protegge dai raggi solari e ripara anche dalla pioggia; la copertura orientabile permette una ventilazione piacevole evitando l’effetto “serra” dando uno spazio ombreggiato piacevole e vivibile, senza togliere luce naturale agli ambienti interni della casa.

Possibilità di progettazione personalizzata o di vendita del lotti di terreni.
Se vuoi saperne di più, puoi parlare con Pietro Milani.
Caratteristiche
Tipologia
Villa unifamiliare | Intera proprietà | Classe immobile signorile
Contratto
Vendita
Piano
Piano terra, 1
Piani edificio
2
Ascensore
No
Superficie
181 m²
Locali
3
Camere da letto
2
Cucina
Cucina abitabile
Bagni
2
Arredato
No
Balcone
No
Terrazzo
Box, posti auto
2 in box privato/box in garage
Riscaldamento
Autonomo, a pavimento, alimentato a fotovoltaico
Climatizzazione
Predisposizione impianto
Altre caratteristiche
  • Esposizione doppia
  • Infissi esterni in doppio vetro / PVC
  • Mansarda
  • Porta blindata
  • Impianto tv singolo
  • VideoCitofono
Dettaglio superficie

Abitazione

Piano
Piano terra
Superficie
90,0 m²
Coefficiente
100%
Tipo superficie
Principale
Sup. commerciale
90,0 m²

Mansarda

Piano
1
Superficie
65,0 m²
Coefficiente
100%
Tipo superficie
Principale
Sup. commerciale
65,0 m²

Terrazzo

Piano
Piano terra
Superficie
20,0 m²
Coefficiente
30%
Tipo superficie
Principale
Sup. commerciale
6,0 m²

Giardino

Piano
Piano terra
Superficie
200,0 m²
Coefficiente
10%
Tipo superficie
Principale
Sup. commerciale
20,0 m²
Informazioni sul prezzo
Prezzo
€ 465.000
Prezzo al m²
2.569 €/m²
New
Dettaglio dei costi
Spese condominio
Nessuna spesa condominiale
Efficienza energetica
  • Anno di costruzione

    2025
  • Stato

    Nuovo / In costruzione
  • Riscaldamento

    Autonomo, a pavimento, alimentato a fotovoltaico
  • Climatizzatore

    Predisposizione impianto
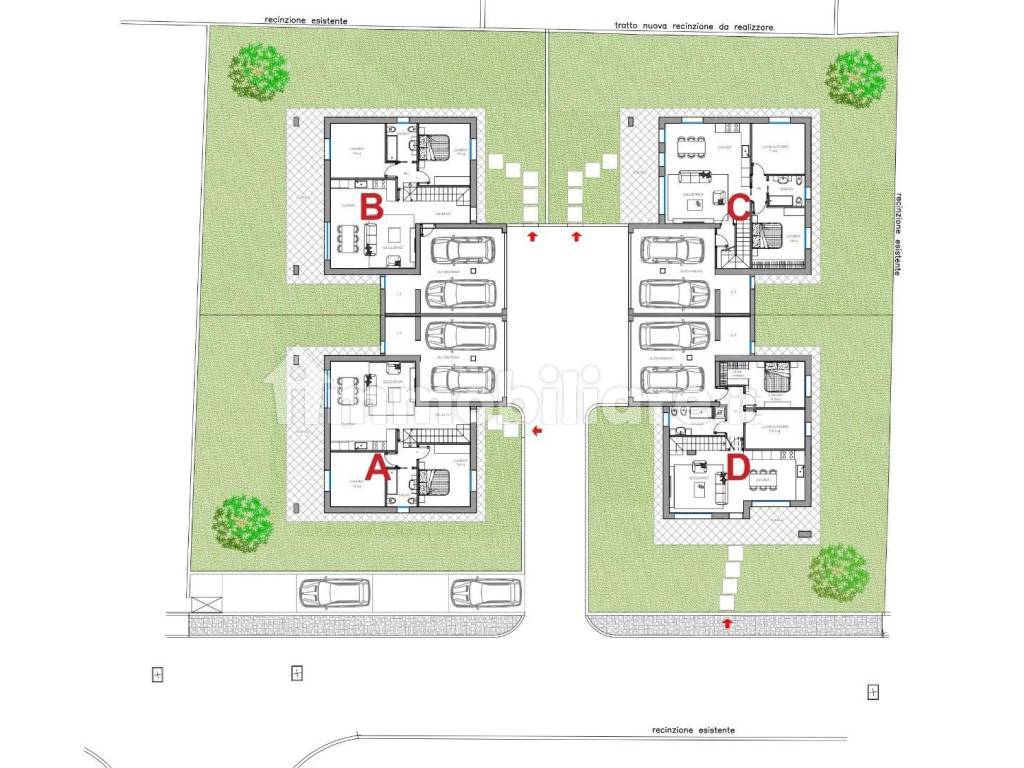
Planimetria
Planimetria
VILLA D
Mutuo
%
Durata del mutuo

Rata da € 1.381 al mese

€ 139.500 (30%)

€ 325.500 (70%)

Vuoi sapere che mutuo puoi richiedere?

Opzioni aggiuntive

Contatta l'inserzionista

Oppure