Ufficio - Studio in Vendita

€ 980.000
5+
1.330 m²
3+
1 - 2

Nota

Annuncio aggiornato il 20/03/2025
Descrizione

riferimento: 40103018

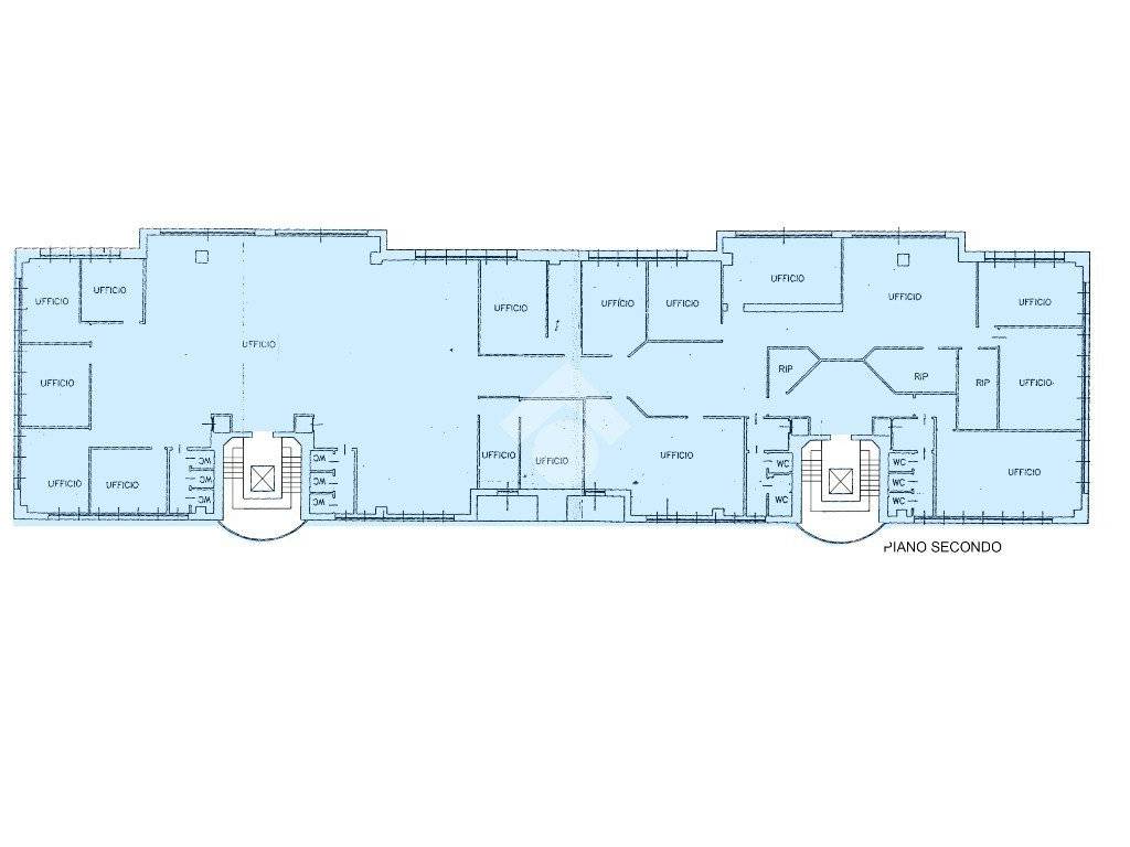
Ufficio mq 1100 + Ufficio mq 230

PADERNO DUGNANO - UFFICIO MQ 1100 + UFFICIO MQ 230 AFFITTATO- All'interno di una  palazzina terziaria di recente costruzione e prospettante sulla Vecchia Valassina, proponiamo una soluzione di ufficio di ottima immagine vuoto  di mq 1100 e una affittata di mq 230. Entrambi con finiture di pregio. Tra i vari accessori a disposizione da segnalare il pavimento galleggiante, impianto di climatizzazione e cablatura degli ambienti. A disposizione oltre 18 posti auto riservati in parcheggio interrato. VENDESI. Con un'operatività iniziata nei primissimi anni '90, l'ufficio Industriale di Paderno Dugnano si attesta a buon diritto tra le primissime realtà che si sono occupate di sviluppare un patrimonio di competenze specifiche nell'ambito dell'intermediazione immobiliare nel settore industriale. Tutti questi anni di lavoro hanno prodotto una straordinaria conoscenza del tessuto industriale presente nei comuni - che ricordiamo essere Paderno Dugnano, Cusano Milanino, Cormano, Novate Milanese, Bollate e Senago - nei quali l'ufficio direttamente opera e che mettiamo volentieri a disposizione dei nostri clienti.

Ogni agenzia ha un proprio titolare ed è autonoma - Le presenti informazioni non costituiscono elemento contrattuale.
Se vuoi saperne di più, puoi parlare con Pierangelo Lovato.

Di solito risponde entro 2 giorni

Caratteristiche
Contratto
Vendita
Tipologia
Ufficio - Studio | Classe immobile signorile
Superficie
1.330 m²
Locali
5+ locali, 3+ bagni
Disposizione Interni
Divisi da pareti
Piano
2 piani: da 1° a 2°, con accesso disabili
Piani edificio
2
Box, posti auto
18 in box privato/box in garage
Altre caratteristiche
  • Cablato
  • Controsoffitto
  • Esposizione doppia
  • Infissi esterni in vetro / metallo
  • Internet a banda larga
  • Parzialmente Arredato
  • Pavimento flottante
  • Porta blindata
Dettaglio superficie

Ufficio o Studio

Piano
2
Superficie
1.100,0 m²
Coefficiente
100%
Tipo superficie
Principale
Sup. commerciale
1.100,0 m²

Ufficio o Studio

Piano
1
Superficie
230,0 m²
Coefficiente
100%
Tipo superficie
Principale
Sup. commerciale
230,0 m²
Informazioni sul prezzo
Prezzo
€ 980.000
Prezzo al m²
737 €/m²
New
Dettaglio dei costi
Spese condominio
€ 3.000/mese
Efficienza energetica

Consumo di energia

34.84 kWh/m² annoD

Planimetria
Piantina
Virtual tour
Scopri ogni angolo dell'immobile
+14
Opzioni aggiuntive

Contatta l'inserzionista

Oppure