Terreno edificabile in Vendita

€ 112.000
486 m²

Nota

Annuncio aggiornato il 24/07/2024
Descrizione

riferimento: gerenzano

terreno edificabile a licenza singola.

Terreno recintato, ideale per la realizzazione di una villa singola.
Posizionato nella zona più tranquilla di gerenzano è ideale per la realizzazione di un'unità singola.
Vendita senza vincoli di progettazzione e costruzione.
Indice di edificabilità pari a 0,8 mc su mq.
Altezza ammessa 8m.
Indice copertura 40%.
Terreno già cintato per tre lati su quattro.
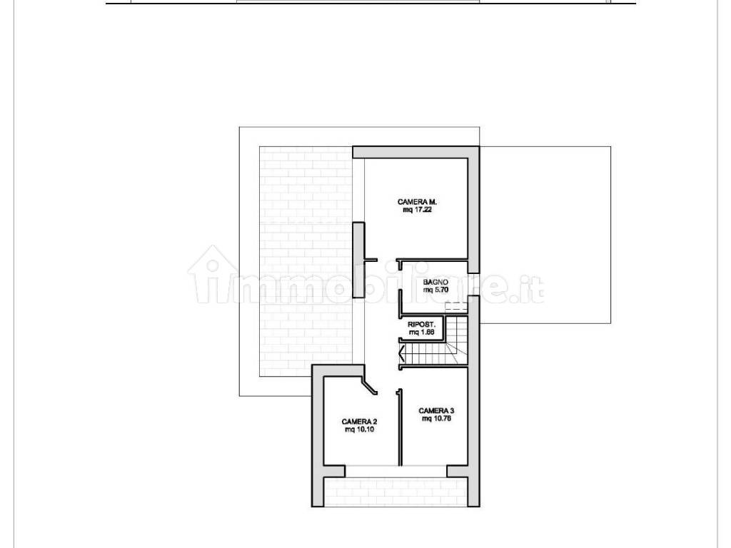
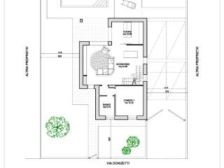
Il progetto allegato è stato sviluppato su questo terreno.
Valutiamo anche la costruzione completa dell'immobile chiavi in mano.
Se vuoi saperne di più, puoi parlare con Pietro Radrizzani.
Caratteristiche
Contratto
Vendita
Tipologia
Terreno edificabile
Superficie
486 m²
Disponibilità
Libero
Dislivello terreno
Leggero
Altezza massima edificabile
8 m
Area edificabile
130 m²
Accesso in strada/servitù di passaggio
In strada asfaltata
Altre caratteristiche
  • Allaccio acqua
  • Allaccio elettricità
  • Allaccio fogne
  • Allaccio gas
  • Illuminazione pubblica
  • Recintato
Informazioni sul prezzo
Prezzo
€ 112.000
Prezzo al m²
230 €/m²
New
Planimetria
Via Donizzetti 001
Via Donizzetti 002
Scopri ogni angolo dell'immobile
+11
Inserzionista
Pietro Radrizzani

Pietro Radrizzani

scheda agenzia
Opzioni aggiuntive

Contatta l'inserzionista

Oppure
Pietro Radrizzani

Pietro Radrizzani