Magazzino - Deposito in Vendita

€ 165.000
170 m²
3+
T

Nota

Annuncio aggiornato il 11/07/2025
Descrizione

riferimento: V000428.

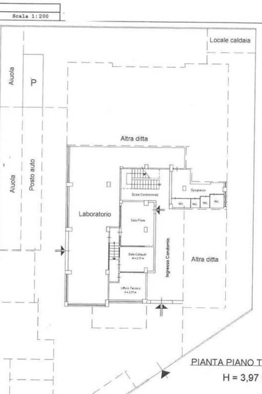
San Gregorio magazzino deposito con uffici

San Gregorio, zona Canalicchio, vendesi ampio deposito con passo carrabile larghezza 4 m e altezza 3,6 m, oltre zona ufficio in edificio signorile con cancello automatico.
Superficie complessiva metri quadri 170 , così composta: ampio ingresso-reception, disimpegno, tre vani ufficio, grande magazzino altezza oltre 4m carrabile e zona servizi (4 wc).
Posto auto assegnato. Categoria Catastale C/3.
Vendesi euro 165.000
Cod. Imm. V428 oppure V000428
Visita il Ns sito inserendo il codice immobile per ulteriori dettagli.

SicilProperty RealEstate info 095/0934130.
Puoi seguire la SicilProperty, agenzia immobiliare catania, su Facebook, Twitter, Linkedin, Youtube.
Se vuoi saperne di più, puoi parlare con Fabrizio La Fata.
Caratteristiche
Contratto
Vendita
Tipologia
Magazzino - Deposito
Superficie
170 m²
Locali
3+ bagni
Piano
Piano terra
Box, posti auto
1 in box privato/box in garage, 1 in parcheggio/garage comune
Disponibilità
Libero
Altre caratteristiche
  • Impianto di allarme
  • Passo carrabile
Dettaglio superficie

Magazzino - Deposito

Piano
Piano terra
Superficie
170,0 m²
Coefficiente
100%
Tipo superficie
Principale
Sup. commerciale
170,0 m²
Informazioni sul prezzo
Prezzo
€ 165.000
Prezzo al m²
971 €/m²
New
Dettaglio dei costi
Spese condominio
€ 8/mese
Planimetria
Virtual tour
Scopri ogni angolo dell'immobile
+19
Inserzionista
scheda agenzia
Opzioni aggiuntive

Contatta l'inserzionista

Oppure