Terreno edificabile in Vendita

€ 80.000
504 m²

Nota

Annuncio aggiornato il 14/02/2023
Descrizione

riferimento: SLT55T

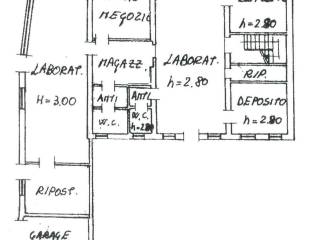
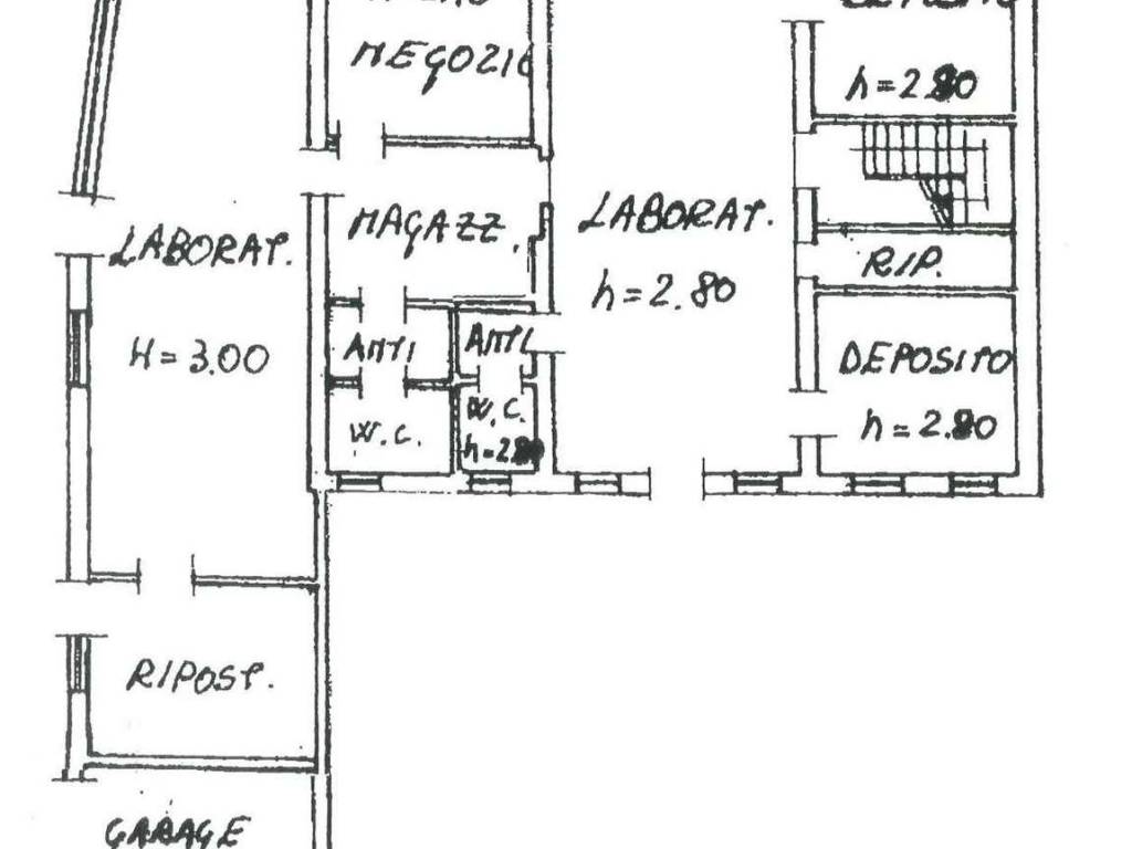
Santa Lucia di Piave - Vendiamo un terreno con un rustico da demolire in centro del paese. Il terreno è di circa 500 mq. con una edificabilità elevata ( oltre 1000 mc.). Il terreno edificabile è molto interessante perché con la demolizione del rustico si possono sfruttare le agevolazioni fiscali per la ricostruzione di una casa nuova, in questo modo si possono recuperare fino a 50.000€ di deduzioni fiscali!!!!
Si precisa che gli indirizzi presenti negli annunci non sono identificativi dell'ubicazione esatta dell'immobile, danno un riferimento solo generico della zona al cliente che ricerca, al fine di tutelare la riservatezza e la privacy del venditore. Per visionare l'immobile o per ricevere ulteriori informazioni contattateci senza impegno: 0438 460239 www.immobiliaredinamica.it
Puoi visionare altre proposte di immobili ad uso residenziale, industriale, commerciale direttamente sul nostro sito. Inoltre eseguiamo stime, perizie, ed ancora consulenze immobiliari, energetiche, commerciali e realizzazioni di progetti immobiliari.
Caratteristiche
Contratto
Vendita
Tipologia
Terreno edificabile
Superficie
504 m²
Disponibilità
Libero
Altre caratteristiche
  • Esposizione nord, sud, est, ovest
Informazioni sul prezzo
Prezzo
€ 80.000
Prezzo al m²
159 €/m²
New
Scopri ogni angolo dell'immobile
+2
Opzioni aggiuntive

Contatta l'inserzionista

Oppure