Palazzo - Edificio in Vendita

€ 345.000
2
50 m²
2
T

Nota

Annuncio aggiornato il 31/10/2025
Descrizione

riferimento: EK-84928684

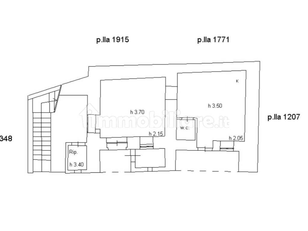
Rustico semi-indipendente con corte, appena ristrutturato, categoria A4 3 vani, totale mq.63 catastali, attualmente libero, ingresso dalla strada principale, eventuale posto auto da assegnare con compenso mensile o da acquistare.
Impianto di aria climatizzata Mitshubishi dual split, caldaia riscaldamento e acqua calda Riello, il tutto di nuova installazione, 2 bagni, ingresso, balconcino di circa 8 metri quadri, zona esterna di circa 7 metri quadri con accesso alla caldaia, due rispostogli.
Trattativa privata nessuna agenzia immobiliare e costi di commissione.
Caratteristiche
Contratto
Vendita | Immobile a reddito
Tipologia
Palazzo - Edificio | Classe immobile media
Superficie
50 m² | commerciale 55 m²
Locali
2 locali, 2 bagni
Piano
Piano terra
Box, posti auto
1 in parcheggio/garage comune
Disponibilità
Libero
Uso edificio attuale
Residenziale
Altre caratteristiche
  • 2 balconi
  • Esposizione esterna
  • Infissi esterni in doppio vetro / metallo
Dettaglio superficie

Altro

Piano
Piano terra
Superficie
50,0 m²
Coefficiente
0%
Tipo superficie
Principale
Sup. commerciale

Appartamento

Superficie
55,0 m²
Coefficiente
100%
Tipo superficie
Accessoria
Sup. commerciale
55,0 m²
Informazioni sul prezzo
Prezzo
€ 345.000
Prezzo al m²
6.273 €/m²
Dettaglio dei costi
Spese condominio
Nessuna spesa condominiale
Efficienza energetica

Consumo di energia

175 kWh/m² annoD

Planimetria
Scopri ogni angolo dell'immobile
+17
Inserzionista

Privato

Mutuo
%
Durata del mutuo

Rata da € 1.025 al mese

€ 103.500 (30%)

€ 241.500 (70%)

Vuoi un preventivo personalizzato e gratuito?

Opzioni aggiuntive

Contatta l'inserzionista

Chiedi all'Assistente AIBeta

  • Ottieni subito tutte le info sull’immobile 24/7
  • Inoltra richieste direttamente al venditore

Privato