Capannone in Vendita

Prezzo su richiesta
2.500 m²
3+

Nota

Annuncio aggiornato il 13/01/2021
Descrizione

riferimento: EK-85025522

OPIFICIO IN VENDITA

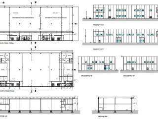
L'agenzia "Progetto Casa di Massimo Carozza" propone in vendita n. 2 opifici industriali/commerciali in fase di realizzazione, siti nel Comune di San Marco Evangelista (CE) S.S.P. 335. Gli immobili distano a pochi Km dal casello autostradale di Caserta Sud. I fabbricati saranno realizzati su una superficie originaria di Mq 12.500 ed avranno una grandezza rispettivamente di Mq 2.500 coperti più Mq 500 destinati all'area uffici, ampliabili, area esterna di manovra condominiale, avranno un'altezza di mt 12 e saranno dotati di banchine di carico su richiesta, inoltre entrambi avranno predisposizione per carroponti.
Per maggiori informazioni:
Progetto Casa di Carozza Massimo
Tel: 0823/1541132 - Cell: 3284167032
Via R. Luxembourg, 15 - San Marco Ev. (CE)
Se vuoi saperne di più, puoi parlare con Massimo Carozza.
Caratteristiche
Contratto
Vendita | Affitto con riscatto
Tipologia
Capannone
Superficie
2.500 m²
Locali
3+ bagni - uno o più adatto a persone disabili
Piano
Piano terra, con accesso disabili
Piani edificio
1
Box, posti auto
10 in parcheggio/garage comune
Disponibilità
Libero
Altezza capannone
13,5 m
Altezza sottotrave
12 m
Campate
2 - con pilastri
Banchine di carico
4
Altre caratteristiche
  • Docce
  • Impianto di allarme
  • Mensa
  • Passo carrabile
  • Reception
  • Recintato
  • Spogliatoio
  • Vigilanza CCTV
Dettaglio superficie

Capannone

Piano
Piano terra
Superficie
2.500,0 m²
Coefficiente
100%
Tipo superficie
Principale
Sup. commerciale
2.500,0 m²
Informazioni sul prezzo
Prezzo
Prezzo su richiesta
Efficienza energetica

Consumo di energia

≥ 175 kWh/m² annoG

Opzioni aggiuntive

Contatta l'inserzionista