Appartamento in villa, nuova, 107 m², Centro, Carate Urio

€ 531.000
3
107 m²
1
Lusso
Cantina

Nota

Annuncio aggiornato il 22/08/2024
Descrizione

riferimento: EK-88266963

CARATE URIO - REGINA NUOVA" in posizione dominante con incredibile vista su tutto il Lago di Como VENDIAMO lussuosi e luminosissimi appartamenti in villa.
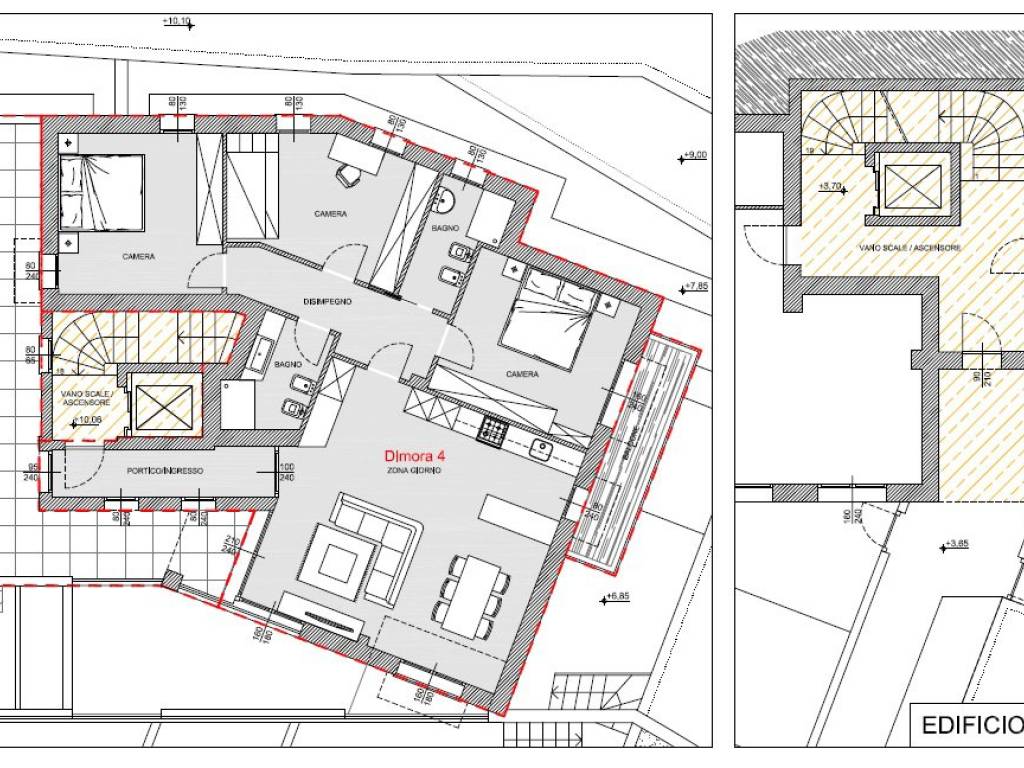
L'immobile è così composto da:
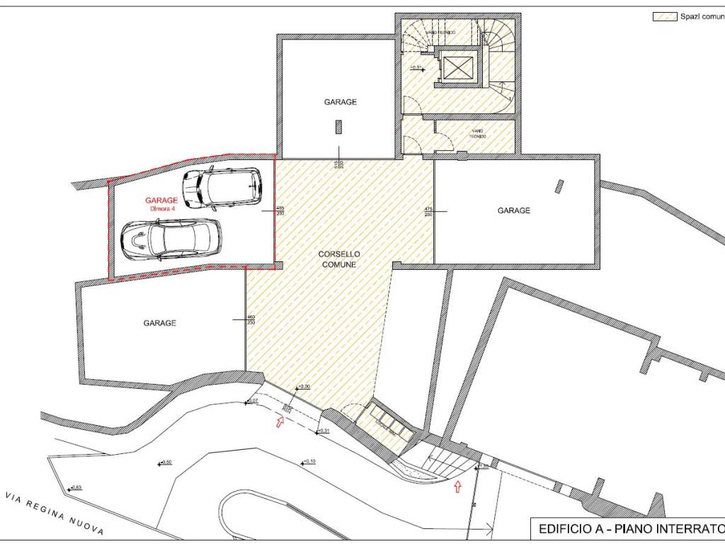
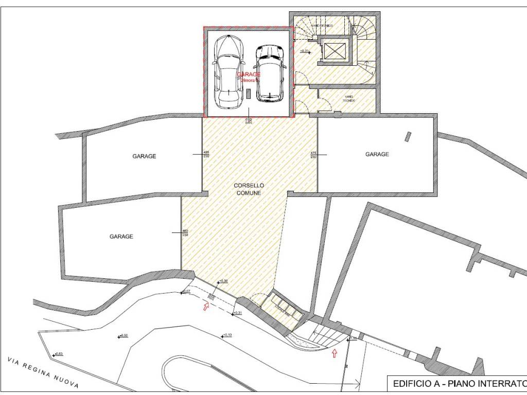
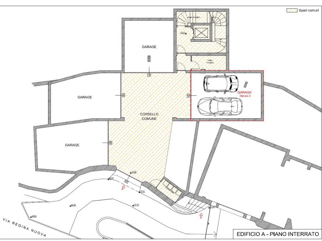
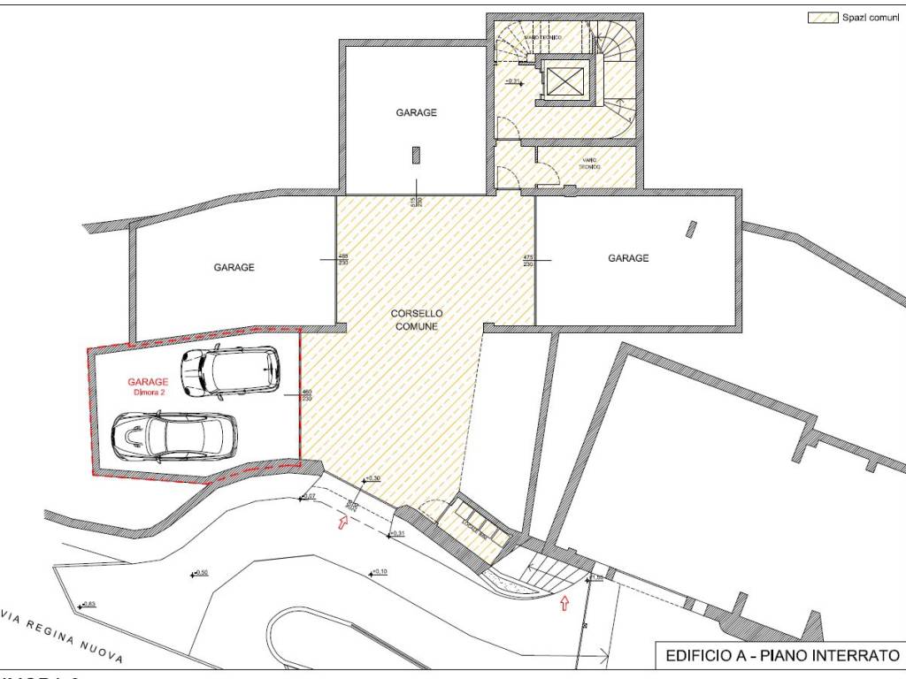
piano interrato:
n. 4 box doppi
n. 1 box singolo
piano terra:
- trilocale con giardino di mq. 122 e superficie commerciale di mq. 103,25 possibilità di BOX DOPPIO
piano primo:
- trilocale con giardino di mq. 148 e superficie commerciale di mq. 125,49 possibilità di BOX DOPPIO
- quadrilocale con doppio servizio con giardino di mq. 160 e superficie commerciale di mq. 138,23 possibilità di BOX DOPPIO
piano secondo e ultimo piano:
- quadrilocale con doppio servizio e super balcone di mq. 101,10 e superficie commerciale di mq. 138,23 possibilità di BOX DOPPIO

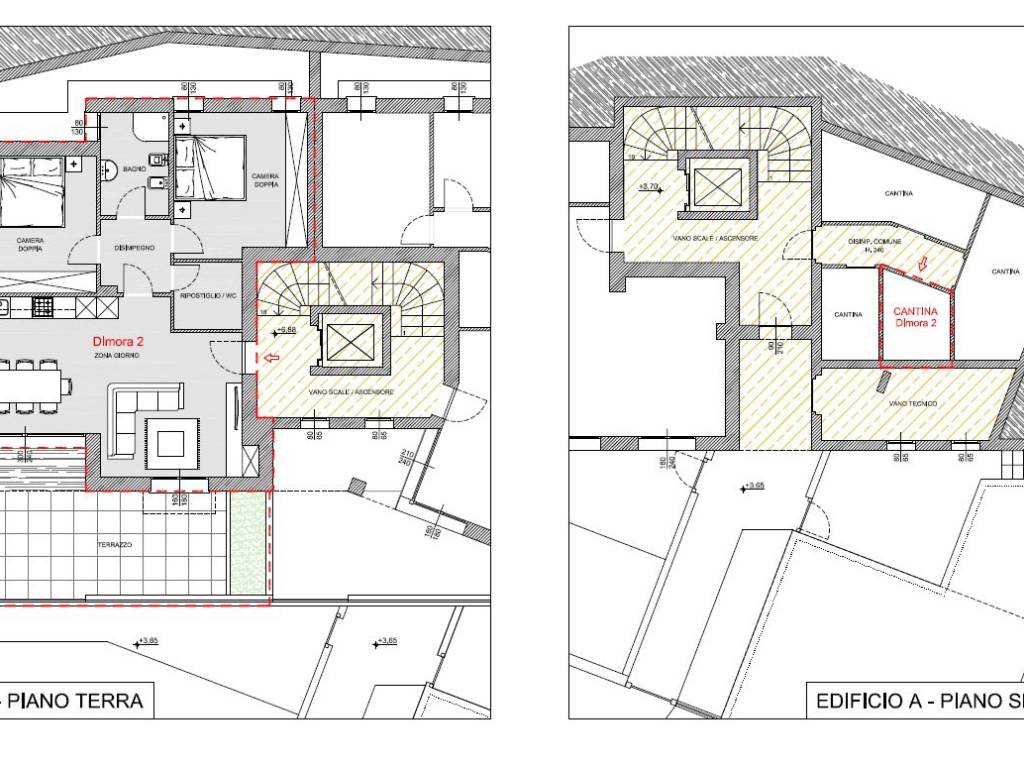
Ogni soluzione è provvista di box doppio, completano la proprietà un cantine in piano interrato
Finiture di alta qualità a scelta del cliente sulla base di un capitolato di ottimo livello. Classe A
https://360.dealtech.ch/pura_vida_carate_urio_dimora_4/
Caratteristiche
Tipologia
Appartamento in villa | Intera proprietà | Immobile di lusso
Contratto
Vendita
Piano
Interrato (-1), piano terra
Piani edificio
3
Ascensore
Superficie
107 m²
Locali
3
Camere da letto
2
Cucina
Cucina angolo cottura
Bagni
1
Balcone
No
Terrazzo
No
Box, posti auto
1 in box privato/box in garage
Riscaldamento
Autonomo, a pavimento, alimentato a pompa di calore
Altre caratteristiche
  • Fibra ottica
  • Idromassaggio
  • Infissi esterni in triplo vetro / PVC
  • Porta blindata
  • Cancello elettrico
  • Impianto tv centralizzato
  • VideoCitofono
Dettaglio superficie

Abitazione

Piano
Piano terra
Superficie
93,5 m²
Coefficiente
100%
Tipo superficie
Principale
Sup. commerciale
93,5 m²

Giardino

Piano
Piano terra
Superficie
112,0 m²
Coefficiente
10%
Tipo superficie
Principale
Sup. commerciale
11,2 m²

Cantina

Piano
Interrato (-1)
Superficie
5,4 m²
Coefficiente
50%
Tipo superficie
Principale
Sup. commerciale
2,7 m²
Informazioni sul prezzo
Prezzo
€ 531.000
Prezzo al m²
4.963 €/m²
New
Dettaglio dei costi
Spese condominio
Nessuna spesa condominiale
Efficienza energetica
  • Anno di costruzione

    2022
  • Stato

    Nuovo / In costruzione
  • Riscaldamento

    Autonomo, a pavimento, alimentato a pompa di calore
  • Certificazione energetica

    In attesa di certificazione
Scopri ogni angolo dell'immobile
+10
Mutuo
%
Durata del mutuo

Rata da € 1.577 al mese

€ 159.300 (30%)

€ 371.700 (70%)

Vuoi sapere che mutuo puoi richiedere?

Opzioni aggiuntive

Contatta l'inserzionista

Oppure