Villa bifamiliare, nuova, 160 m², Castiglion Fiorentino

€ 110.000
5+
160 m²
3+
No

Nota

Annuncio aggiornato il 19/09/2025
Descrizione

riferimento: VB/0063

Castiglion Fiorentino - Vendesi villetta bifamiliare al grezzo

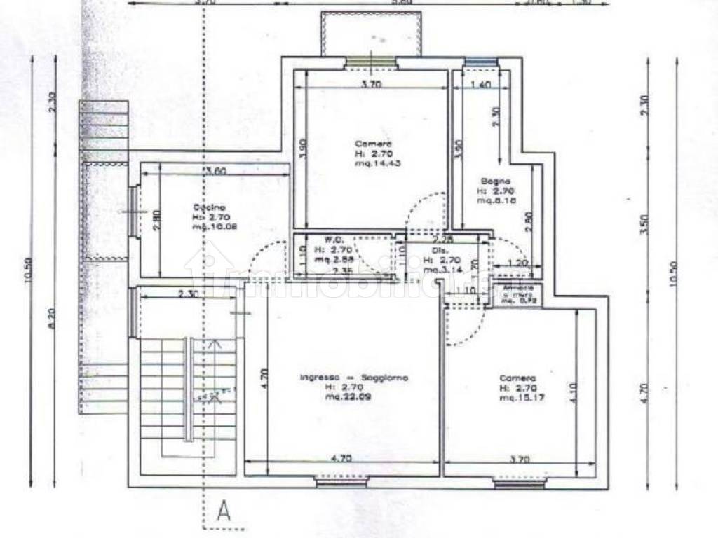
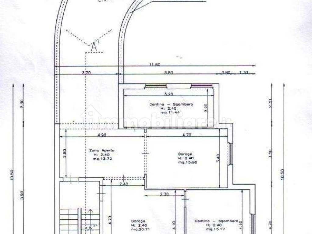
Vendesi villetta bifamiliare terratetto in fase di costruzione "al grezzo", costituita da due unità abitative indipendenti di mq. 80 circa ciascuna, oltre al garage ed alla cantina per ognuna. Gli appartamenti sono uguali e sono composti da: soggiorno, cucina abitabile, disimpegno, due camere e due bagni. Classe energetica prevista "C". Classe Energetica: C
Caratteristiche
Tipologia
Villa bifamiliare | Intera proprietà | Classe immobile media
Contratto
Vendita
Piano
Piano terra
Ascensore
No
Superficie
160 m²
Locali
5+
Camere da letto
4
Bagni
3+
Arredato
No
Balcone
No
Terrazzo
No
Riscaldamento
Autonomo
Dettaglio superficie

Abitazione

Piano
Piano terra
Superficie
160,0 m²
Coefficiente
100%
Tipo superficie
Principale
Sup. commerciale
160,0 m²
Informazioni sul prezzo
Prezzo
€ 110.000
Prezzo al m²
688 €/m²
New
Efficienza energetica

Consumo di energia

C

Scopri ogni angolo dell'immobile
+10
Mutuo
%
Durata del mutuo

Rata da € 327 al mese

€ 33.000 (30%)

€ 77.000 (70%)

Vuoi sapere che mutuo puoi richiedere?

Opzioni aggiuntive

Contatta l'inserzionista

Oppure