Квартира на аукционе via Francesco Cilea 90, Милан

от € 165 585,00
3
83 m²
6
Да
Балкон
Погреб

Пометка

Объявление обновлено 02.04.2026
Описание

This description has been translated automatically by Google Translate and may not be accurate

ID: A5156

ДЛЯ ПОЛУЧЕНИЯ ИНФОРМАЦИИ И ЗАПИСИ НА ПРИЕМ В ОФИСЕ ОБРАЩАЙТЕСЬ К НАМ ПО ТЕЛЕФОНУ **/******. 70.88 WWW. CONSULOVEST. RU

Предлагаем на продажу ОТЛИЧНУЮ ТРЕХКОМНАТНУЮ КВАРТИРУ НА АУКЦИОНЕ!
Код ссылки: A5156

Предлагаем на продажу ОТЛИЧНУЮ ТРЕХКОМНАТНУЮ КВАРТИРУ НА АУКЦИОНЕ, расположенную на шестом этаже многоэтажного дома, построенного до 1967 года.
Недвижимость расположена в хорошо обслуживаемом районе, недалеко от остановки MM SAN LEONARDO / BONOLA.
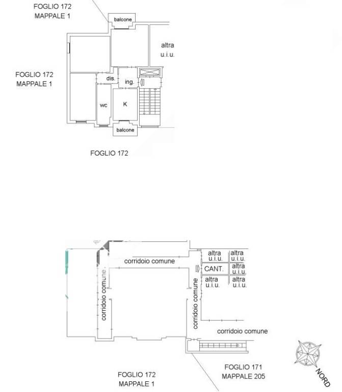
Квартира состоит из прихожей, гостиной, кухни, коридора, двух спален, ванной комнаты и балкона, общей площадью 83 м².
Также имеется подвал.

Аукцион ЭЛЕКТРОННЫЙ, и мы будем сопровождать вас на протяжении всей процедуры.

Поскольку это имущество выставлено на аукцион, ЦЕНА ОТНОСИТСЯ К МИНИМАЛЬНОЙ СТАВКЕ и может быть значительно увеличена!
Настоящая сделка!

Нет Агентства, без посредников, без сотрудничества.

Для участия в аукционе требуется депозит в размере 10%. Кроме того, в наших офисах есть множество объектов недвижимости с аналогичными характеристиками, представленными в этом объявлении, по конкурентоспособным ценам. Экономьте деньги, покупая на аукционе. Доверьтесь экспертам в этой сфере. Благодаря нашему двадцатилетнему опыту мы поможем вам совершить безопасную и выгодную покупку на аукционах. Купите на аукционе дешевле, чем арендная плата. http://****.**. НАШИМ СЕРВИСОМ МОЖНО ВОСПОЛЬЗОВАТЬСЯ В НАШИХ ОФИСАХ В КОРБЕТТЕ И МИЛАНЕ, А ТАКЖЕ ПО ТЕЛЕФОНУ.
Если вы хотите узнать больше, вы можете поговорить с Consulovest Milano.
Характеристики
Типология
Квартира | Вся недвижимость | Недорогой класс недвижимости
Договор
Продажа
Этаж
6
Этажность здания
10
Лифт
Да
Площадь
83 m²
Помещения
3
Спальни
2
Балкон
Да
Терраса
Нет
Отопление
Централизованное, радиатор, на метане
Кондиционер
Возможность установки оборудования
Кадастровые данные
Лист 1 - Кадастровая карта 1 - Подразделение недвижимости 1
Другие кадастровые данные
Кадастровый раздел 1 - Сшивка 1 - Подучасток 1 - Подразделение недвижимости 1
Другие характеристики
  • Внешние рамы из двойного стеклопакета/ дерева
  • Двойная экспозиция
  • Кухня
  • Железная дверь
  • Оптическое волокно
  • Централизованная ТВ система
  • Электрические ворота
Деталь поверхности

Жилой фонд

Этаж
6
Площадь
83,0 m²
Коэффициент
100%
Тип площади
Основная
Коммерческая площадь
83,0 m²
Энергоэффективность

Потребление энергии

≥ 3,51 kWh/m² год, здание почти нулевой энергииG

Для участия
Минимальное предложение
€ 165 585,00
Залог
€ 1
Депозит счета расходов
€ 1
Минимальное увеличение
€ 1
Детали лота
Количество объектов недвижимости
1
Категория
IMMOBILE RESIDENZIALE
Данные процедуры
Обновлено
02.04.2026
Номер процедуры
1
Процедура
1
Планировка
Cattura
Откройте для себя каждый уголок объекта недвижимости
+12
Доп. опции

Свяжитесь с рекламодателем