Трехкомнатная квартира via Bella Venezia 91, Castelfranco Veneto

€ 69 000
3
106 m²
1
T
Нет

Пометка

Объявление обновлено 30.03.2026
Описание

ID: 61129161

ATTUALMENTE ADIBITO AD USO MAGAZZINO.
Bella Venezia. A 2 km dal centro di Castelfranco Veneto.
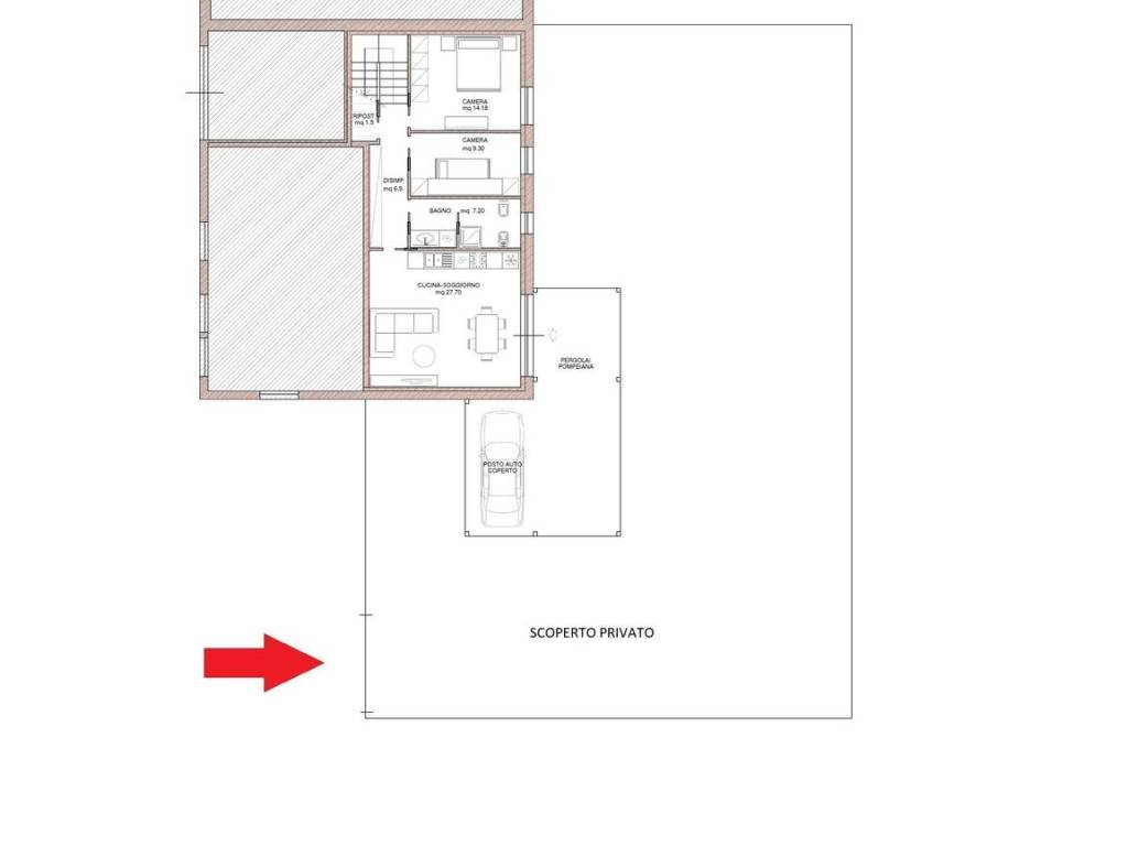
Porzione di magazzino (lato sud-est) di 77 mq con possibilità di creare un appartamento 2 camere con soppalco abitabile.
Conclude la proprietà uno scoperto privato di circa 340 mq.
L'immobile viene venduto allo stato di fatto.
Ulteriori informazioni in agenzia.
Если вы хотите узнать больше, вы можете поговорить с Andrea Zolin ..

Обычно отвечает в течение 2 дней

Характеристики
Типология
Квартира | Вся недвижимость | Средний класс недвижимости
Договор
Продажа
Этаж
Нулевой этаж
Этажность здания
1
Лифт
Нет
Площадь
106 m²
Помещения
3
Спальни
2
Ванные
1
Меблировано
Нет
Балкон
Нет
Терраса
Нет
Гараж, машиноместа
1 в частный гараж/парковка, 2 в общая парковка/гараж
Отопление
Автономное, радиатор, на метане
Кондиционер
Автономное
Информация о ценах
Цена
€ 69 000
Цена за м²
651 €/m²
Подробности о расходах
Плата за кондоминиум
Никаких кондоминиальных расходов
Энергоэффективность
  • Год постройки

    1980
  • Состояние

    Подлежит ремонту
  • Отопление

    Автономное, радиатор, на метане
  • Кондиционер

    Автономное
Планировка
PLANIMETRIA PROGETTO
Esterno
Откройте для себя каждый уголок объекта недвижимости
+13
Доп. опции

Свяжитесь с рекламодателем

Или