Четырехкомнатная квартира vicolo Zenocrate Cesari, Centro, Osimo

€ 53 000
4
105 m²
2
S, 2
Нет
Терраса
Погреб

Пометка

Объявление обновлено 02.02.2026
Описание

ID: OSIM52

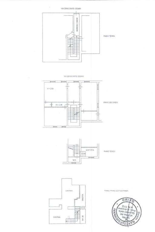
Casapro Immobiliare propone in vendita immobile da ristrutturate sito al secondo piano senza ascensore in piccolo condominio nel centro di Osimo, più precisamente in via Zenocrate Cesari, una traversa del corso principale. La soluzione attualmente è accatastata ad uso ufficio con possibilità di cambio destinazione d'uso a civile abitazione compresa compresa nell'acquisto.
La proprietà si sviluppa su più livelli :
- PRIMO PIANO SOTTOSTRADA
- Cantina di ampia metratura (circa cinquanta mq) adibita attualmente ad archivio
- Grotta
- PIANO SECONDO
- Soluzione principale internamente suddivisa in quattro ambienti e un bagno separati da un disimpegno, con accesso diretto a un lastrico solare (corte esterna pavimentata) di proprietà esclusiva.
- PIANO TERZO
- Bagno con soffitta collegati direttamente al piano secondo tramite scala.
Per qualsiasi informazione o appuntamento non esitate a contattarci al 3383691422 Antonio / 3924958102 Beniamino.
Если вы хотите узнать больше, вы можете поговорить с Beniamino Lasca.

Обычно отвечает в течение 1 дня

Характеристики
Типология
Квартира | Вся недвижимость | Средний класс недвижимости
Договор
Продажа
Этаж
Подвал, от 2 до 3
Этажность здания
2
Лифт
Нет
Площадь
105 m²
Помещения
4
Спальни
3
Кухня
Кухонная зона
Ванные
2
Меблировано
Нет
Балкон
Нет
Терраса
Да
Отопление
Автономное, воздушное, на метане
Другие характеристики
  • Внешние рамы из двойного стеклопакета/ металла
  • Внешняя планировка
  • Мансарда
  • Оптическое волокно
  • Собственаня ТВ система
Деталь поверхности

Жилой фонд

Этаж
2
Площадь
80,0 m²
Коэффициент
100%
Тип площади
Основная
Коммерческая площадь
80,0 m²

Погреб

Этаж
Подвал
Площадь
50,0 m²
Коэффициент
25%
Тип площади
Основная
Коммерческая площадь
12,5 m²

Снаружи

Этаж
2
Площадь
20,0 m²
Коэффициент
10%
Тип площади
Основная
Коммерческая площадь
2,0 m²

Мансарда

Этаж
3
Площадь
20,0 m²
Коэффициент
50%
Тип площади
Основная
Коммерческая площадь
10,0 m²
Информация о ценах
Цена
€ 53 000
Цена за м²
505 €/m²
Подробности о расходах
Плата за кондоминиум
€ 20/месяц
Энергоэффективность
  • Год постройки

    1800
  • Состояние

    Подлежит ремонту
  • Отопление

    Автономное, воздушное, на метане
  • Энергетическая сертификация

    В ожидании сертификации
Планировка
PLAN
Виртуальный тур
Откройте для себя каждый уголок объекта недвижимости
+8
Доп. опции

Свяжитесь с рекламодателем

Или