23 risultati
appartamenti in vendita Carimate
- 1/26vetrina



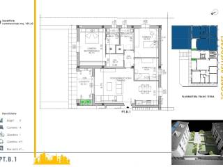
da € 432.535Appartamenti di nuova costruzione a CarimateCARIMATE centro, nelle vicinanze del castello e a due passi dal golf, in zona comoda con tutti i servizi (scuole, supermercati, stazione Milano-Chiasso, farmacia...). A 5 minuti dalla superstrada Milano-Meda e dall'autostrada A9 Como-Chiasso, proponiamo nuova residenza "Corte Belvedere". Il progetto prevede la realizzazione di due signorili unità abitative di 8 appartamenti ciascuna, con cantina. Gli appartamenti situati al piano terra hanno giardino di proprietà con loggia coperta, mentre gli appartamenti ai piani superiori hanno terrazzo coperto. Attualmente sono stati venduti 5 appartament
Appartamento€ 432.5354139 m²22
Appartamento€ 449.6814157 m²2T
Appartamento€ 454.8664159 m²2T
Appartamento€ 476.0775161 m²21
Appartamento€ 478.7314162 m²216 tipologie
1/13premium
1/10premium
1/10premium
1/21nuovopremium
1/32premium
1/19premium
1/39premium
1/34premium
1/19premium
1/7premium
1/7premium
1/7premium
1/18premium
1/22premium
1/17premium
1/10nuovopremium
1/2nuovopremium
1/16premium
1/31premium
1/9premium
1/17premium
1/20premium






























