Villa a schiera via MALPAGA, Centro, Ghedi

€ 300.000
5+
100 m²
2
No

Nota

Annuncio aggiornato il 28/08/2025
Descrizione

riferimento: 60690281

COSA SAPERE SULLA CASA:
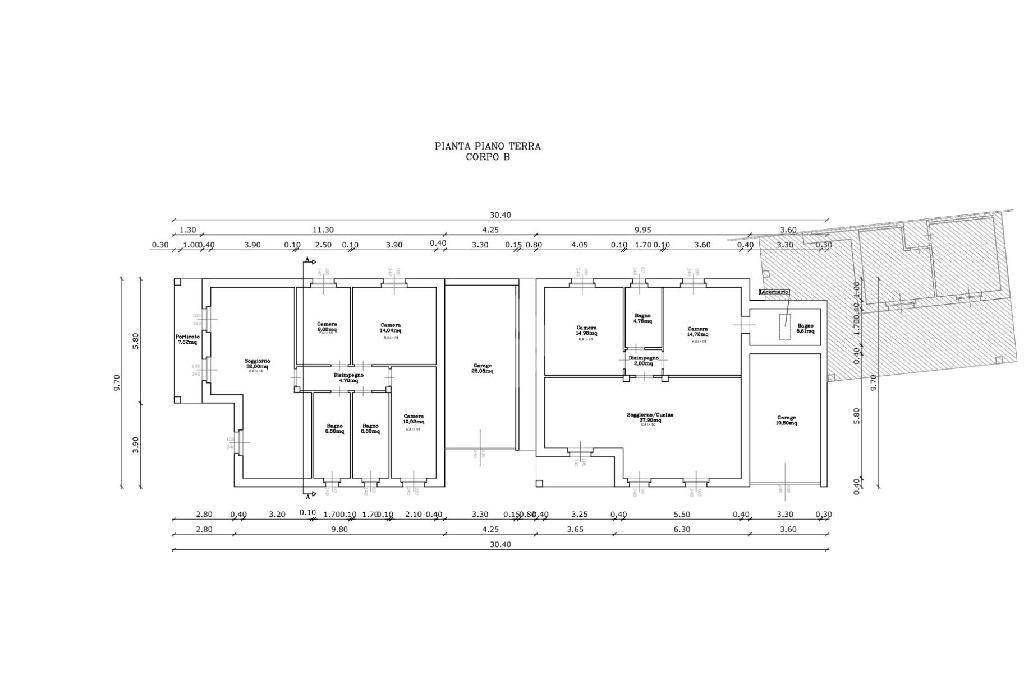
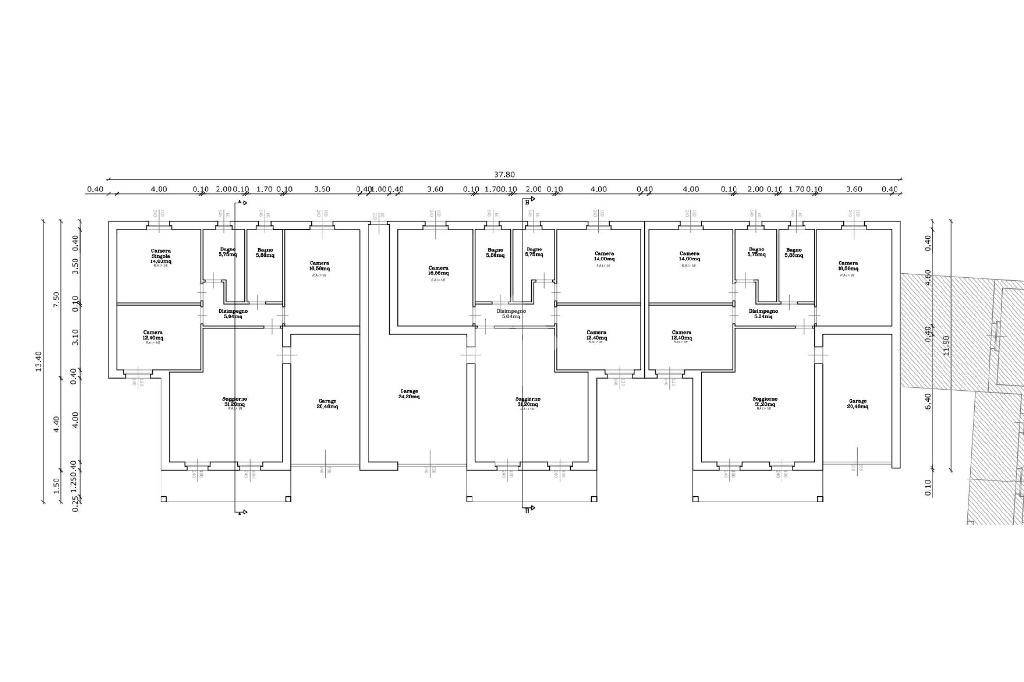
A Ghedi, nella località Ponterosso, proponiamo in vendita 7 ville monopiano in fase di realizzazione.
Ogni villa è composta da tre camere, doppi servizi, box e giardino privato.
PARTICOLARITÀ E DESCRIZIONE:
Queste ville monopiano sono pensate per offrire ampi spazi abitativi su un unico livello, garantendo il massimo comfort.
Ogni unità è composta da tre camere da letto, doppi servizi, un box auto e un giardino privato.
Il capitolato è ancora in fase di definizione, con la possibilità di personalizzare le finiture in base alle preferenze dell'acquirente per creare una casa su misura.
Classe energetica prevista: A, un indice che garantisce altissimi livelli di efficienza energetica, riducendo i consumi e migliorando il comfort abitativo.
Queste ville monopiano rappresentano un'opportunità ideale per chi cerca una soluzione moderna e indipendente con ampi spazi esterni e la possibilità di personalizzare gli interni.
Un'ottima scelta per chi desidera vivere in un ambiente tranquillo e risparmiare in termini di energia.
Se vuoi saperne di più, puoi parlare con Livio Girelli ..

Di solito risponde entro 12 ore

Caratteristiche
Tipologia
Villa a schiera | Intera proprietà | Classe immobile signorile
Contratto
Vendita
Piano
Piano terra
Piani edificio
1
Ascensore
No
Superficie
100 m²
Locali
5+
Camere da letto
3
Cucina
Cucina angolo cottura
Bagni
2
Arredato
No
Balcone
No
Terrazzo
No
Box, posti auto
1 in box privato/box in garage
Riscaldamento
Autonomo, a pavimento
Climatizzazione
Autonomo
Informazioni sul prezzo
Prezzo
€ 300.000
Prezzo al m²
3.000 €/m²
New
Dettaglio dei costi
Spese condominio
Nessuna spesa condominiale
Efficienza energetica

Consumo di energia

A1

Planimetria
TECNOCASA
TECNOCASA
TECNOCASA
Scopri ogni angolo dell'immobile
+19
Opzioni aggiuntive

Contatta l'inserzionista

Oppure