Terreno edificabile in Vendita

€ 140.000
3.100 m²

Nota

Annuncio aggiornato il 18/02/2025
Descrizione

riferimento: 32931056-8

Terreno Edificabile in vendita a Biella, Vandorno

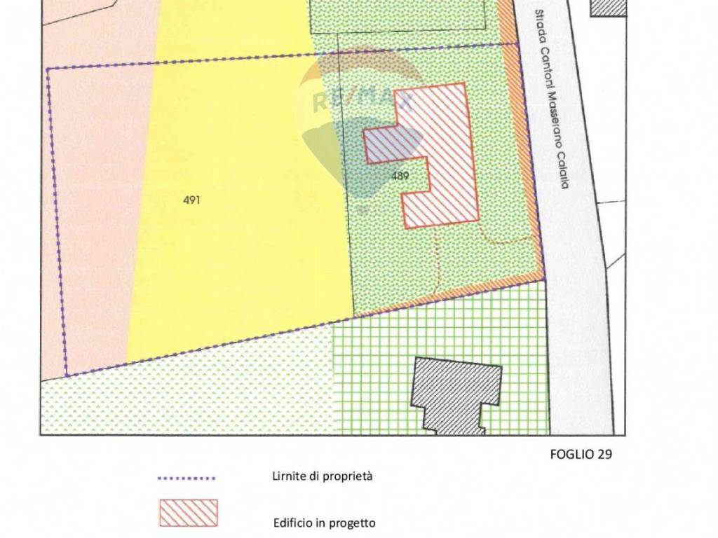
Biella - località Vandorno - in zona residenziale, vendesi terreno di mq 3100 di cui m. 1100 edificabili , mq. 2000 agricolo/bosco non pianeggiante.
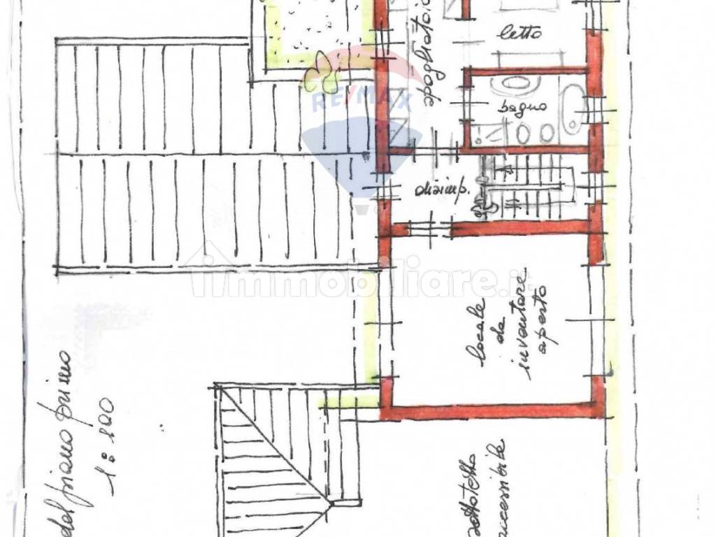
Nella porzione edificabile del terreno la possibilità di costruire è di di mq 496 lordi; i progetti che sono presenti tra le immagini sono idee di massima, l'acquirente potrà personalizzare i progetti in base alle proprie esigenze.
Considerata la metratura a disposizione si potranno soddisfare coloro che sono alla ricerca di una villa unifamiliare indipendente oppure bifamiliare con due unità semi-indipendenti.
Per tutte le informazioni e per visionare i progetti esistenti la documentazione è a disposizione presso i nostri uffici, su appuntament
Caratteristiche
Contratto
Vendita
Tipologia
Terreno edificabile
Superficie
3.100 m²
Disponibilità
Libero
Qualificazione urbanistica
Unità multiple
Dislivello terreno
Medio
Altezza massima edificabile
6 m
Area edificabile
1.000 m²
Accesso in strada/servitù di passaggio
In strada asfaltata
Informazioni sul prezzo
Prezzo
€ 140.000
Prezzo al m²
45 €/m²
New
Planimetria
modello_planimetrie 1
Scopri ogni angolo dell'immobile
+11
Opzioni aggiuntive

Contatta l'inserzionista

Oppure