Mansarda via San Biagio 4417, Poggio, Castel San Pietro Terme

€ 155.000
3
89 m²
1
Arredato

Nota

Annuncio aggiornato il 22/09/2025
Descrizione

riferimento: Loft

Loft Mansarda in palazzo storico di pregio con parco

Inserita in un palazzo storico del 1600, con parco meraviglioso di 2000 mq, è in vendita una mansarda posta al secondo e ultimo piano con ascensore.
L'abitazione, caratterizzata da alti soffitti con travi in legno , è molto luminosa, dotata sia di finestre velux che delle antiche e originali finestre ovali che danno ulteriore luce e particolarità all'immobile. La vista è aperta sulle colline e sulla città di Bologna, si scorge anche la Basilica di San Luca.
L'appartamento , per nulla banale nella sua composizione, ha un ingresso su cucina abitabile , dalla quale pochi gradini portano alla grande zona open space del salone, che è stato diviso in arredo per creare la camera matrimoniale, la zona living con 2 ampi divani, e dove troviamo un ampio tavolo da pranzo adatto ad ospitare amici per momenti in compagnia.
Dalla cucina una scala in arredo porta ad un soppalco ampio dove è stata creata una zona studio.
Il bagno, grande e dotato di grande finestra, ha una grande doccia e la zona lavanderia con lavatrice.
Dalle finestre la vista sulle colline di Castel San Pietro è aperta e la vista spazia fin verso Bologna.
Dotata di tutti i confort, troviamo porta blindata, riscaldamento autonomo con caldaia, impianto di condizionamento che fornisce sia aria fredda che calda e deumidificatore.
L'intero palazzo, che era gia' stato ristrutturato totalmente nel 2000, è stato oggetto di totale nuova ristrutturazione nel 2021, dove è stato reso sicuro di due classi sismiche contro i terremoti, è stato quindi rimosso tutto l'intonaco esterno, messo in sicurezza con tiranti appositi. I Lavori hanno riguardato il consolidamento di tutte le strutture verticali e i vari tamponamenti, con quindi il totale e completo rifacimento dell’intonaco esterno e del tetto.
Sono inoltre state manutentate e tinteggiate tutte le parti comuni. E' stato rifatto l'impianto dei citofoni e l'illuminazione del parco.
Pregio ulteriore è la presenza del parco condominiale, un area verde ottimamente tenuta completa di sedie e barbeque, dove poter passare il tempo libero in serenità avvolti dal canto degli uccellini di varie specie che abitano la zona.
Completa la proprietà un posto auto.
Attualmente l'immobile è affittato, ha un ottima rendita, sarà comunque libero al momento del rogito.
Viene venduto, volendo, completo di arredo.
Caratteristiche
Tipologia
Mansarda | Intera proprietà | Classe immobile signorile
Contratto
Vendita
Piano
Piano terra, 2
Piani edificio
2
Ascensore
Superficie
89 m²
Locali
3
Camere da letto
1
Cucina
Cucina abitabile
Bagni
1
Arredato
Balcone
No
Terrazzo
No
Box, posti auto
1 in parcheggio/garage comune
Riscaldamento
Autonomo, a radiatori, alimentato a gas
Climatizzazione
Autonomo, freddo/caldo
Altre caratteristiche
  • Esposizione doppia
  • Infissi esterni in doppio vetro / legno
  • Mansarda
  • Porta blindata
  • Cancello elettrico
  • Impianto tv con parabola satellitare
  • VideoCitofono
Dettaglio superficie

Abitazione

Piano
2
Superficie
85,0 m²
Coefficiente
100%
Tipo superficie
Principale
Sup. commerciale
85,0 m²

Posto auto

Piano
Piano terra
Superficie
14,0 m²
Coefficiente
30%
Tipo superficie
Principale
Sup. commerciale
4,2 m²
Informazioni sul prezzo
Prezzo
€ 155.000
Prezzo al m²
1.742 €/m²
New
Dettaglio dei costi
Spese condominio
€ 150/mese
Efficienza energetica

Consumo di energia

64.23 kWh/m² annoC

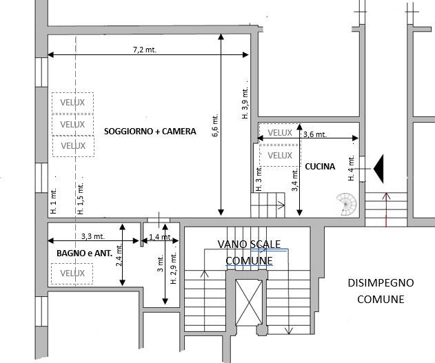
Planimetria
Planimetria arredata
Planimetria con misure
Soppaco arredato
soppalco con misure
Scopri ogni angolo dell'immobile
+27
Mutuo
%
Durata del mutuo

Rata da € 460 al mese

€ 46.500 (30%)

€ 108.500 (70%)

Vuoi sapere che mutuo puoi richiedere?

Opzioni aggiuntive

Contatta l'inserzionista

Oppure