Terreno edificabile in Vendita

€ 360.000
1.400 m²

Nota

Annuncio aggiornato il 05/11/2025
Descrizione

riferimento: 4469

Terreno Edificabile in Vendita in Via Tratturello Pineto a Castellaneta (TA)

Cerved Property Services Italy S.r.l. propone in vendita un immobile in corso di costruzione a futura destinazione commerciale sito nella località "Perronello" del comune di Castellaneta, nei pressi della SS 106 Jonica.
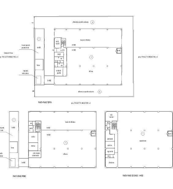
Nell'immobile, attualmente allo stato grezzo, è stata completata la struttura portante in C. A., la copertura in cls con un’apertura centrale, i muri perimetrali ed interni. Da progetto l'immobile si realizzerà come segue:
- Piano Seminterrato: magazzini/deposito di circa 195 mq
- Piano Terra: sala ristorante, cucina e locali per dipendenti, un patio centrale e locale oltre servizi di circa 670 mq
- Piano Primo: altra sala ristorante, locali oltre servizi di circa 560 mq
Per maggiori informazioni e per una visita in loco, vedasi riferimento a lato

 
Caratteristiche
Contratto
Vendita
Tipologia
Terreno edificabile
Superficie
1.400 m²
Informazioni sul prezzo
Prezzo
€ 360.000
Prezzo al m²
257 €/m²
New
Planimetria
Scopri ogni angolo dell'immobile
+15
Opzioni aggiuntive

Contatta l'inserzionista