Rustico via Della Mina 6, Sorbolo Mezzani

€ 340.000
4
146 m²
3
No

Nota

Annuncio aggiornato il 17/11/2025
Descrizione

riferimento: 60783497

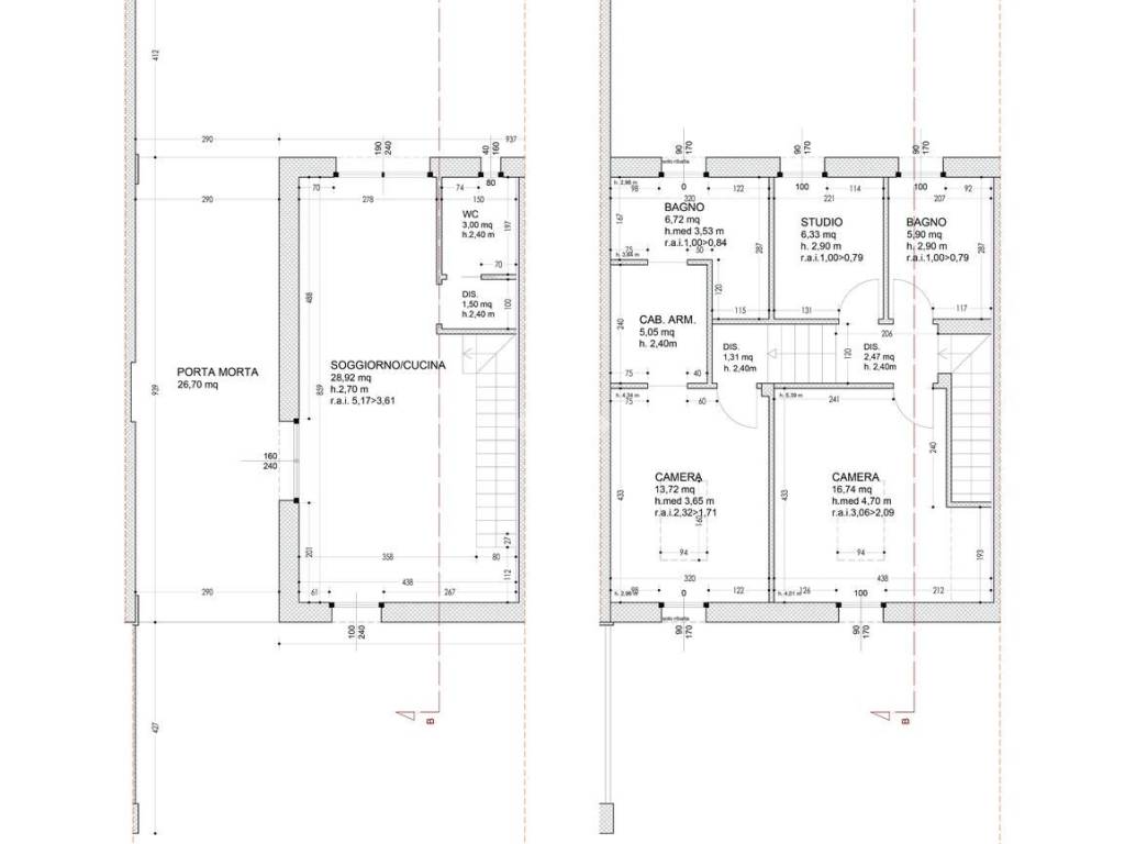
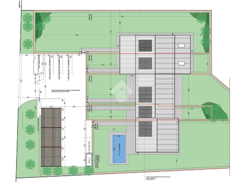
RICOSTRUZIONE RUSTICO FONTANELLE IN VIA MINA:

Nella parte centrale del residence Fontanelle proponiamo una soluzione su due livelli, ampio portico ed area esterna.
L'immobile presenta al piano terra un soggiorno e cucina open space, bagno, con accesso mediante una scala interna al piano superiore dove troviamo una camere patronale con cabina armadio e bagno privato, ampia camera matrimoniale, studio e un ulteriore servizio finestrato.
Completa il tutto pannelli fotovoltaici, due posti auto di cui uno coperto, possibilità di installare colonnina elettrica e di realizzare un ulteriore piano sottotetto.
Ricostruendo l'immobile si ha la possibilità di usufruire delle agevolazioni del sismabonus fino a 96000,00, otre agli altri bonus esistenti
Se vuoi saperne di più, puoi parlare con Gianni Esposito ..

Di solito risponde entro 12 ore

Caratteristiche
Tipologia
Rustico | Intera proprietà | Classe immobile media
Contratto
Vendita
Piano
2 piano
Piani edificio
2
Ascensore
No
Superficie
146 m²
Locali
4
Camere da letto
3
Cucina
Cucina abitabile
Bagni
3
Arredato
No
Box, posti auto
2 in parcheggio/garage comune
Riscaldamento
Autonomo, a pavimento, alimentato a solare
Climatizzazione
Autonomo
Informazioni sul prezzo
Prezzo
€ 340.000
Prezzo al m²
2.329 €/m²
New
Dettaglio dei costi
Spese condominio
Nessuna spesa condominiale
Efficienza energetica

Consumo di energia

1 kWh/m² annoA4

Planimetria
plan
Nuova planimetria
Scopri ogni angolo dell'immobile
+10
Opzioni aggiuntive

Contatta l'inserzionista

Oppure