Capannone in Vendita

€ 680.000
5
1.200 m²
3+

Nota

Annuncio aggiornato il 13/06/2025
Descrizione

riferimento: EK-106776985

Capannone vicino al casello autostradale A4 di Rovato.

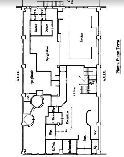
Proponiamo in vendita capannone che si sviluppa su due livelli, in buono stato di manutenzione. L'immobile precedentemente era adibito a palestra, centro fitness e spa con piscina interna.
Posizione strategica all'uscita del casello autostradale A4 di Rovato; nonchè nelle immediate vicinanze di rinomate attività commerciali.
Comodi parcheggi antistanti.
Per ulteriori informazioni e sopralluogo contattare: Alberto Lancini cell: 335 73 22 323 Viale Mazzini n. 5/1 25032 Chiari - BS Tel: +39 030 700.28.00 e-mail: bs.chiari@edilnordagency.it web: www.edilnordagency.it https://www.facebook.com/Edilnord-Agency-676667479066560/ Si precisa che la documentazione e le informazioni pubblicate sono da ritenersi indicative e non costituiscono elemento contrattuale.
Se vuoi saperne di più, puoi parlare con Alberto Lancini.
Caratteristiche
Contratto
Vendita
Tipologia
Capannone
Superficie
1.200 m²
Locali
5 locali, 3+ bagni - uno o più adatto a persone disabili
Piano
2 piani: Piano terra, 1°, con accesso disabili
Piani edificio
2
Disponibilità
Libero
Altre caratteristiche
  • Docce
  • Impianto di allarme
  • Passo carrabile
  • Reception
  • Recintato
  • Spogliatoio
Dettaglio superficie

Capannone

Piano
Piano terra
Superficie
600,0 m²
Coefficiente
100%
Tipo superficie
Principale
Sup. commerciale
600,0 m²

Capannone

Piano
1
Superficie
600,0 m²
Coefficiente
100%
Tipo superficie
Principale
Sup. commerciale
600,0 m²
Informazioni sul prezzo
Prezzo
€ 680.000
Prezzo al m²
567 €/m²
New
Efficienza energetica

Consumo di energia

≥ 175 kWh/m² annoC

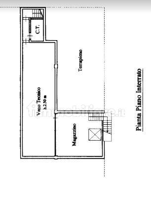
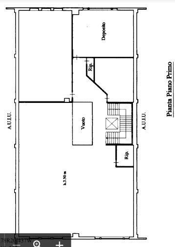
Planimetria
Acquisisci schermata Web_20-10-2023_145020_mail.go
Acquisisci schermata Web_20-10-2023_145129_mail.go
Acquisisci schermata Web_20-10-2023_145648_mail.go
Scopri ogni angolo dell'immobile
+6
Opzioni aggiuntive

Contatta l'inserzionista

Oppure