Villa bifamiliare via G. Marconi 34, Tezze, Tezze sul Brenta

€ 105.000
3
135 m²
2
No
Parzialmente Arredato

Nota

Annuncio aggiornato il 19/01/2026
Descrizione

riferimento: 60819586

NOSTRA ESCLUSIVA
UBICAZIONE E CONTESTO
In posizione centrale nella frazione di Tezze sul Brenta proponiamo una casa singola completamente indipendente.
DESCRIZIONE E PARTICOLARITA'
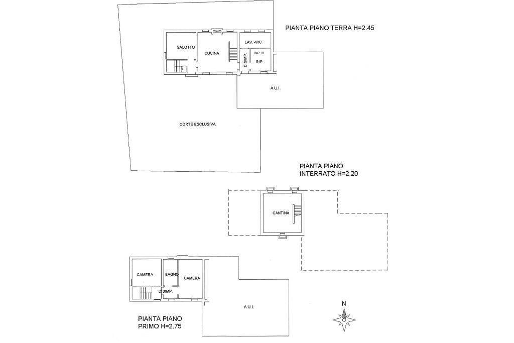
Trattasi di casa edificata nel 1970 su un lotto di complessivi 400 mq, l'immoblie si sviluppa su due livelli, al piano terra troviamo una zona giorno composta da cucina con soggiorno annesso, completa il piano terra un bagno/lavanderia di circa 8 mq E due stanze adibite una a ripostiglio e una camera matrimoniali. Il piano primo è composto da due camere matrimoniali e un bagno. L'immobile è inoltre servito da un garage singolo.
COME CONTATTARCI
Chiamaci al numero 0424 898456 o 3491441990 contattaci via Whatsapp al numero 3271723116. Seguiteci su facebook, cliccando 'mi piace' alla pagina Tecnocasa Tezze sul Brenta o su instagram seguendo @tecnocasatezzesb. Scaricate gratuitamente l'App. Tecnocasa sul vostro smartphone e sarete sempre aggiornati sulle nostre proposte di vendita.
Se vuoi saperne di più, puoi parlare con Matteo Bonato ..

Di solito risponde entro 1 giorno

Caratteristiche
Tipologia
Villa bifamiliare | Intera proprietà | Classe immobile media
Contratto
Vendita
Piano
2 piano
Piani edificio
2
Ascensore
No
Superficie
135 m²
Locali
3
Camere da letto
2
Cucina
Cucina cucinotto
Bagni
2
Arredato
Parzialmente Arredato
Balcone
No
Terrazzo
No
Box, posti auto
1 in box privato/box in garage, 1 in parcheggio/garage comune
Riscaldamento
Autonomo, a radiatori, alimentato a metano
Climatizzazione
Autonomo
Informazioni sul prezzo
Prezzo
€ 105.000
Prezzo al m²
778 €/m²
Dettaglio dei costi
Spese condominio
Nessuna spesa condominiale
Efficienza energetica

Consumo di energia

200 kWh/m² annoG

Planimetria
PLANIMETRIA GARAGE
PLANIMETRIA CASA
Nuova planimetria
PARTE ABITATIVA
Scopri ogni angolo dell'immobile
+23
Opzioni aggiuntive

Contatta l'inserzionista

Oppure