Villa bifamiliare via della Resistenza, Centro, Paese

€ 230.000
5
200 m²
2
No
Balcone
Terrazzo

Nota

Annuncio aggiornato il 18/10/2025
Descrizione

riferimento: C1561

ABBINATA A PAESE - NUOVA COSTRUZIONE

PAESE
Abbinata di prossima realizzazione sviluppata su due livelli con scoperto privato e caratterizzata da generose metrature.
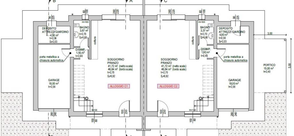
Ingresso su zona giorno open space di oltre 40 mq, bagno, ripostiglio-lavanderia, ampio portico di 15 mq e garage di 17 mq al piano terra; quattro camere di cui due matrimoniali, bagno ripostiglio e terrazzo al piano primo.
Consegna al grezzo avanzato.
Ultima soluzione rimasta!
Euro 230.000
APE "A4"
Rif. C1561
Per fissare un appuntamento in ufficio chiamare al numero 0422.454163.

L'indirizzo indicato potrebbe non corrispondere alla reale ubicazione dell'immobile, ma, trovarsi nelle immediate vicinanze e godere sostanzialmente degli stessi servizi.

L'Agenzia World Immobiliare S. r. l. , operante nel settore delle intermediazioni immobiliari con serietà e professionalità, è presente a Paese e Spresiano.
Con cortesia e disponibilità siamo a disposizione per qualsiasi richiesta e chiarimento in merito alle nostre proposte, ai nostri servizi, ed alle nostre consulenze, per essere in grado di soddisfare le Vostre esigenze e trovare la soluzione corrispondente alle Vostre necessità.
Le nostre Agenzie offrono i seguenti servizi:
Intermediazione per compravendite ed affittanze immobiliari;
Gestione di operazioni di sviluppo immobiliare;
Gestione di portafogli immobiliari a rendita;
Perizie di stima e valutazioni;
Successioni ereditarie su cespiti immobiliari e consulenza catastale;
Cessione, acquisizione e fitti d'azienda;
Certificazioni energetiche;
Consulenza finanziaria, per la ricerca e l'ottimizzazione di finanziamenti immobiliari e di credito al consumo.
Caratteristiche
Tipologia
Villa bifamiliare | Intera proprietà | Classe immobile signorile
Contratto
Vendita
Piano
Piano terra
Piani edificio
2
Ascensore
No
Superficie
200 m²
Locali
5
Camere da letto
4
Cucina
Cucina angolo cottura
Bagni
2
Arredato
No
Balcone
Terrazzo
Box, posti auto
1 in box privato/box in garage
Riscaldamento
Autonomo, a pavimento, alimentato a fotovoltaico
Climatizzazione
Predisposizione impianto
Altre caratteristiche
  • Esposizione esterna
  • Fibra ottica
  • Cancello elettrico
  • Impianto tv singolo
Dettaglio superficie

Abitazione

Piano
Piano terra
Superficie
200,0 m²
Coefficiente
100%
Tipo superficie
Principale
Sup. commerciale
200,0 m²
Informazioni sul prezzo
Prezzo
€ 230.000
Prezzo al m²
1.150 €/m²
New
Dettaglio dei costi
Spese condominio
Nessuna spesa condominiale
Efficienza energetica

Consumo di energia

≥ 3,51 kWh/m² annoA4

Planimetria
3
1
4
2
Scopri ogni angolo dell'immobile
+19
Mutuo
%
Durata del mutuo

Rata da € 683 al mese

€ 69.000 (30%)

€ 161.000 (70%)

Vuoi sapere che mutuo puoi richiedere?

Opzioni aggiuntive

Contatta l'inserzionista

Oppure