Ufficio - Studio in Affitto

€ 1.300/mese
3
130 m²
1
2

Nota

Zenso

Prestiti online e veloci

Confronta le offerte in 1 minuto

Annuncio aggiornato il 11/12/2024
Descrizione

riferimento: EK-109437045

Splendido Uso ufficio in posizione di assoluto pregio

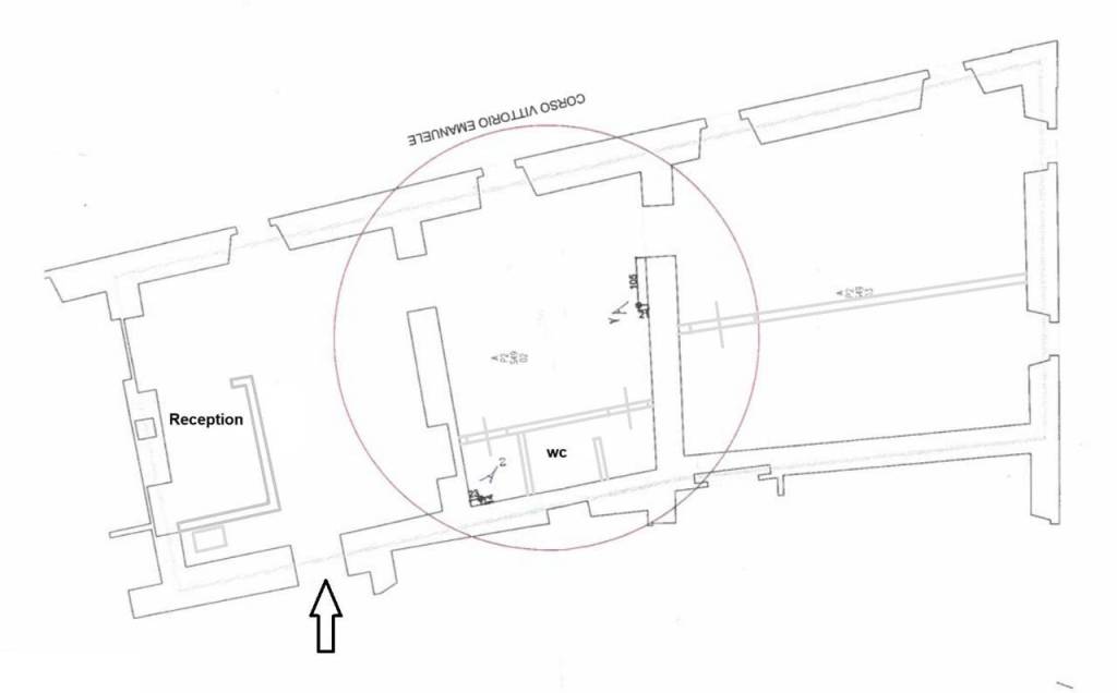
Corso Vittorio Emanuele n. 102 - Nel cuore del centro storico proponiamo uno stupendo appartamento in affitto uso studio posto al secondo piano di un palazzo storico appena ristrutturato. L'ampia metratura, la stupenda luce e le finiture di pregio rendono questa proposta davvero imperdibile per tutte le attività che vogliono innalzare la qualità del proprio ambiente lavorativo e vivere in un contesto signorile con tutti i servizi a portata di mano. Composto da ingresso - reception, 3 ampi vani più servizi e ripostiglio. Al secondo piano con ascensore - mq 130.
Se vuoi saperne di più, puoi parlare con carla catania.
Caratteristiche
Contratto
Affitto
Tipologia
Ufficio - Studio | Immobile di lusso
Superficie
130 m²
Locali
3 locali, 1 bagno - uno o più adatto a persone disabili
Disposizione Interni
Divisi da pareti
Piano
2°, con accesso disabili
Piani edificio
3
Altre caratteristiche
  • Esposizione esterna
  • Impianto di allarme
  • Infissi esterni in triplo vetro / PVC
  • Porta blindata
Dettaglio superficie

Ufficio o Studio

Piano
2
Superficie
130,0 m²
Coefficiente
100%
Tipo superficie
Principale
Sup. commerciale
130,0 m²
Informazioni sul prezzo
Prezzo
€ 1.300/mese
Prezzo al m²
10 €/m²
New
Dettaglio dei costi
Cauzione
Non indicata
Efficienza energetica

Consumo di energia

≥ 175 kWh/m² annoB

Planimetria
WhatsApp Image 2024-12-06 at 18.37.37
Scopri ogni angolo dell'immobile
+20
Opzioni aggiuntive

Contatta l'inserzionista

Oppure