Trilocale via Isonzo 15, Centro, Romano di Lombardia

€ 140.000
3
85 m²
1
2
Terrazzo
Parzialmente Arredato
Cantina

Nota

Annuncio aggiornato il 17/09/2025
Descrizione

riferimento: 60863733

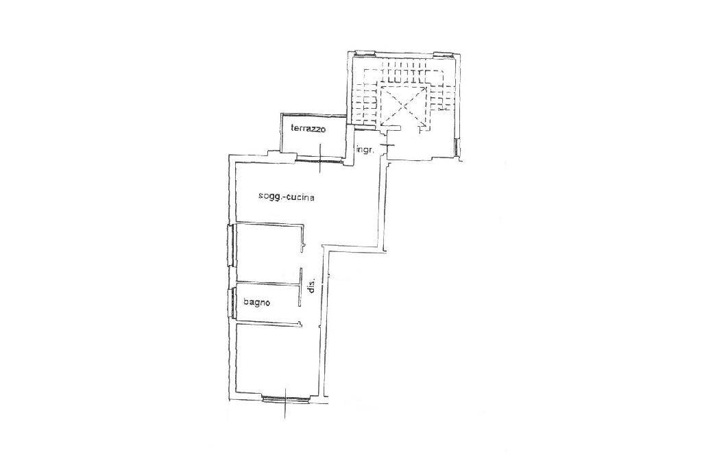
In un recente contesto, proponiamo in vendita un appartamento trilocale all'ultimo piano.
L'immobile viene venduto affittato con un contratto di 4+4.
L'appartamento si compone di un ingresso, soggiorno servito da un comodo terrazzino vivibile, e cucina a vista.
Il disimpegno collega la zona giorno con la zona notte composta da una camera matrimoniale, una camera singola e un comodo bagno con doccia.
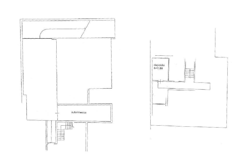
Al piano interrato completano la proprietà una cantina e un box doppio.
L'appartamento è inserito in un piccolo contesto di sole 6 unità abitative e si trova in una posizione strategica vicina ai servizi che Romano offre.
Inoltre è dotato di tutti i comfort necessari, aria condizionata, zanzariere, tende da sole, videocitofono.
Se vuoi saperne di più, puoi parlare con Maurizio Vecchiarelli ..

Di solito risponde entro 1 giorno

Caratteristiche
Tipologia
Appartamento | Nuda proprietà | Classe immobile media
Contratto
Vendita
Piano
2 piano
Piani edificio
3
Ascensore
Superficie
85 m²
Locali
3
Camere da letto
2
Cucina
Cucina angolo cottura
Bagni
1
Arredato
Parzialmente Arredato
Balcone
No
Terrazzo
Box, posti auto
1 in box privato/box in garage
Riscaldamento
Autonomo, a pavimento, alimentato a metano
Climatizzazione
Autonomo
Altre caratteristiche
  • VideoCitofono
Informazioni sul prezzo
Prezzo
€ 140.000
Prezzo al m²
1.647 €/m²
New
Dettaglio dei costi
Spese condominio
€ 83/mese
Efficienza energetica

Consumo di energia

146.5 kWh/m² annoD

Planimetria
box e cantina
plan
Scopri ogni angolo dell'immobile
+20
Opzioni aggiuntive

Contatta l'inserzionista

Oppure