Quadrilocale via Giuseppe Garibaldi 145, Centro, Pollena Trocchia

€ 189.000
4
161 m²
2
3
No
Balcone
Terrazzo

Nota

Annuncio aggiornato il 03/12/2025
Descrizione

riferimento: 60871220

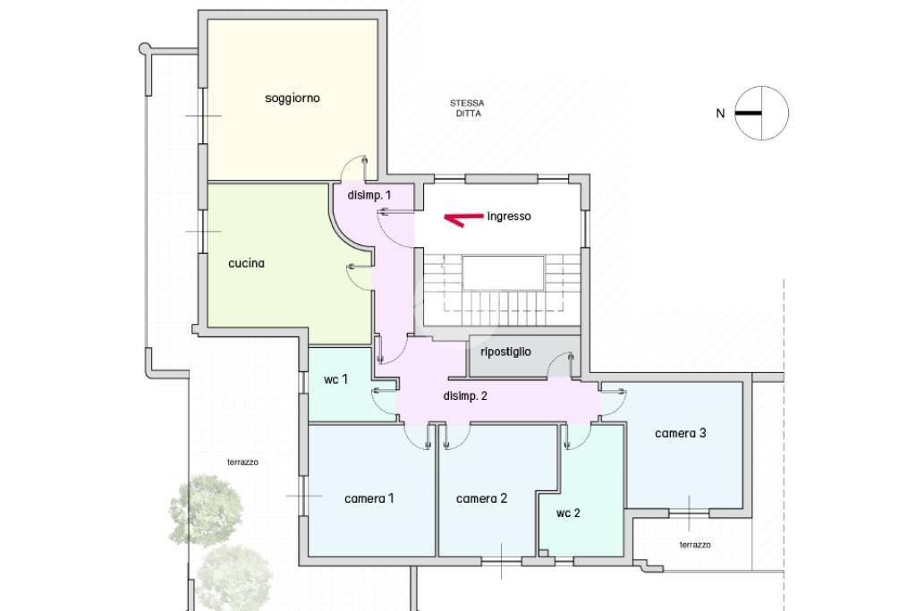
Ampio appartamento con terrazzo a livello e vista libera.
In zona tranquilla e ben collegata, a pochi passi dai principali servizi e sbocchi autostradali, proponiamo in vendita un ampio appartamento al terzo e ultimo piano di un mini condominio di 6 unità. L'immobile, caratterizzato da una doppia esposizione e una vista libera, dispone di un ampio soggiorno e di una cucina separata, entrambi luminosi grazie alla presenza di balcone e terrazzo a livello. La zona notte è composta da 3 camere da letto, di cui 2 con accesso diretto al balcone, e 2 bagni. Completano la proprietà un comodo ripostiglio e un posto auto assegnato all'interno del condominio. Ideale per chi cerca una soluzione spaziosa e con comodo terrazzo a livello, in una posizione strategica.
Per maggiori informazioni ed appuntamenti:
- Telefonare in agenzia allo: 0818971844
- WHATSAPP al numero: 3247789351
Seguici su facebook: 'Tecnorete Pollena Trocchia - Cercola'
Siamo presenti anche su Instagram: 'tecnoretepollenacercola'
Effettuiamo valutazioni gratuite, in caso di interesse per eventuali permute.
Se vuoi saperne di più, puoi parlare con Paolo Frontoso ..

Di solito risponde entro 1 giorno

Caratteristiche
Tipologia
Appartamento | Intera proprietà | Classe immobile media
Contratto
Vendita
Piano
3 piano
Piani edificio
4
Ascensore
No
Superficie
161 m²
Locali
4
Camere da letto
3
Cucina
Cucina abitabile
Bagni
2
Arredato
No
Balcone
Terrazzo
Box, posti auto
1 in parcheggio/garage comune
Riscaldamento
Autonomo, a radiatori, alimentato a metano
Climatizzazione
Autonomo
Informazioni sul prezzo
Prezzo
€ 189.000
Prezzo al m²
1.174 €/m²
New
Dettaglio dei costi
Spese condominio
€ 35/mese
Efficienza energetica

Consumo di energia

175 kWh/m² annoG

Planimetria
Nuova planimetria
plan
Scopri ogni angolo dell'immobile
+23
Opzioni aggiuntive

Contatta l'inserzionista

Oppure