Locale commerciale in Vendita

€ 280.800
521 m²

Nota

Annuncio aggiornato il 01/04/2025
Descrizione

riferimento: NO_CAST_20056534

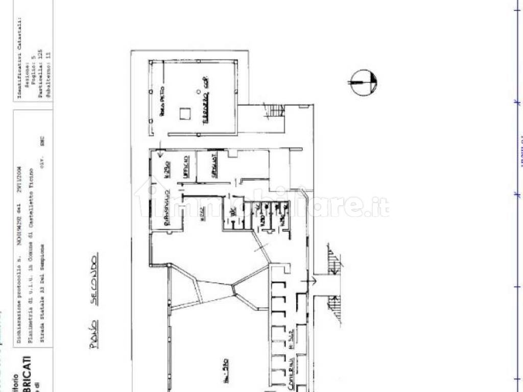
Rif: NO_CAST_20056534 - L'oggetto della presente analisi è un locale di pubblico spettacolo (night club) posto al piano 2° e composto di ampio salone, camerini, bagni, ripostiglio, ufficio, spogliatoio, terrazzo coperto il tutto circondato da una balconata. L'accesso all'u.i. avviene da un ascensore o tramite n. 3 vani scala posizionati sui lati Nord, Est, Ovest.
Il fabbricato è dotato di struttura portante in c.a., tamponamento esterno in muratura e copertura con struttura portante in legno.
I serramenti esterni sono in alluminio con vetro doppio, mentre i pavimenti si presentano in gres in tutti i locali ed i rivestimenti nei bagni in ceramica.

L'immobile è posto in zona centrale nell'area commerciale, situato all'angolo tra le vie Sempione e del Lago.
Il centro di Castelletto Sopra Ticino dista a 4 km e non dispone di una stazione ferroviaria; la più vicina è quella di Sesto Calende a km 3, mentre l'aeroporto di Milano Malpensa dista km 18.
Buona la posizione in quanto il complesso è adiacente alla SS33 del Sempione che è un'importante via di collegamento tra Milano e la Svizzera, anche l'autostrada A8/A26 il cui casello è a 3 km.
La zona è servita dai trasporti pubblici extra-urbani, la cui fermata più vicina (Castelletto, Sempione fr. 163,Cicognola) è a 210 metri
Caratteristiche
Contratto
Vendita
Tipologia
Locale commerciale
Superficie
521 m²
Informazioni sul prezzo
Prezzo
€ 280.800
Prezzo al m²
539 €/m²
New
Dettaglio dei costi
Spese condominio
Nessuna spesa condominiale
Scopri ogni angolo dell'immobile
+8
Opzioni aggiuntive

Contatta l'inserzionista