Attività commerciale con laboratorio in Vendita

Prezzo su richiesta
1
700 m²
1
T

Nota

Annuncio aggiornato il 10/12/2025
Descrizione

riferimento: EK-123652165

SPAZIO COMMERCIALE RISTRUTTURATO A NUOVO

In posizione centrale del paese di Mori proponiamo in vendita spazi commerciali adatti a molteplici attività.
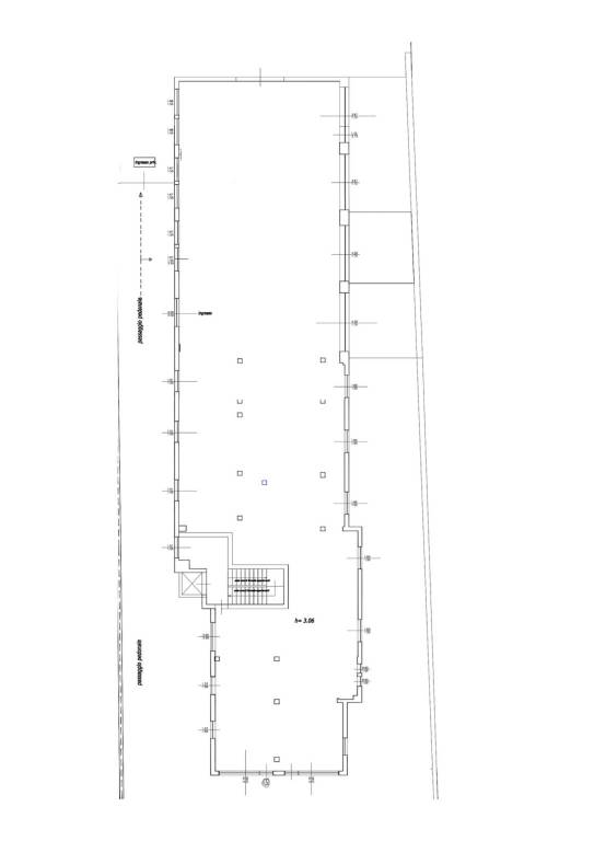
L'intero spazio disponibile è di oltre 700mq con la possibilità di essere frazionato per ricavare il necessario alle proprie esigenze.
Grazie alla sua posizione e alla personalizzazione delle disposizioni interne si possono ottenere studi, uffici, negozi e laboratori di diverse tipologie.
La struttura verrà ristrutturata interamente e ai piani superiori verranno realizzate unità residenziali.
Completano la proprietà diversi posti auto disponibili per le attività commerciali.
Se vuoi saperne di più, puoi parlare con Thomas Miori.
Caratteristiche
Contratto
Vendita
Tipologia
Attività commerciale con laboratorio | con mura
Superficie
700 m²
Locali
1 locale, 1 bagno - uno o più adatto a persone disabili, doppio ingresso
Piano
Piano terra, con accesso disabili
Piani edificio
3
Attrezzatura per l'attività
Non compresa
Vetrine
1 vetrina su strada
Box, posti auto
4 in box privato/box in garage, 4 posto auto
Disponibilità
Libero
Altre caratteristiche
  • Antincendio a idranti
  • Antincendio a pioggia
  • Aspirazione fumi
  • Cablato
  • Impianto di allarme
  • Luci d'emergenza
  • Passo carrabile
  • Pavimento flottante
Dettaglio superficie

Altro

Piano
Piano terra
Superficie
700,0 m²
Coefficiente
100%
Tipo superficie
Principale
Sup. commerciale
700,0 m²
Informazioni sul prezzo
Prezzo
Prezzo su richiesta
Dettaglio dei costi
Spese condominio
Nessuna spesa condominiale
Efficienza energetica

Consumo di energia

≥ 175 kWh/m² annoA

Planimetria
MORI PROGETTO 1
Scopri ogni angolo dell'immobile
+16
Inserzionista
scheda agenzia
Opzioni aggiuntive

Contatta l'inserzionista