Villa a schiera via Bramalegno, Ponte Buggianese

€ 340.000
5
142 m²
2
No

Nota

Annuncio aggiornato il 16/02/2026
Descrizione

riferimento: 3375

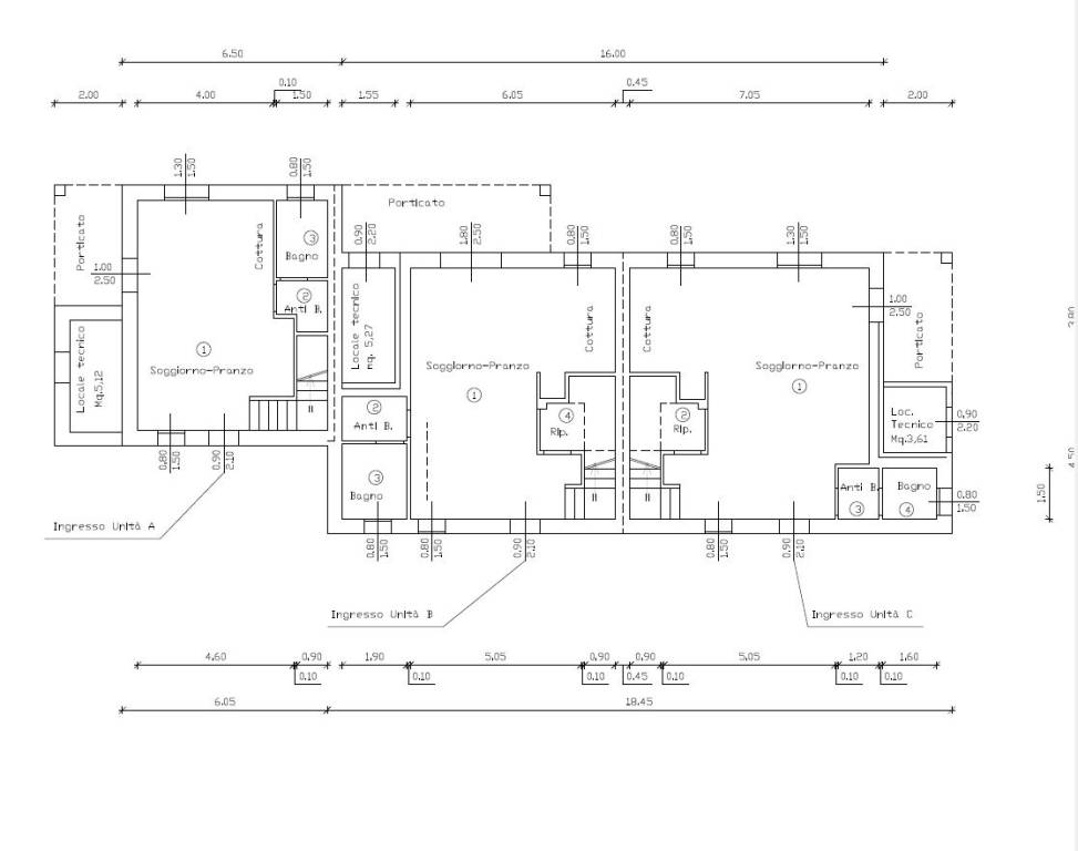
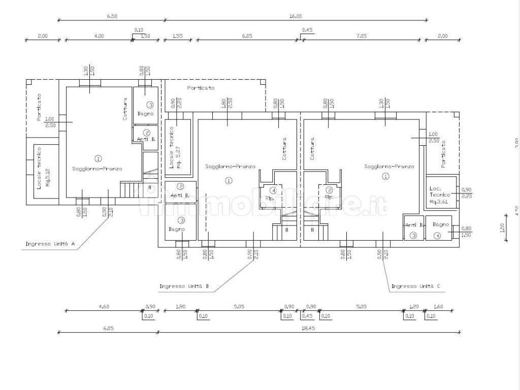
Prima campagna di Ponte Buggianese, in zona tranquilla villetta centrale in trifamiliare di nuova costruzione ( UNITA' B) disposta su due livelli mq 142 circa così composta:
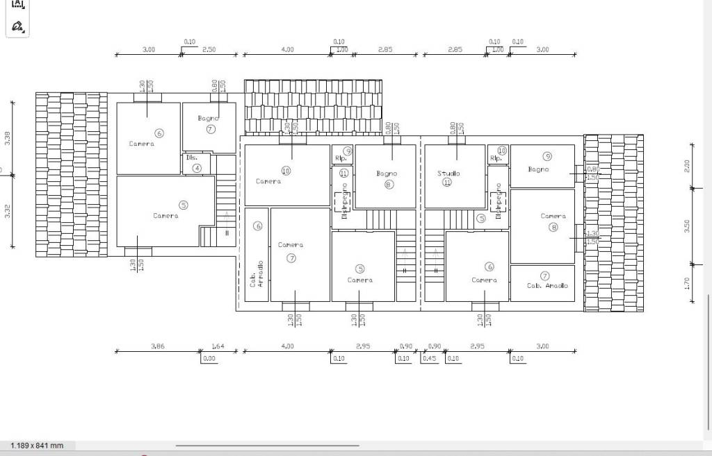
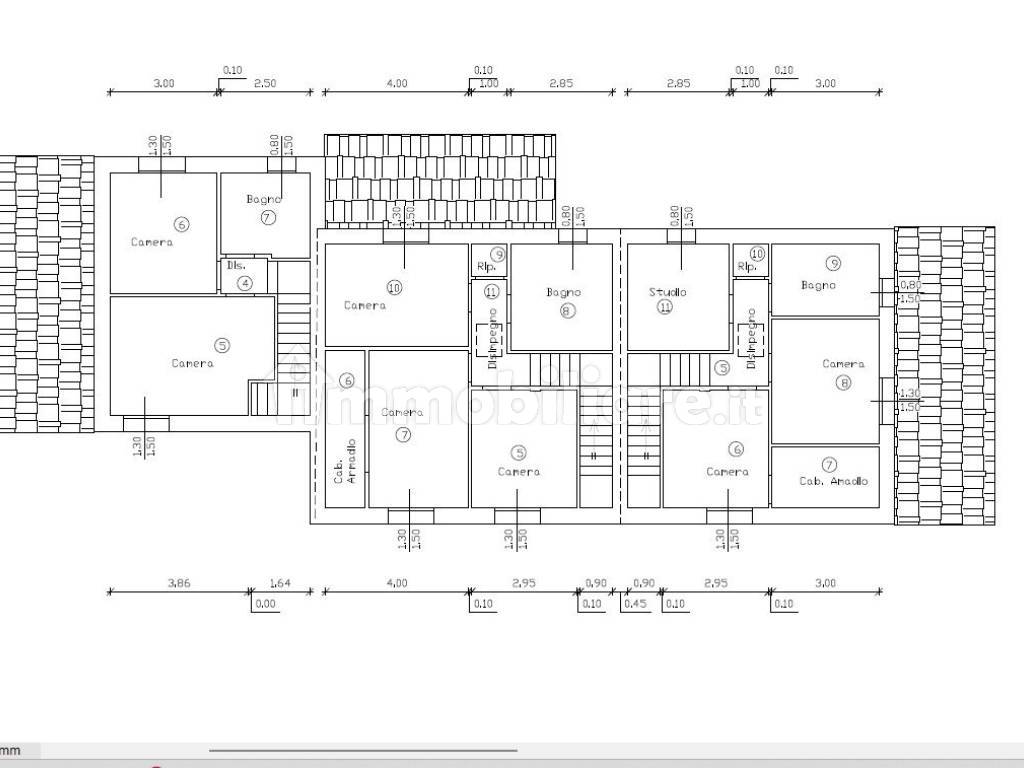
al piano terra ingresso soggiorno con angolo cottura, ripostiglio, bagno, locale tecnico, al piano superiore tre camere di cui una con cabina armadio, ripostiglio e altro bagno. Giardino su due lati mq 180 circa con loggiato e resede lastricato per posti auto. Riscaldamento a pavimento, pannelli fotovoltaici classe energetica prevista in A .
Possibilità di scelta delle finiture consegna chiavi in mano entro fine 2026.
Caratteristiche
Tipologia
Villa a schiera | Intera proprietà | Classe immobile signorile
Contratto
Vendita
Piano
Piano rialzato
Piani edificio
2
Ascensore
No
Superficie
142 m²
Locali
5
Camere da letto
3
Cucina
Cucina angolo cottura
Bagni
2
Arredato
No
Box, posti auto
2 posto auto
Riscaldamento
Autonomo, a pavimento, alimentato a fotovoltaico
Altre caratteristiche
  • Esposizione doppia
  • Infissi esterni in triplo vetro / PVC
  • Porta blindata
  • Cancello elettrico
  • Impianto tv singolo
Dettaglio superficie

Abitazione

Piano
Piano rialzato
Superficie
142,0 m²
Coefficiente
100%
Tipo superficie
Principale
Sup. commerciale
142,0 m²
Informazioni sul prezzo
Prezzo
€ 340.000
Prezzo al m²
2.394 €/m²
Dettaglio dei costi
Spese condominio
Nessuna spesa condominiale
Efficienza energetica

Consumo di energia

≥ 3,51 kWh/m² annoA1

Planimetria
2
4
1
3
Scopri ogni angolo dell'immobile
+5
Mutuo
%
Durata del mutuo

Rata da € 1.002 al mese

€ 102.000 (30%)

€ 238.000 (70%)

Vuoi sapere che mutuo puoi richiedere?

Opzioni aggiuntive

Contatta l'inserzionista

Oppure