Quadrilocale via Cesare Pavese 36, Venaria Reale

€ 280.000
4
145 m²
2
R
Terrazzo
Parzialmente Arredato
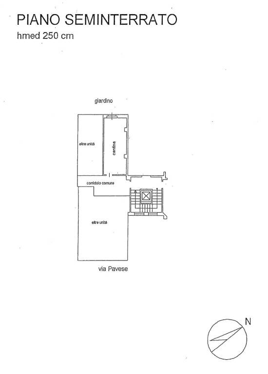
Cantina

Nota

Annuncio aggiornato il 10/04/2026
Descrizione

riferimento: Via Cesare Pavese (Venaria Reale)

SPLENDIDO APPARTAMENTO CON GIARDINO E BOX AUTO

A Venaria Reale, in Via Cesare Pavese 36, l'Agenzia Homework Immobiliare propone in vendita elegante appartamento di 145 mq con giardino un box auto singolo di 16 mq!!! L'immobile è ubicato in una piccola palazzina in paramano anni '80 di soli 3 piani complessivi immersa nella tranquillità della via. L'alloggio, completamente ristrutturato pari al nuovo e rifinito con materiali di altissima qualità, è così composto: ingresso living su spettacolare ampio salone con cucina a vista e bagno. Un leggero dislivello di pochi gradini accompagna alla zona notte composta da due camere da letto, un bagno ed un balcone; questa piacevole organizzazione interna crea una naturale separazione degli spazi interni garantendo comfort e privacy. Completano la proprietà una cantina al piano in terratp ed un box auto singolo al piano terra di 16 mq ad € 15.000. Una menzione a parte la merita il giardino dell'appartamento. Un soleggiatissimo giardino collegato a tutta la zona giorno per pranzi e cene all'aperto dotato di impianto di irrigazione. Una vera e propria oasi di relax. I comforts presenti all'interno dell'appartamento sono tantissimi: porta blindata, videocitofono, antifurto, porte interne in legno, infissi in PVC/doppio vetro a taglio termico ed anti rumore, tende estive ed invernali, fibra ottica, pavimentazione in caldo legno di ciliegio nella zona notte e in gres porcellanato nella zona giorno. L'appartamento gode di una straordinaria luminosità in tutte le ore del giorno data la sua ottima esposizione ai raggi del sole. È un alloggio di classe, arioso, moderno, confortevole e gli spazi interni sono ottimamente distribuiti. All'esterno dell'abitazione vi è una grande zona parcheggio con numerosi posti auto. La casa è una vera bomboniera, pronta per essere abitata senza dover nemmeno dare una mano di bianco. La location in cui l'immobile trova la sua ubicazione è altamente strategica! Siamo in piena prossimità dal Parco Salvo D'Acquisto, dal Centro Commerciale e della Tangenziale. Il quartiere è ricco di servizi ed attività commerciali. Ottimo rapporto qualità/prezzo!!! Ape: in fase di rilascio.

La presente descrizione/foto non costituisce vincolo contrattuale.

Vai sul nostro sito internet, www.homeworkimmobiliare.com, e troverai l'immobile che fa per te. I nostri uffici seguono i seguenti orari lun-ven 9,00 - 12,30; 14,30 - 19,30 - sabato: 9,00 - 12,30.

SEDE TORINO - HOMEWORK IMMOBILIARE S.R.L. Via Giacinto Collegno 10/B, 10143 Torino Tel. 011.20.70.488 E-mail: info@homeworkimmobiliare.com

SEDE VENARIA REALE (TO) - HOMEWORK IMMOBILIARE S.R.L. Via Pietro Rolle 2, 10078 Venaria Reale (TO) Tel. 351.53.13.651 E-mail: venariareale@homeworkimmobiliare.com

SEDE CHIVASSO (TO) - HOMEWORK IMMOBILIARE S.R.L. Viale Giacomo Matteotti 4/A, 10034 Chivasso (TO) Tel. 011.19.66.7210 E-mail: chivasso@homeworkimmobiliare.com
Se vuoi saperne di più, puoi parlare con Homework Immobiliare.
Caratteristiche
Tipologia
Appartamento | Intera proprietà | Classe immobile signorile
Contratto
Vendita
Piano
Piano rialzato
Piani edificio
3
Ascensore
Superficie
145 m²
Locali
4
Camere da letto
2
Cucina
Cucina abitabile
Bagni
2
Arredato
Parzialmente Arredato
Balcone
No
Terrazzo
Box, posti auto
1 in box privato/box in garage
Riscaldamento
Centralizzato, a radiatori, alimentato a metano
Altre caratteristiche
  • Armadio a muro
  • Esposizione doppia
  • Fibra ottica
  • Impianto di allarme
  • Infissi esterni in doppio vetro / PVC
  • Porta blindata
  • Cancello elettrico
  • Impianto tv centralizzato
Dettaglio superficie

Abitazione

Piano
Piano rialzato
Superficie
145,0 m²
Coefficiente
100%
Tipo superficie
Principale
Sup. commerciale
145,0 m²
Informazioni sul prezzo
Prezzo
€ 280.000
Prezzo al m²
1.931 €/m²
Dettaglio dei costi
Spese condominio
€ 125/mese
Spese riscaldamento
€ 1.700/anno
Efficienza energetica
  • Anno di costruzione

    1980
  • Stato

    Ottimo / Ristrutturato
  • Riscaldamento

    Centralizzato, a radiatori, alimentato a metano
  • Certificazione energetica

    In attesa di certificazione
Planimetria
planimetria box auto
planimetria cantina
planimetria appartamento
Virtual tour
Scopri ogni angolo dell'immobile
+41
Inserzionista
scheda agenzia
Mutuo
%
Durata del mutuo

Rata da € 825 al mese

€ 84.000 (30%)

€ 196.000 (70%)

Vuoi sapere che mutuo puoi richiedere?

Opzioni aggiuntive

Contatta l'inserzionista

Oppure