Rustico via Don Pasquino Borghi, Gattatico

€ 220.000
5+
500 m²
3+

Nota

Annuncio aggiornato il 21/09/2025
Descrizione

riferimento: EK-70005980

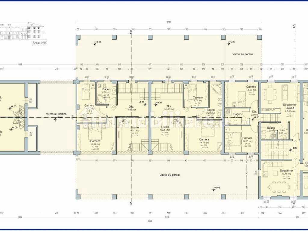
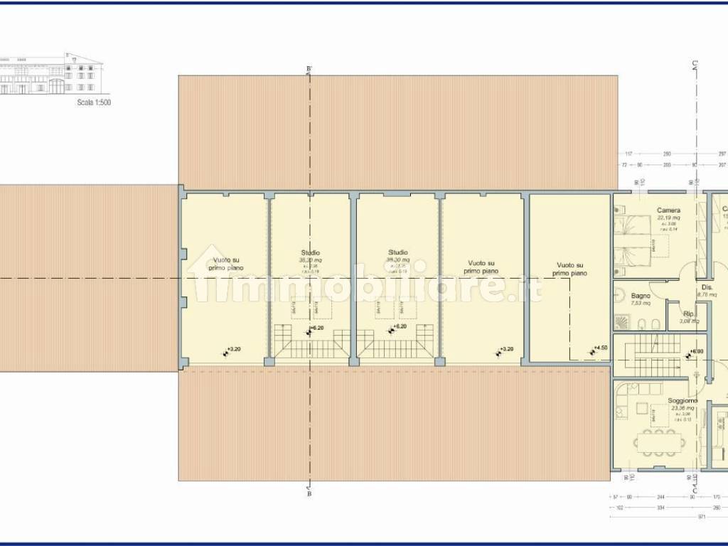
Vendesi casa colonica da ristrutturare .
Il complesso è classificato come edificio a corpi giustapposti composto da casa, fienile, porta morta, portici e servizi. Possibilità di acquisto parte di terreno agricolo adiacente.
All'interno dell'edificio è possibile ricavare fino a 5 unità abitative come da progetto allegato.
Sono possibili altre ipotesi progettuali con diverse destinazioni d'uso .
L'edificio è sito in Praticello di Gattatico a 5 minuti dal casello autostradale Terre di Canossa (Campegine).
Prezzo trattabile
Caratteristiche
Tipologia
Rustico | Intera proprietà
Contratto
Vendita
Piano
Piano terra, da 1 a 2
Piani edificio
3
Superficie
500 m²
Locali
5+
Camere da letto
12
Bagni
3+
Arredato
No
Box, posti auto
5 in parcheggio/garage comune
Altre caratteristiche
  • Cucina
  • Infissi esterni in vetro / legno
  • Esposizione nord, sud, est, ovest
Dettaglio superficie

Abitazione

Piano
Piano terra
Superficie
166,7 m²
Coefficiente
0%
Tipo superficie
Principale
Sup. commerciale

Abitazione

Piano
1
Superficie
166,7 m²
Coefficiente
0%
Tipo superficie
Principale
Sup. commerciale

Abitazione

Piano
2
Superficie
166,7 m²
Coefficiente
0%
Tipo superficie
Principale
Sup. commerciale

Giardino

Superficie
100,0 m²
Coefficiente
0%
Tipo superficie
Accessoria
Sup. commerciale
Informazioni sul prezzo
Prezzo
€ 220.000
Dettaglio dei costi
Spese condominio
Nessuna spesa condominiale
Scopri ogni angolo dell'immobile
+13
Inserzionista

Privato

Mutuo
%
Durata del mutuo

Rata da € 653 al mese

€ 66.000 (30%)

€ 154.000 (70%)

Vuoi sapere che mutuo puoi richiedere?

Opzioni aggiuntive

Contatta l'inserzionista

Chiedi all'Assistente AIBeta

  • Ottieni subito tutte le info sull’immobile 24/7
  • Inoltra richieste direttamente al venditore

Privato