Capannone in Vendita

€ 1.500.000
3
2.895 m²
2

Nota

Annuncio aggiornato il 01/03/2023
Descrizione

riferimento: C.01

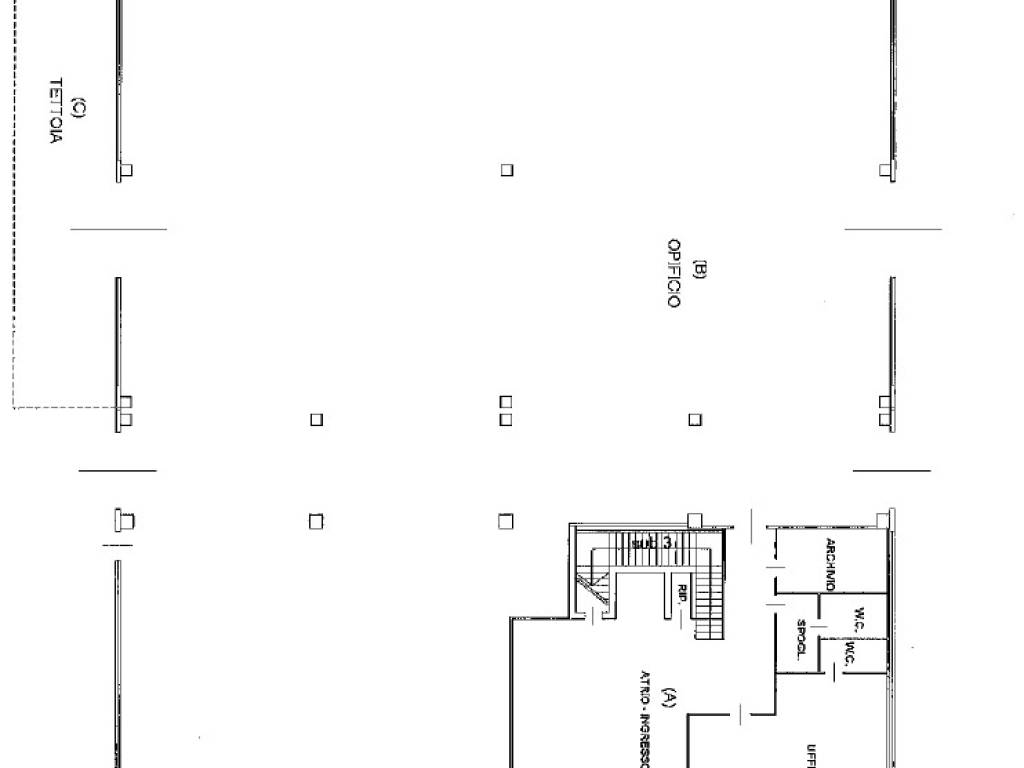
Ampio Capannone pari al nuovo

In zona Maratta proponiamo in vendita ampio capannone pari al nuovo cosi composto, 2000 mq di capannone con 5 ingressi e impianti predisposti per la suddivisione in 6 unità, ufficio, reception, spogliatoio, bagni e archivio già realizzati con pannellature interne ignifughe a norma.
Al piano superiore 2 unità abitative di 450 mq complessivi da terminare ed un terrazzo di 150 mq.
Piazzale perimetrale sui 4 lati di 4000 mq.
Ampia possibilità di installazione pannelli solari.
La struttura e situata in un area molto comoda da raggiungere per qualsiasi tipo di automezzo.
Prezzo Trattabile.
Se vuoi saperne di più, puoi parlare con Massimo Bovelli.
Caratteristiche
Contratto
Vendita
Tipologia
Capannone
Superficie
2.895 m²
Locali
3 locali, 2 bagni - uno o più adatto a persone disabili
Piano
2 piani: Piano terra, 1°, con accesso disabili
Piani edificio
2
Disponibilità
Libero
Altezza capannone
7 m
Altezza sottotrave
6,5 m
Altre caratteristiche
  • Docce
  • Passo carrabile
  • Recintato
  • Spogliatoio
Dettaglio superficie

Capannone

Piano
Piano terra
Superficie
2.000,0 m²
Coefficiente
100%
Tipo superficie
Principale
Sup. commerciale
2.000,0 m²

Piazzale

Piano
Piano terra
Superficie
4.000,0 m²
Coefficiente
10%
Tipo superficie
Principale
Sup. commerciale
400,0 m²

Abitazione

Piano
1
Superficie
450,0 m²
Coefficiente
100%
Tipo superficie
Principale
Sup. commerciale
450,0 m²

Altro

Piano
1
Superficie
150,0 m²
Coefficiente
30%
Tipo superficie
Principale
Sup. commerciale
45,0 m²
Informazioni sul prezzo
Prezzo
€ 1.500.000
Prezzo al m²
518 €/m²
New
Dettaglio dei costi
Spese condominio
Nessuna spesa condominiale
Efficienza energetica

Consumo di energia

≥ 175 kWh/m² annoG

Opzioni aggiuntive

Contatta l'inserzionista

Oppure