Terreno edificabile in Vendita

€ 49.000
2.500 m²

Nota

Annuncio aggiornato il 20/11/2025
Descrizione

riferimento: 40450243

TERRENO EDIFICABILE
SAN BARTOLOMEO AL MARE: Borgata Richieri terreno di ampia metratura in parte piantumato con alberi di ulivo.
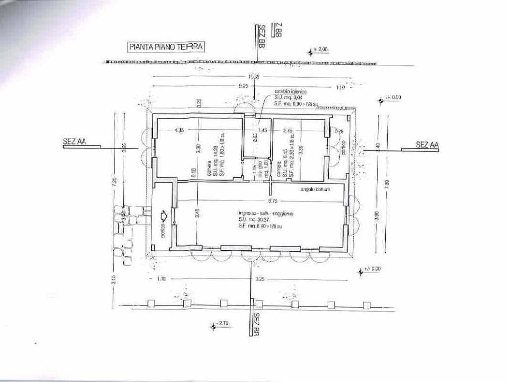
Il terreno è composto da due lotti di 2500 mt. ciascuno, in entrambi i lotti è possibile costruire una casa di circa 70 metri di abitazione e 80 di magazzino, ogni lotto costa Euro 49.000.
Il proprietario dispone di altri 5000 mt di terreno, in parte bosco, per chi desidera avere un appezzamento ampio.
Per chi dovesse interessare comprare tutti e 10.000 metri di terreno, il prezzo è trattatibile.
La zona è tranquilla in quanto è immersa nel verde, non isolata siccome ci sono delle abitazioni nelle vicinanze e la strada è comoda da fare con la bicicleta elettrica.
Si raggiungere il mare in pochi minuti siccome dista circa 2,5 km dal mare.
Se vuoi saperne di più, puoi parlare con Valentino Gallo ..

Di solito risponde entro 2 giorni

Caratteristiche
Contratto
Vendita
Tipologia
Terreno edificabile
Superficie
2.500 m²
Informazioni sul prezzo
Prezzo
€ 49.000
Prezzo al m²
20 €/m²
New
Planimetria
PLANI 49 D
PLANI 49
Scopri ogni angolo dell'immobile
+11
Opzioni aggiuntive

Contatta l'inserzionista

Oppure