Locale commerciale in Vendita

Prezzo su richiesta
5+
10.662 m²
3+
T

Nota

Annuncio aggiornato il 13/06/2025
Descrizione

riferimento: EK-88201307

Struttura commerciale di 10.662 mq.

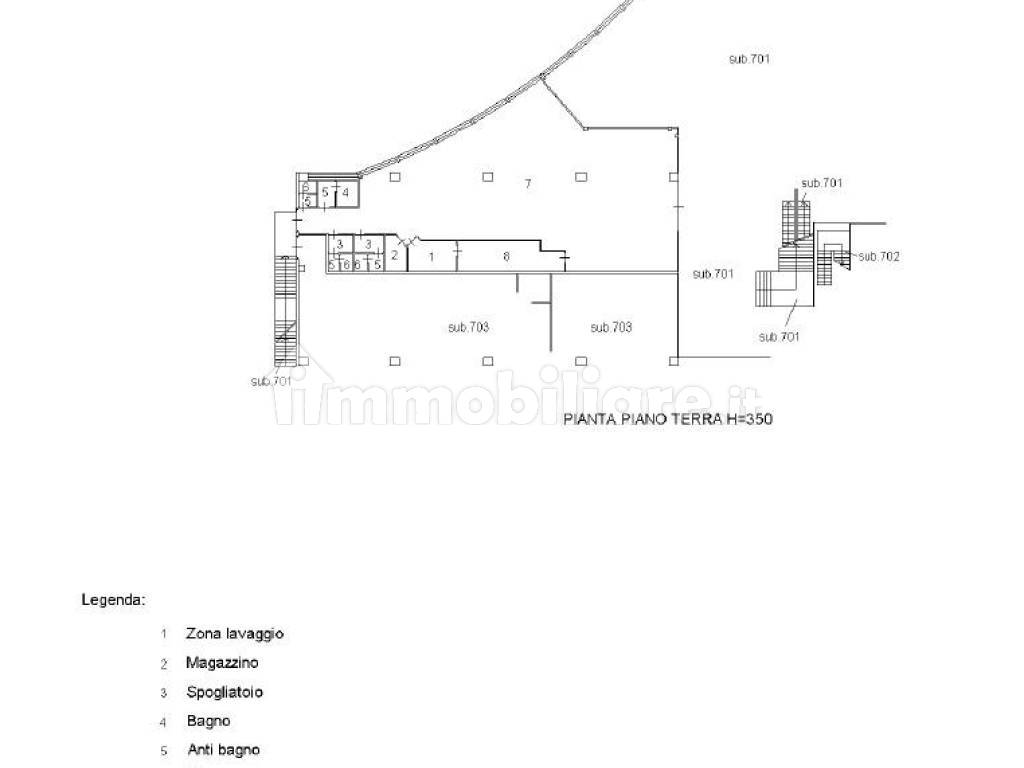
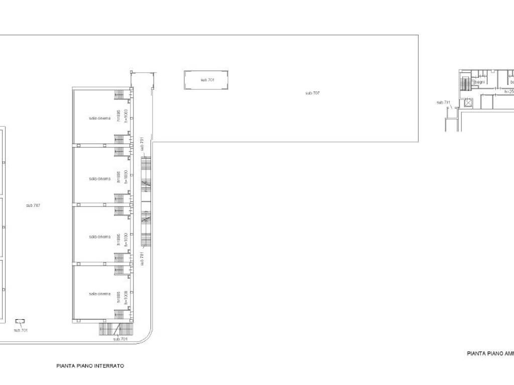
Proponiamo in vendita immobile commerciale destinato ad attività ludico ricreative, denominato City Park, collocato in più ampio compendio immobiliare denominato "Centro Commerciale Le Acciaierie". L’edificio si sviluppa su due piani fuori terra, ed è presente, inoltre, un piano ammezzato (occupato dalle sale proiettori) e un piano interrato nel quale è presente la zona dedicata ad autorimessa oltre ad alcuni locali tecnici.
PIANO INTERRATO: - aree di parcheggio con relativi spazi di manovra veicolare, locali tecnici (gruppo elettrogeno, cabine elettriche, ecc. ...) al servizio della porzione di fabbricato in oggetto;
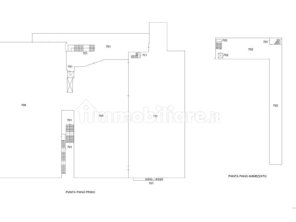
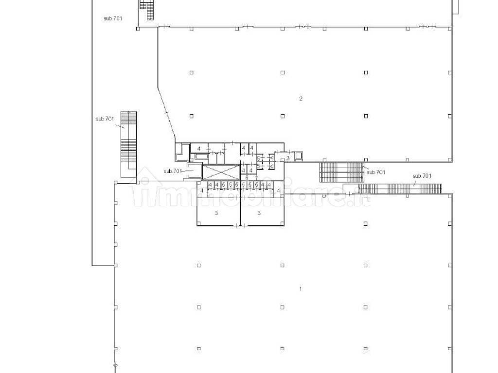
PIANO TERRA - in minima parte con AMMEZZATO: - ingresso, spazi comuni, negozi, zona ristoro con relativi spazi di cucina e servizi igienico sanitari, saloni per attività ludico ricreative con relativi blocchi servizi igienico sanitari; - multiplex cinematografico articolato in n. 7 sale autonome, con relativi blocchi servizi igienico sanitari; - area esterna adibita a parcheggio scoperto;
PIANO PRIMO: - zona adibita a pista
Per ulteriori informazioni e sopralluogo contattare: Alberto Lancini cell: 335 73 22 323 Viale Mazzini n. 5/1 25032 Chiari - BS Tel: +39 030 700.28.00 e-mail: bs.chiari@edilnordagency.it web: www.edilnordagency.it https://www.facebook.com/Edilnord-Agency-676667479066560/ Si precisa che la documentazione pubblicata è da ritenersi indicativa e non costituisce elemento contrattuale.di kart; - zona adibita a parcheggio scoperto.
Se vuoi saperne di più, puoi parlare con Alberto Lancini.
Caratteristiche
Contratto
Vendita
Tipologia
Locale commerciale
Superficie
10.662 m²
Locali
5+ locali, 3+ bagni - uno o più adatto a persone disabili, doppio ingresso
Piano
Piano terra, con accesso disabili
Piani edificio
3
Ultima attività svolta
Supermercato
Disponibilità
Libero
Altre caratteristiche
  • Antincendio a pioggia
  • Aspirazione fumi
  • Impianto di allarme
  • Luci d'emergenza
  • Passo carrabile
  • Porta tagliafuoco
  • Rilevatori antincendio
  • Saracinesche automatiche
Dettaglio superficie

Negozio - Locale commerciale

Piano
Piano terra
Superficie
10.662,0 m²
Coefficiente
100%
Tipo superficie
Principale
Sup. commerciale
10.662,0 m²
Informazioni sul prezzo
Prezzo
Prezzo su richiesta
Efficienza energetica

Consumo di energia

≥ 175 kWh/m² annoD

Scopri ogni angolo dell'immobile
+8
Opzioni aggiuntive

Contatta l'inserzionista