Cascina Strada per Leno, Strada Per Leno, Manerbio

€ 215.000
5+
468 m²
1
No
Cantina

Nota

Annuncio aggiornato il 28/01/2025
Descrizione

riferimento: 7927RC26533

Cascinale in vendita in fronte al casello autostradale

MANERBIO. Proponiamo in vendita cascinale completamente indipendente e da ristrutturare ubicato in zona limitrofa al casello autostradale e comoda alle principali vie di comunicazione.
L'immobile è vicino logisticamente ai due centri abitati di Manerbio e Leno e dispone di circa 16 mila metri quadri di terreni agricoli (quasi 5 piò bresciani) circostanti al confine con l'autostrada A21.
Il cascinale si compone di due corpi distinti, il primo dei quali ospita la parte residenziale distribuita su tre livelli (compreso solaio), un ampio porticato, autorimessa e locali rustici.
Il secondo fabbricato, separato dall'ampio cortile esclusivo, è composto da locali pertinenziali come depositi, fienili e rustici.
L'immobile si presta ad essere adibito a piacevole residenza di campagna ma anche come occasione imprenditoriale per realizzare varie attività quali un agriturismo, fattoria didattica, piccolo maneggio, ecc.
LA SOLUZIONE NECESSITA DI UN GENERALE INTERVENTO DI RISTRUTTURAZIONE.

Richiesta: Euro 215.000,00 (comprensivo dei terreni agricoli annessi)
Se vuoi saperne di più, puoi parlare con Emanuela Brescianini Gadaldi.
Caratteristiche
Tipologia
Cascina | Intera proprietà | Classe immobile media
Contratto
Vendita
Piano
Piano terra, da 1 a 2
Piani edificio
3
Ascensore
No
Superficie
468 m²
Locali
5+
Camere da letto
3
Cucina
Cucina abitabile
Bagni
1
Balcone
No
Terrazzo
No
Box, posti auto
2 in box privato/box in garage
Riscaldamento
Autonomo, a radiatori
Altre caratteristiche
  • Esposizione doppia
  • Infissi esterni in vetro / legno
  • Mansarda
  • Impianto tv singolo
Dettaglio superficie

Abitazione

Piano
Piano terra
Superficie
107,0 m²
Coefficiente
100%
Tipo superficie
Principale
Sup. commerciale
107,0 m²

Abitazione

Piano
1
Superficie
90,0 m²
Coefficiente
100%
Tipo superficie
Principale
Sup. commerciale
90,0 m²

Soffitta

Piano
2
Superficie
66,0 m²
Coefficiente
50%
Tipo superficie
Principale
Sup. commerciale
33,0 m²

Box o garage

Piano
Piano terra
Superficie
41,0 m²
Coefficiente
50%
Tipo superficie
Principale
Sup. commerciale
20,5 m²

Altro

Piano
Piano terra
Superficie
37,0 m²
Coefficiente
35%
Tipo superficie
Principale
Sup. commerciale
13,0 m²

Altro

Piano
Piano terra
Superficie
87,0 m²
Coefficiente
35%
Tipo superficie
Principale
Sup. commerciale
30,5 m²

Altro

Piano
Piano terra
Superficie
78,0 m²
Coefficiente
35%
Tipo superficie
Principale
Sup. commerciale
27,3 m²

Altro

Piano
Piano terra
Superficie
66,0 m²
Coefficiente
35%
Tipo superficie
Principale
Sup. commerciale
23,1 m²

Altro

Piano
Piano terra
Superficie
60,0 m²
Coefficiente
50%
Tipo superficie
Principale
Sup. commerciale
30,0 m²

Altro

Piano
Piano terra
Superficie
54,0 m²
Coefficiente
50%
Tipo superficie
Principale
Sup. commerciale
27,0 m²

Altro

Piano
1
Superficie
84,0 m²
Coefficiente
50%
Tipo superficie
Principale
Sup. commerciale
42,0 m²

Giardino

Piano
Piano terra
Superficie
483,0 m²
Coefficiente
5%
Tipo superficie
Principale
Sup. commerciale
24,2 m²
Informazioni sul prezzo
Prezzo
€ 215.000
Prezzo al m²
459 €/m²
New
Dettaglio dei costi
Spese condominio
Nessuna spesa condominiale
Efficienza energetica

Consumo di energia

224.88 kWh/m² annoE

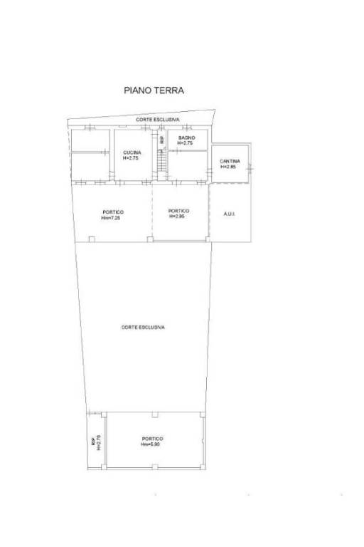
Planimetria
Planimetria abitazione
Planimetria depositi
Planimetria autorimessa
Scopri ogni angolo dell'immobile
+24
Mutuo
%
Durata del mutuo

Rata da € 639 al mese

€ 64.500 (30%)

€ 150.500 (70%)

Vuoi sapere che mutuo puoi richiedere?

Opzioni aggiuntive

Contatta l'inserzionista

Oppure