Capannone in Vendita

€ 148.000
6.700 m²

Nota

Annuncio aggiornato il 11/12/2023
Descrizione

riferimento: EK-92358986

Acquisto dell'intero immobile allo stato attuale: 148.000€. Ogni lotto è vendibile autonomamente (cfr. Planimetria). Contattaci per sapere i prezzi di vendita per lotto.

✅​ I VANTAGGI COMPETITIVI TRASVERSALI:
1️⃣ Acquisto a prezzi molto competitivi;
2️⃣​ Tanti capannoni industriali facilmente frazionabili, quindi ampia flessibilità di destinazione;
3️⃣​ Numerose aree di proprietà per carico/scarico e portoni industriali motorizzati su più lati;
4️⃣​ Eccellente visibilità di parte dell'immobile perché posto su strada provinciale ad alta densità di traffico;
5️⃣​ Locali uso ufficio e/o residenziale adiacenti ai capannoni industriali;
6️⃣​ Immobile bonificato da amianto nel 2021.

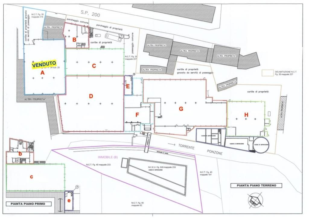
I NUMERI PER FABBRICATO (cfr. Planimetria):
- A (VENDUTO): Capannone Industriale, Piano Unico (Terreno), 1996, 1.070mq.
- B: Locali Uso Uff./Res., Piano Unico (Rialzato), 1973, 220mq.
- C: Capannone Industriale, 2 Piani (Rialzato, Seminterrato), 1977, 1.660mq.
- D: Capannone Industriale, Piano Unico (Terreno), 1977, 1.860mq.
- E: Locali Uso Uff./Res., 2 Piani (Terreno, Primo), 1988, 150mq.
- F: Capannone Industriale, Piano Unico (Terreno), 2000, 500mq.
- G: Capannone Industriale, Piano Unico (Terreno), 1985, 1.660mq.
- H: Capannone Industriale, 2 Piani (Terreno, Interrato), 1990, 660mq.

L'UTILIZZO DELL'IMMOBILE:
- L'immobile serviva il processo produttivo di una tintoria e finissaggio. Attualmente è libero da impianti produttivi e predisposto ad ospitare destinazioni funzionali di diverso tipo.

Contattaci per ulteriori informazioni.

Contatta l'inserzionista

Invia la tua richiesta per aumentare le possibilità di ricevere una risposta.

Caratteristiche
Contratto
Vendita
Tipologia
Capannone
Superficie
6.700 m²
Piano
3 piani: da Seminterrato a Piano terra, Piano rialzato
Disponibilità
Libero
Altezza capannone
7 m
Altezza sottotrave
5 m
Altre caratteristiche
  • Docce
  • Mensa
  • Passo carrabile
  • Proprietà recintata
  • Reception
  • Spogliatoio
Dettaglio superficie

Capannone

Piano
Seminterrato
Superficie
2.233,3 m²
Coefficiente
0%
Tipo superficie
Principale
Sup. commerciale

Capannone

Piano
Piano rialzato
Superficie
2.233,3 m²
Coefficiente
0%
Tipo superficie
Principale
Sup. commerciale

Capannone

Piano
Piano terra
Superficie
2.233,3 m²
Coefficiente
0%
Tipo superficie
Principale
Sup. commerciale
Informazioni sul prezzo
Prezzo
€ 148.000
Prezzo al m²
22 €/m²
Efficienza energetica
  • Anno di costruzione

    1996
  • Stato

    Buono / Abitabile
  • Riscaldamento

    Autonomo
Planimetria
Scopri ogni angolo dell'immobile
+17
Inserzionista

Privato

Opzioni aggiuntive

Contatta l'inserzionista

Contatta l'inserzionistaBeta

  • Ottieni subito tutte le info sull’immobile 24/7
  • Inoltra richieste direttamente al venditore

Privato